
Erdgeschosswohnung in Germering
Zentral Wohnen in Germering
auf der Karte ansehenUmzugskosten berechnen
- Kaufpreis
- 797.000 €
- Zimmer
- 3
- Fläche
- 95.1 m²
4 Aufrufe
Objekt-ID: 38750637
| Objekttyp: | Erdgeschosswohnung |
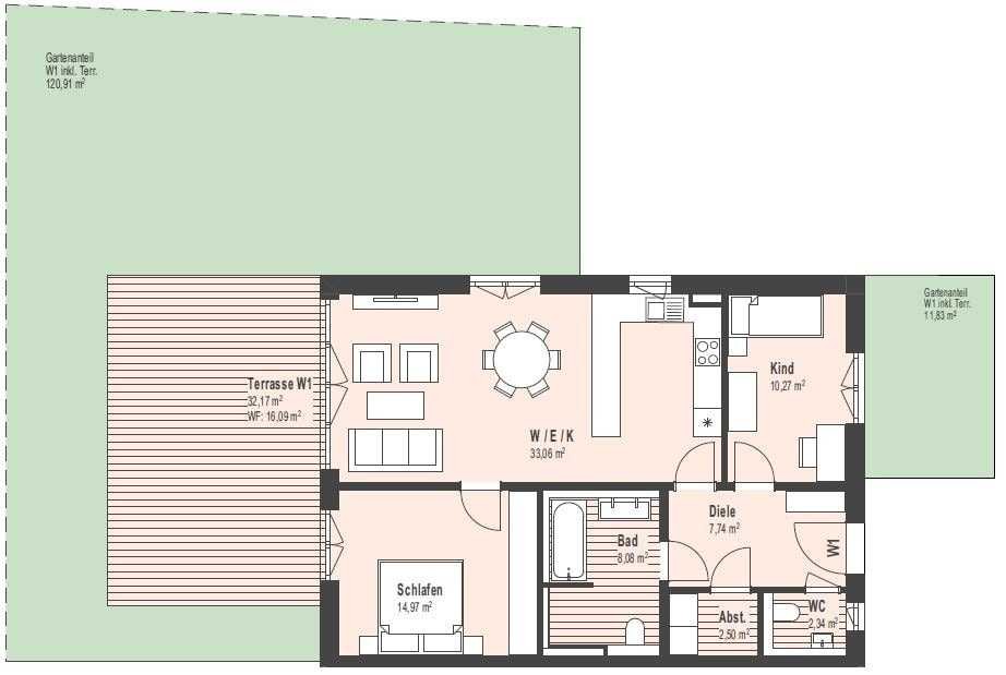
| Zimmer: | 3 |
| Größe: | 95.10 m² |
| Verfügbar ab: | 31.12.2027 |
Preise & Kosten
| Kaufpreis: | 797.000 € |
| Jetzt kostenlos Finanzierungsangebot anfragen! | |
| Provision: | Nein |
| Preis/m²: | 8.380,65 € |
| Mit Immobilienpreisen Germering vergleichen | |
Immobilie
Balkon
Garten
Aufzug
Keller
| Baujahr: | 2027 |
| Befeuerungsart: | Fussbodenheizung |
| Energieausweis: | Bedarfsausweis |
| Endenergiebedarf: | 13,00 kWh/(m²*a) |
| Energieeffizienzklasse: | A+ |
Objektbeschreibung
Im Zentrum von Germering entstehen elf elegant konzipierte Wohnungen. Alle Wohnungen verfügen über sonnige Gartenterrassen, Balkone oder Dachterrassen und sind zur Gartenseite orientiert.
Ein besonderes Highlight sind die privaten Außenbereiche mit Blick ins Grüne, die jeder Wohnung ein Stück Natur und persönlichen Freiraum bieten.
Moderne Ausstattung und klare Linien bestimmen das Erscheinungsbild des Neubaus. Die Grundrissgestaltung und die Ausstattungsdetails orientieren sich an zeitgemäßen Wohnansprüchen. Hier fühlt man sich wohl. Alle Wohnräume sind mit Eichenparkett in Dielenoptik ausgestattet und verfügen über eine Fußbodenheizung.
Gebaut wird in klassischer Baumeister-Qualität, von einem erfahrenen Projektentwickler im Münchner Süden. Von den Erdarbeiten über den Rohbau bis zu den Handwerksarbeiten sowie dem Einbau der Elektrik
und der Sanitäranlagen: Alles wird von erfahrenen, regionalen Meisterbetrieben errichtet.
Das Gebäude wird durch eine Hybrid-Anlage, inklusive Wärmepumpe und Pufferspeicher, hochmodern mit Warmwasser versorgt und beheizt. Eine Photovoltaik-Anlage ist Teil des Energiekonzeptes.
Es kommen Highend-Ziegel und Wärmedämmung nach den aktuellen Vorschriften und Standards zur Ausführung. So ist das Gebäude energetisch für die Zukunft gerüstet.
Das Exterieur des Gebäudes ist elegant, durchdacht und zeitlos. Die Eleganz spiegelt sich auch in dem Treppenhaus mit italienischem Bodenbelag, bis hin zum Eichenparkett in Dielenoptik in den Wohnungen wider. Die eleganten Bäder werden mit hellem Feinsteinzeug von Villeroy & Boch und Badewannen von Bette ausgestattet. Schicke Armaturen der Firma Hansgrohe runden das Gesamtbild ab. Dadurch entsteht ein modern konzipiertes
und nachhaltig umgesetztes Gebäude.
Im Untergeschoss befinden sich die Tiefgarage, der Fahrradraum, der Kinderwagenraum sowie die Abstellräume der Wohnungen. Speziell für Aktive bietet der geräumige Fahrradraum Platz, auch für E-Bikes. Die Tiefgarage ist mit 16 Einzel-Stellplätzen ausgestattet. Für jeden Stellplatz ist die Möglichkeit zum Nachrüsten einer Ladestation möglich.
Haben wir Ihr Interesse geweckt?
Dann melden Sie sich doch einfach bei Ihrem Immobilienberater Stefan Reich von der Sparkasse Fürstenfeldbruck.
Gerne steht Ihnen die Sparkasse Fürstenfeldbruck mit ihren Finanzierungsspezialisten auch für ein Finanzierungsangebot zur Verfügung.
Ein besonderes Highlight sind die privaten Außenbereiche mit Blick ins Grüne, die jeder Wohnung ein Stück Natur und persönlichen Freiraum bieten.
Moderne Ausstattung und klare Linien bestimmen das Erscheinungsbild des Neubaus. Die Grundrissgestaltung und die Ausstattungsdetails orientieren sich an zeitgemäßen Wohnansprüchen. Hier fühlt man sich wohl. Alle Wohnräume sind mit Eichenparkett in Dielenoptik ausgestattet und verfügen über eine Fußbodenheizung.
Gebaut wird in klassischer Baumeister-Qualität, von einem erfahrenen Projektentwickler im Münchner Süden. Von den Erdarbeiten über den Rohbau bis zu den Handwerksarbeiten sowie dem Einbau der Elektrik
und der Sanitäranlagen: Alles wird von erfahrenen, regionalen Meisterbetrieben errichtet.
Das Gebäude wird durch eine Hybrid-Anlage, inklusive Wärmepumpe und Pufferspeicher, hochmodern mit Warmwasser versorgt und beheizt. Eine Photovoltaik-Anlage ist Teil des Energiekonzeptes.
Es kommen Highend-Ziegel und Wärmedämmung nach den aktuellen Vorschriften und Standards zur Ausführung. So ist das Gebäude energetisch für die Zukunft gerüstet.
Das Exterieur des Gebäudes ist elegant, durchdacht und zeitlos. Die Eleganz spiegelt sich auch in dem Treppenhaus mit italienischem Bodenbelag, bis hin zum Eichenparkett in Dielenoptik in den Wohnungen wider. Die eleganten Bäder werden mit hellem Feinsteinzeug von Villeroy & Boch und Badewannen von Bette ausgestattet. Schicke Armaturen der Firma Hansgrohe runden das Gesamtbild ab. Dadurch entsteht ein modern konzipiertes
und nachhaltig umgesetztes Gebäude.
Im Untergeschoss befinden sich die Tiefgarage, der Fahrradraum, der Kinderwagenraum sowie die Abstellräume der Wohnungen. Speziell für Aktive bietet der geräumige Fahrradraum Platz, auch für E-Bikes. Die Tiefgarage ist mit 16 Einzel-Stellplätzen ausgestattet. Für jeden Stellplatz ist die Möglichkeit zum Nachrüsten einer Ladestation möglich.
Haben wir Ihr Interesse geweckt?
Dann melden Sie sich doch einfach bei Ihrem Immobilienberater Stefan Reich von der Sparkasse Fürstenfeldbruck.
Gerne steht Ihnen die Sparkasse Fürstenfeldbruck mit ihren Finanzierungsspezialisten auch für ein Finanzierungsangebot zur Verfügung.
Lage
82110 GermeringGermering
Der aktuelle durchschnittliche Quadratmeterpreis beträgt 6.227,31 €/m² in Germering.
Mit Immobilienpreisen
Germering vergleichen
Was kostet dein Umzug?
Du planst einen Umzug? Finde jetzt die günstigste Umzugsfirma in deiner Region!
Umzugskosten berechnen Schütze dich vor Betrug!
Leiste keinerlei Zahlung im Vorraus!
Beachte unsere Sicherheitshinweise zum Thema Immobilienbetrug und lies, woran du solche Anzeigen erkennen kannst und wie du dich vor Betrügern schützt.
Anzeige melden Beachte unsere Sicherheitshinweise zum Thema Immobilienbetrug und lies, woran du solche Anzeigen erkennen kannst und wie du dich vor Betrügern schützt.
*Anzeige
Ähnliche Immobilien bei ImmoScout24
Germering
- Kaufpreis
- 750.000 €
- Zimmer
- 3 Zi.
- Fläche
- 90 Zi.
Anbieter
Weitere Ergebnisse für:
Wohnungen
Germering;
Immobilien
Germering;
Haus mieten
Germering;
WG Zimmer
Germering;
Wohnung
Germering kaufen;
Haus kaufen
Germering;
Immobilienpreise
Germering Mietspiegel
Germering wohnungsboerse.net übernimmt keine Gewähr für von Dritten gemachte Angaben