
Etagenwohnung in Ludwigshafen am Rhein-Süd
Bayernstraße 42, 67061 Ludwigshafen
auf der Karte ansehenUmzugskosten berechnen
- Kaufpreis
- 260.000 €
- Zimmer
- 4
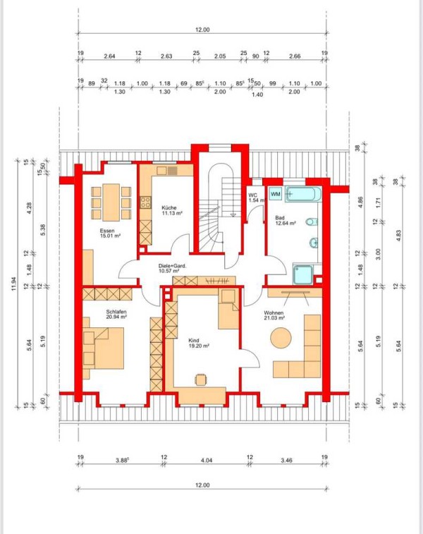
- Fläche
- 113 m²
7 Aufrufe
Objekt-ID: 38726575
| Objekttyp: | Etagenwohnung |
| Zimmer: | 4 |
| Größe: | 113.00 m² |
| Verfügbar ab: | keine Angabe |
Preise & Kosten
| Kaufpreis: | 260.000 € |
| Jetzt kostenlos Finanzierungsangebot anfragen! | |
| Provision: | Nein |
| Preis/m²: | 2.300,89 € |
| Mit Immobilienpreisen Ludwigshafen am Rhein vergleichen | |
Immobilie
Keller
| Baujahr: | 1920 |
| Befeuerungsart: | Fernwärme |
| Energieausweis: | Bedarfsausweis |
Objektbeschreibung
Diese Eigentumswohnung befindet sich in einem Mehrfamilienhauses mit 6 Wohneinheiten. Die Immobilie wurde 2016 kernsaniert inkl. Elektrik, im Oktober 2025 wurde sie nochmal weiß gestrichen.
Die Rücklagen für die Wohneinheit betragen ca. 13.000 €, für das ganze Haus ca. 45.000 €.
Geheizt wird mittels Fernwärme (Baujahr 2014). Fenster sind doppelt verglast. Haustür wurde 2020 ausgetauscht. Das Dach wurde 2016 erneuert und gedämmt.
Die Rücklagen für die Wohneinheit betragen ca. 13.000 €, für das ganze Haus ca. 45.000 €.
Geheizt wird mittels Fernwärme (Baujahr 2014). Fenster sind doppelt verglast. Haustür wurde 2020 ausgetauscht. Das Dach wurde 2016 erneuert und gedämmt.
Lage
67061 Ludwigshafen am RheinLudwigshafen am Rhein Süd
Der aktuelle durchschnittliche Quadratmeterpreis beträgt 2.532,55 €/m² in Ludwigshafen am Rhein - Süd. Der durchschnittliche Immobilienpreis in Ludwigshafen am Rhein liegt derzeit bei 2.855,52 €/m².
Mit Immobilienpreisen
Ludwigshafen am Rhein vergleichen
Was kostet dein Umzug?
Du planst einen Umzug? Finde jetzt die günstigste Umzugsfirma in deiner Region!
Umzugskosten berechnen Schütze dich vor Betrug!
Leiste keinerlei Zahlung im Vorraus!
Beachte unsere Sicherheitshinweise zum Thema Immobilienbetrug und lies, woran du solche Anzeigen erkennen kannst und wie du dich vor Betrügern schützt.
Anzeige melden Beachte unsere Sicherheitshinweise zum Thema Immobilienbetrug und lies, woran du solche Anzeigen erkennen kannst und wie du dich vor Betrügern schützt.
*Anzeige
Ähnliche Immobilien bei ImmoScout24
Ludwigshafen am Rhein-Süd
- Kaufpreis
- 210.000 €
- Zimmer
- 4 Zi.
- Fläche
- 105 Zi.
Anbieter
Weitere Ergebnisse für:
Wohnungen
Ludwigshafen am Rhein;
Immobilien
Ludwigshafen am Rhein;
Haus mieten
Ludwigshafen am Rhein;
WG Zimmer
Ludwigshafen am Rhein;
Wohnung
Ludwigshafen am Rhein kaufen;
Haus kaufen
Ludwigshafen am Rhein;
Immobilienpreise
Ludwigshafen am Rhein Mietspiegel
Ludwigshafen am Rhein wohnungsboerse.net übernimmt keine Gewähr für von Dritten gemachte Angaben