
Haus zum kaufen in Langen (Hessen)
ab 1,13% Jahreszins QNG-förderfähig & Energieeffizient + Reihenmittelhaus in Toplage in Langen
auf der Karte ansehenUmzugskosten berechnen
- Kaufpreis
- 597.002 €
- Zimmer
- 6
- Fläche
- 120 m²
3 Aufrufe
Objekt-ID: 38693533
Objekttyp: | Keine Angabe |
Zimmer: | 6 |
Größe: | 120.00 m² |
Grundstücksfläche: | 275,00 m² |
Verfügbar ab: | keine Angabe |
Preise & Kosten
Kaufpreis: | 597.002 € |
Jetzt kostenlos Finanzierungsangebot anfragen! |
Provision: | Ja |
Preis/m²: | 4.975,02 € |
Mit Immobilienpreisen Langen (Hessen) vergleichen |
Immobilie
Baujahr: | 2026 |
Energieausweis: | Energieausweis in Vorbereitung |
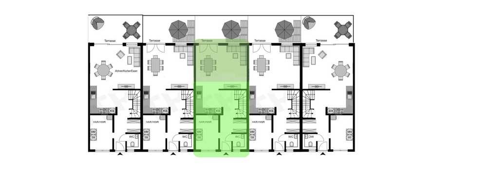
Objektbeschreibung
Willkommen in Ihrem neuen Traumhaus in Langen, Hessen! Dieses moderne Doppelhaus bietet Ihnen und Ihrer Familie auf einer großzügigen Wohnfläche von 120 m² mit 6 Zimmern, darunter 3 Schlafzimmer, ein Badezimmer mit Dusche, Wanne und Fenster sowie ein zusätzliches Gäste-WC, ein komfortables und ansprechendes Zuhause. Das durchdachte Raumkonzept sorgt für viel Licht und eine einladende Atmosphäre, die zum Verweilen einlädt. Dank der flexiblen Planung der STREIF-Architekten können Sie Ihr neues Zuhause nach Ihren individuellen Wünschen gestalten. Der Bau erfolgt nach dem KfW 40 EE-Standard, was Ihnen nicht nur ein modernes Wohngefühl, sondern auch ein umweltfreundliches und energiesparendes Zuhause garantiert.
Lage
63225 Langen (Hessen)Langen (Hessen)
Der aktuelle durchschnittliche Quadratmeterpreis beträgt 4.843,07 €/m² in Langen (Hessen).
Mit Immobilienpreisen
Langen-Hessen vergleichen
Was kostet dein Umzug?
Du planst einen Umzug? Finde jetzt die günstigste Umzugsfirma in deiner Region!
Umzugskosten berechnen Schütze dich vor Betrug!
Leiste keinerlei Zahlung im Vorraus!
Beachte unsere Sicherheitshinweise zum Thema Immobilienbetrug und lies, woran du solche Anzeigen erkennen kannst und wie du dich vor Betrügern schützt.
Anzeige melden Beachte unsere Sicherheitshinweise zum Thema Immobilienbetrug und lies, woran du solche Anzeigen erkennen kannst und wie du dich vor Betrügern schützt.
*Anzeige

Ähnliche Häuser bei ImmoScout24
Langen (Hessen)
- Kaufpreis
- 550.000 €
- Zimmer
- 6 Zi.
- Fläche
- 110 Zi.
Anbieter
Weitere Ergebnisse für:
Wohnungen
Langen (Hessen);
Immobilien
Langen (Hessen);
Haus mieten
Langen (Hessen);
WG Zimmer
Langen (Hessen);
Wohnung
Langen (Hessen) kaufen;
Haus kaufen
Langen (Hessen);
Immobilienpreise
Langen (Hessen) Mietspiegel
Langen (Hessen) wohnungsboerse.net übernimmt keine Gewähr für von Dritten gemachte Angaben