
Doppelhaushälfte zum kaufen in Oelde
Doppelhaushälfte mit Anbau in Oelde
auf der Karte ansehenUmzugskosten berechnen
- Kaufpreis
- 160.000 €
- Zimmer
- 5
- Fläche
- 110 m²
4 Aufrufe
Objekt-ID: 38669529
Objekttyp: | Doppelhaushälfte |
Zimmer: | 5 |
Größe: | 110.00 m² |
Grundstücksfläche: | 346,00 m² |
Verfügbar ab: | keine Angabe |
Preise & Kosten
Kaufpreis: | 160.000 € |
Jetzt kostenlos Finanzierungsangebot anfragen! |
Provision: | Ja |
Preis/m²: | 1.454,55 € |
Mit Immobilienpreisen Oelde vergleichen |
Immobilie
Befeuerungsart: | Öl |
Energieausweis: | Bedarfsausweis |
Endenergiebedarf: | 404,80 kWh/(m²*a) |
Energieeffizienzklasse: | H |
Objektbeschreibung
verkauft wird eine Doppelhaushälfte mit Anbau und Garten in Oelde.
Das Ursprungsbaujahr ist unbekannt, es müsste um 1900 sein.
1957 Umbau und Teilunterkellerung
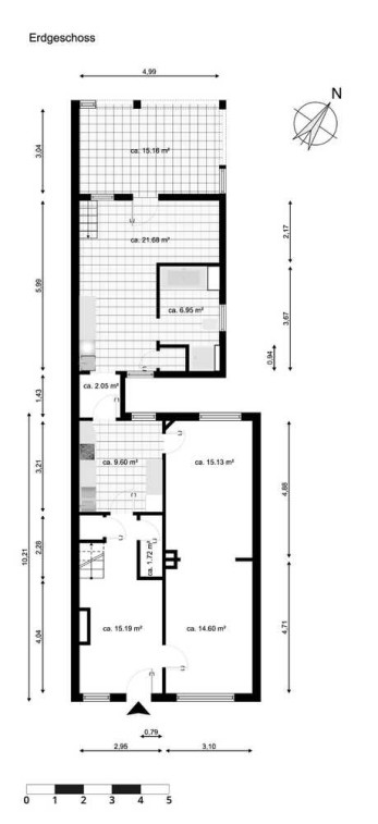
Aufteilung:
Erdgeschoß:
Wohn- / Esszimmer, Diele, Küche, Badezimmer, Abstellraum, Wirtschaftsraum
Obergeschoß:
4 Schlafzimmer, Flur, WC
Kellergeschoß
Teilunterkellert
Das Ursprungsbaujahr ist unbekannt, es müsste um 1900 sein.
1957 Umbau und Teilunterkellerung
Aufteilung:
Erdgeschoß:
Wohn- / Esszimmer, Diele, Küche, Badezimmer, Abstellraum, Wirtschaftsraum
Obergeschoß:
4 Schlafzimmer, Flur, WC
Kellergeschoß
Teilunterkellert
Lage
59302 OeldeOelde
Der aktuelle durchschnittliche Quadratmeterpreis beträgt 3.019,40 €/m² in Oelde.
Mit Immobilienpreisen
Oelde vergleichen
Was kostet dein Umzug?
Du planst einen Umzug? Finde jetzt die günstigste Umzugsfirma in deiner Region!
Umzugskosten berechnen Schütze dich vor Betrug!
Leiste keinerlei Zahlung im Vorraus!
Beachte unsere Sicherheitshinweise zum Thema Immobilienbetrug und lies, woran du solche Anzeigen erkennen kannst und wie du dich vor Betrügern schützt.
Anzeige melden Beachte unsere Sicherheitshinweise zum Thema Immobilienbetrug und lies, woran du solche Anzeigen erkennen kannst und wie du dich vor Betrügern schützt.
*Anzeige

Ähnliche Häuser bei ImmoScout24
Oelde
- Kaufpreis
- 110.000 €
- Zimmer
- 5 Zi.
- Fläche
- 100 Zi.
Anbieter
Weitere Ergebnisse für:
Wohnungen
Oelde;
Immobilien
Oelde;
Haus mieten
Oelde;
WG Zimmer
Oelde;
Wohnung
Oelde kaufen;
Haus kaufen
Oelde;
Immobilienpreise
Oelde Mietspiegel
Oelde wohnungsboerse.net übernimmt keine Gewähr für von Dritten gemachte Angaben