
Etagenwohnung in Perl
PERL: SOFORT BEZIEHBAR, WOHNUNG MIT KAMINOFEN IM 3 FAMILIENHAUS.
auf der Karte ansehenUmzugskosten berechnen
- Kaufpreis
- 198.800 €
- Zimmer
- 2
- Fläche
- 72 m²
1 Aufrufe
Objekt-ID: 38668785
Objekttyp: | Etagenwohnung |
Zimmer: | 2 |
Größe: | 72.00 m² |
Verfügbar ab: | keine Angabe |
Preise & Kosten
Kaufpreis: | 198.800 € |
Jetzt kostenlos Finanzierungsangebot anfragen! |
Provision: | Ja |
Preis/m²: | 2.761,11 € |
Mit Immobilienpreisen Perl vergleichen |
Immobilie
Keller
Baujahr: | 1900 |
Energieausweis: | Bedarfsausweis |
Endenergiebedarf: | 31,40 kWh/(m²*a) |
Energieeffizienzklasse: | A |
Objektbeschreibung
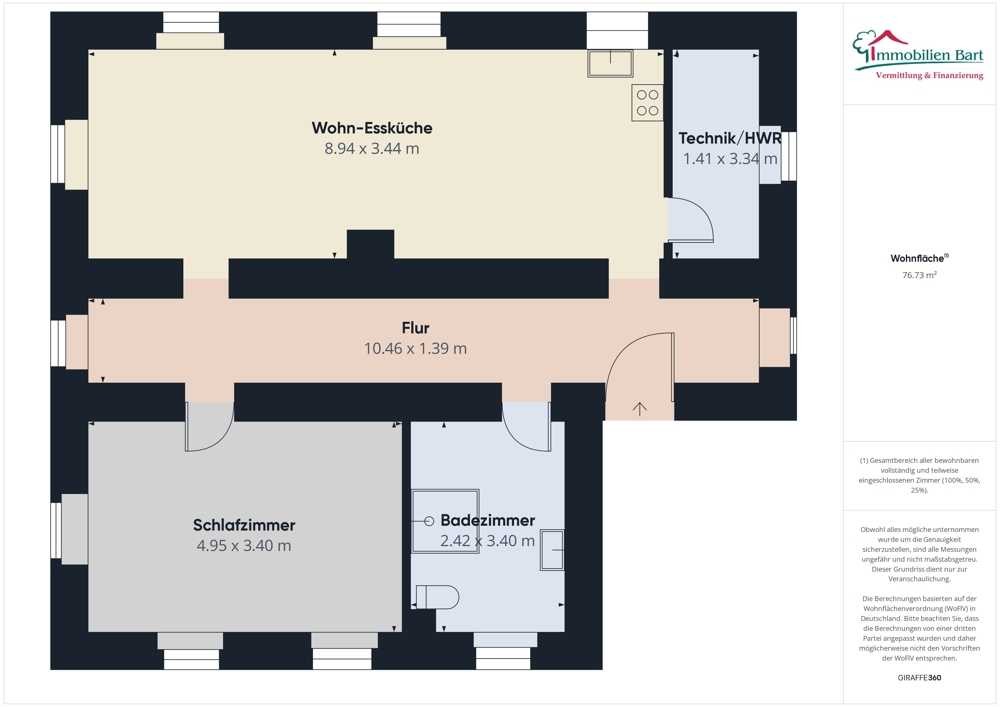
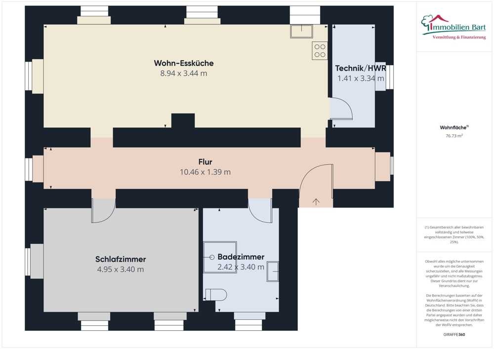
In Perl-BORG bieten wir Ihnen eine Eigentumswohnung in einem Mehrfamilienhaus mit 3 Wohneinheiten an. Diese Wohnung befindet sich im Obergeschoss und verfügt über ca. 72 m² Wohnfläche. Zur Wohnung gehört außerdem ein PKW-Stellplatz und ein Kellerraum (EG).
Die Aufteilung ist wie folgt:
1. Obergeschoss:
Flur (ca. 17 m²), großer Wohn-/Essbereich mit offener Küche (ca. 30 m²) und Abstellraum (ca. 5 m²), Schlafzimmer (ca. 14 m²), Bad mit Dusche (ca. 6,5 m²).
Die Aufteilung ist wie folgt:
1. Obergeschoss:
Flur (ca. 17 m²), großer Wohn-/Essbereich mit offener Küche (ca. 30 m²) und Abstellraum (ca. 5 m²), Schlafzimmer (ca. 14 m²), Bad mit Dusche (ca. 6,5 m²).
Lage
66706 PerlPerl
Der aktuelle durchschnittliche Quadratmeterpreis beträgt 3.559,96 €/m² in Perl.
Mit Immobilienpreisen
Perl vergleichen
Was kostet dein Umzug?
Du planst einen Umzug? Finde jetzt die günstigste Umzugsfirma in deiner Region!
Umzugskosten berechnen Schütze dich vor Betrug!
Leiste keinerlei Zahlung im Vorraus!
Beachte unsere Sicherheitshinweise zum Thema Immobilienbetrug und lies, woran du solche Anzeigen erkennen kannst und wie du dich vor Betrügern schützt.
Anzeige melden Beachte unsere Sicherheitshinweise zum Thema Immobilienbetrug und lies, woran du solche Anzeigen erkennen kannst und wie du dich vor Betrügern schützt.
*Anzeige

Ähnliche Immobilien bei ImmoScout24
Perl
- Kaufpreis
- 150.000 €
- Zimmer
- 2 Zi.
- Fläche
- 65 Zi.
Anbieter
Weitere Ergebnisse für:
Wohnungen
Perl;
Immobilien
Perl;
Haus mieten
Perl;
WG Zimmer
Perl;
Wohnung
Perl kaufen;
Haus kaufen
Perl;
Immobilienpreise
Perl Mietspiegel
Perl wohnungsboerse.net übernimmt keine Gewähr für von Dritten gemachte Angaben