
Etagenwohnung in Konstanz
Großzügige 5,5-Zimmer-Wohnung mit Aufzug, Balkon & Garage
auf der Karte ansehenUmzugskosten berechnen
- Kaufpreis
- 1.240.000 €
- Zimmer
- 5.5
- Fläche
- 143.9 m²
10 Aufrufe
Objekt-ID: 38646158
Objekttyp: | Etagenwohnung |
Zimmer: | 5.5 |
Größe: | 143.90 m² |
Etage: | 2 von 5 |
Verfügbar ab: | 1.7.2026 |
Preise & Kosten
Kaufpreis: | 1.240.000 € |
Jetzt kostenlos Finanzierungsangebot anfragen! |
Provision: | Nein |
Preis/m²: | 8.617,09 € |
Mit Immobilienpreisen Konstanz vergleichen |
Immobilie
Balkon
Garten
Einbauküche
Aufzug
Garage
Keller
Behindertengerecht
Baujahr: | 1906 |
Befeuerungsart: | Gas |
Energieausweis: | Bedarfsausweis |
Endenergiebedarf: | 55,00 kWh/(m²*a) |
Energieeffizienzklasse: | B |
Objektbeschreibung
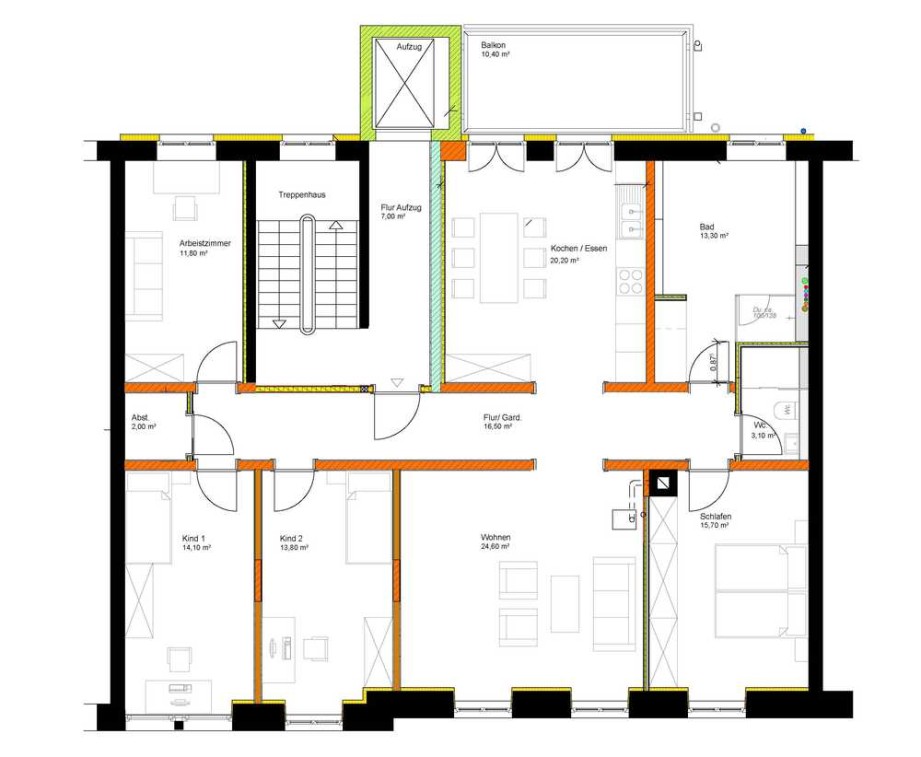
Diese großzügige, barrierefreie Altbauwohnung verbindet den Charakter eines historischen Gebäudes von 1906 mit dem Komfort einer modernen Wohnung. Das Haus wurde 2015 vollständig entkernt und substantiell mit neuen Decken, neuem Dachstuhl, hochwertiger Wärmedämmung und Fußbodenheizung saniert.
Die ca. 144 m² Wohnfläche ist gut aufgeteilt und bietet einen offenen, zentralen Bereich, in dem Küche, Flur und Wohnzimmer harmonisch ineinander übergehen. Alle Wohnräume sind mit Echtholz-Fischgrätparkett ausgestattet.
Zu den Besonderheiten der Wohnung zählen die großzügige Wohnküche mit Zugang zum sonnigen Westbalkon, das Wohnzimmer mit Kaminofenanschluss sowie vier weitere Zimmer, die flexibel als Schlaf-, Kinder-, Gäste- oder Arbeitszimmer genutzt werden können. Zwei modern ausgestattete Bäder sowie ein praktischer Abstellraum zählen ebenso dazu. Der Aussenflur kann wie ein Vorraum als Garderobe genutzt werden..
Die ca. 144 m² Wohnfläche ist gut aufgeteilt und bietet einen offenen, zentralen Bereich, in dem Küche, Flur und Wohnzimmer harmonisch ineinander übergehen. Alle Wohnräume sind mit Echtholz-Fischgrätparkett ausgestattet.
Zu den Besonderheiten der Wohnung zählen die großzügige Wohnküche mit Zugang zum sonnigen Westbalkon, das Wohnzimmer mit Kaminofenanschluss sowie vier weitere Zimmer, die flexibel als Schlaf-, Kinder-, Gäste- oder Arbeitszimmer genutzt werden können. Zwei modern ausgestattete Bäder sowie ein praktischer Abstellraum zählen ebenso dazu. Der Aussenflur kann wie ein Vorraum als Garderobe genutzt werden..
Lage
78462 KonstanzKonstanz
Der aktuelle durchschnittliche Quadratmeterpreis beträgt 5.705,86 €/m² in Konstanz.
Mit Immobilienpreisen
Konstanz vergleichen
Was kostet dein Umzug?
Du planst einen Umzug? Finde jetzt die günstigste Umzugsfirma in deiner Region!
Umzugskosten berechnen Schütze dich vor Betrug!
Leiste keinerlei Zahlung im Vorraus!
Beachte unsere Sicherheitshinweise zum Thema Immobilienbetrug und lies, woran du solche Anzeigen erkennen kannst und wie du dich vor Betrügern schützt.
Anzeige melden Beachte unsere Sicherheitshinweise zum Thema Immobilienbetrug und lies, woran du solche Anzeigen erkennen kannst und wie du dich vor Betrügern schützt.
*Anzeige

Ähnliche Immobilien bei ImmoScout24
Konstanz
- Kaufpreis
- 1.190.000 €
- Zimmer
- 5.5 Zi.
- Fläche
- 135 Zi.
Weitere Ergebnisse für:
Wohnungen
Konstanz;
Immobilien
Konstanz;
Haus mieten
Konstanz;
WG Zimmer
Konstanz;
Wohnung
Konstanz kaufen;
Haus kaufen
Konstanz;
Immobilienpreise
Konstanz Mietspiegel
Konstanz wohnungsboerse.net übernimmt keine Gewähr für von Dritten gemachte Angaben