
Etagenwohnung in Fridingen an der Donau
Kernsanierte Apartments im KfW-40-Standard
auf der Karte ansehenUmzugskosten berechnen
- Kaufpreis
- 106.000 €
- Zimmer
- 1
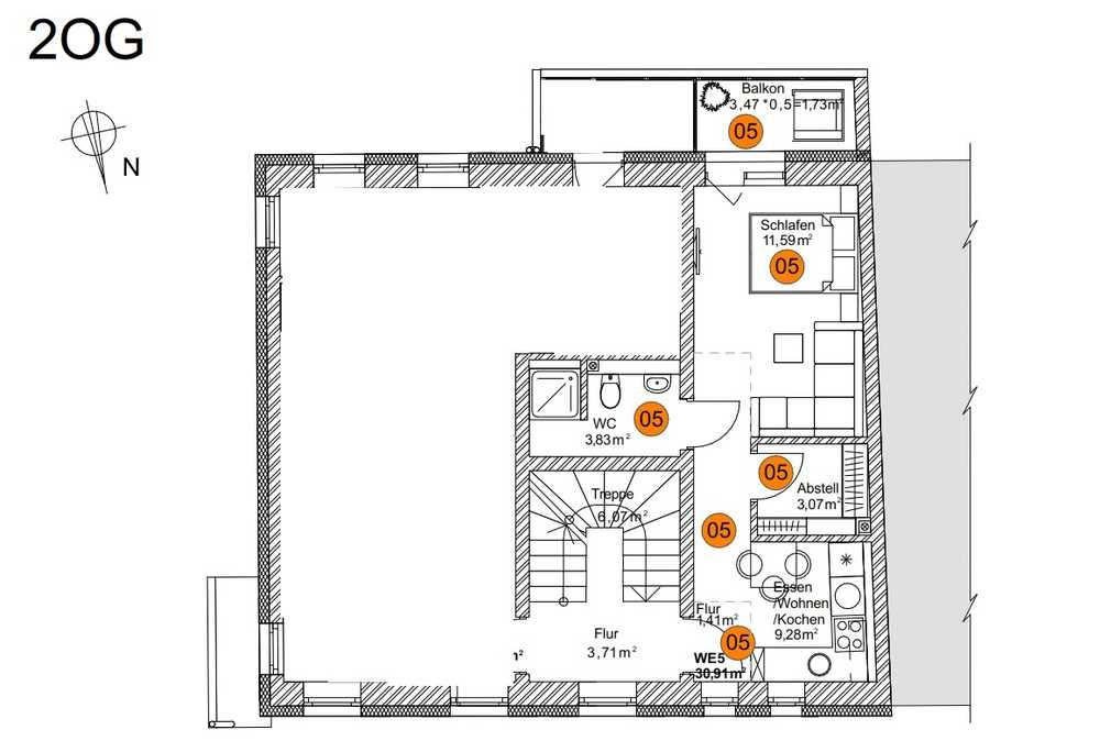
- Fläche
- 30.91 m²
4 Aufrufe
Objekt-ID: 38634048
Objekttyp: | Etagenwohnung |
Zimmer: | 1 |
Größe: | 30.91 m² |
Etage: | 2 von 4 |
Verfügbar ab: | Dezember 2026 |
Preise & Kosten
Kaufpreis: | 106.000 € |
Jetzt kostenlos Finanzierungsangebot anfragen! |
Provision: | Nein |
Preis/m²: | 3.429,31 € |
Mit Immobilienpreisen Fridingen an der Donau vergleichen |
Immobilie
Balkon
Einbauküche
Baujahr: | 1850 |
Energieausweis: | Bedarfsausweis |
Endenergiebedarf: | 11,00 kWh/(m²*a) |
Energieeffizienzklasse: | A+ |
Objektbeschreibung
Attraktive Wohnungen mit 1 oder 2 Zimmern in Fridingen – Ideal für Kapitalanleger und Eigennutzer
In der Donaustraße 33, 78567 Fridingen an der Donau entsteht durch eine hochwertige Kernsanierung ein modernes Mehrfamilienhaus nach KfW-40 (EE) Standard. Die Wohnungen mit 1 oder 2 Zimmern bieten gut durchdachte Grundrisse und eignen sich sowohl zur Eigennutzung als auch zur Kapitalanlage. Auch eine Kombination aus beidem – erst selbst einziehen, später vermieten – ist durchaus denkbar.
Sonderaktion bis zum 31.10.2025:
Wer sich bis Ende Oktober zum Kauf entscheidet, profitiert richtig:
- Zahlung erst nach Abnahme der Wohnung
- Der Bauträger übernimmt die vollständige Maklerprovision
- Der Bauträger übernimmt die vollständigen Notarkosten
- Die Wohnung wird mit Küche verkauft.
- Wir übernehmen die Erstvermietung für Sie
- 12 Monate Mietsonderverwaltung inklusive
Die Wohnungen überzeugen durch zeitgemäße Architektur und moderner Ausstattung: Fußbodenheizung, elektrische Rollläden, hochwertige Fenster mit 3-fach-Verglasung. Geheizt wird umweltfreundlich über eine Luft-Wärmepumpe, unterstützt durch ein durchdachtes Wärmerückgewinnungssystem in der Wohnraumlüftung – effizient und zukunftssicher. In den Badezimmern kommen Markenprodukte – u. a. von Hansgrohe oder gleichwertigen Herstellern – zum Einsatz. Eine ebenerdige Dusche mit Duschrinne ist ebenso Standard wie moderne Waschtischanlagen und wandhängende WC's. Geheizt wird mit einer Luft Wärmepumpe.
Individuell mitgestalten: Käufer haben aktuell noch die Möglichkeit, bei der Auswahl von Bodenbelägen, Wand- und Bodenfliesen sowie passenden Sockelleisten mitzuentscheiden – ein echter Pluspunkt, um die Wohnung nach eigenen Vorstellungen auszustatten.
Die Lage überzeugt mit guter Erreichbarkeit des Zentrums, fußläufigen Einkaufsmöglichkeiten sowie Anschluss an den ÖPNV. Gleichzeitig bietet die unmittelbare Umgebung des Donautals hervorragende Freizeit- und Erholungsmöglichkeiten – ein Standort mit hoher Lebensqualität.
Haben Sie Fragen oder wünschen weitere Informationen? Melden Sie sich gerne bei uns.
In der Donaustraße 33, 78567 Fridingen an der Donau entsteht durch eine hochwertige Kernsanierung ein modernes Mehrfamilienhaus nach KfW-40 (EE) Standard. Die Wohnungen mit 1 oder 2 Zimmern bieten gut durchdachte Grundrisse und eignen sich sowohl zur Eigennutzung als auch zur Kapitalanlage. Auch eine Kombination aus beidem – erst selbst einziehen, später vermieten – ist durchaus denkbar.
Sonderaktion bis zum 31.10.2025:
Wer sich bis Ende Oktober zum Kauf entscheidet, profitiert richtig:
- Zahlung erst nach Abnahme der Wohnung
- Der Bauträger übernimmt die vollständige Maklerprovision
- Der Bauträger übernimmt die vollständigen Notarkosten
- Die Wohnung wird mit Küche verkauft.
- Wir übernehmen die Erstvermietung für Sie
- 12 Monate Mietsonderverwaltung inklusive
Die Wohnungen überzeugen durch zeitgemäße Architektur und moderner Ausstattung: Fußbodenheizung, elektrische Rollläden, hochwertige Fenster mit 3-fach-Verglasung. Geheizt wird umweltfreundlich über eine Luft-Wärmepumpe, unterstützt durch ein durchdachtes Wärmerückgewinnungssystem in der Wohnraumlüftung – effizient und zukunftssicher. In den Badezimmern kommen Markenprodukte – u. a. von Hansgrohe oder gleichwertigen Herstellern – zum Einsatz. Eine ebenerdige Dusche mit Duschrinne ist ebenso Standard wie moderne Waschtischanlagen und wandhängende WC's. Geheizt wird mit einer Luft Wärmepumpe.
Individuell mitgestalten: Käufer haben aktuell noch die Möglichkeit, bei der Auswahl von Bodenbelägen, Wand- und Bodenfliesen sowie passenden Sockelleisten mitzuentscheiden – ein echter Pluspunkt, um die Wohnung nach eigenen Vorstellungen auszustatten.
Die Lage überzeugt mit guter Erreichbarkeit des Zentrums, fußläufigen Einkaufsmöglichkeiten sowie Anschluss an den ÖPNV. Gleichzeitig bietet die unmittelbare Umgebung des Donautals hervorragende Freizeit- und Erholungsmöglichkeiten – ein Standort mit hoher Lebensqualität.
Haben Sie Fragen oder wünschen weitere Informationen? Melden Sie sich gerne bei uns.
Lage
78567 Fridingen an der DonauFridingen an der Donau
Der aktuelle durchschnittliche Quadratmeterpreis beträgt 2.839,39 €/m² in Fridingen an der Donau.
Mit Immobilienpreisen
Fridingen-an-der-Donau vergleichen
Was kostet dein Umzug?
Du planst einen Umzug? Finde jetzt die günstigste Umzugsfirma in deiner Region!
Umzugskosten berechnen Schütze dich vor Betrug!
Leiste keinerlei Zahlung im Vorraus!
Beachte unsere Sicherheitshinweise zum Thema Immobilienbetrug und lies, woran du solche Anzeigen erkennen kannst und wie du dich vor Betrügern schützt.
Anzeige melden Beachte unsere Sicherheitshinweise zum Thema Immobilienbetrug und lies, woran du solche Anzeigen erkennen kannst und wie du dich vor Betrügern schützt.
*Anzeige

Ähnliche Immobilien bei ImmoScout24
Fridingen an der Donau
- Kaufpreis
- 60.000 €
- Zimmer
- 1 Zi.
- Fläche
- 25 Zi.
Anbieter
Weitere Ergebnisse für:
Wohnungen
Fridingen an der Donau;
Immobilien
Fridingen an der Donau;
Haus mieten
Fridingen an der Donau;
WG Zimmer
Fridingen an der Donau;
Wohnung
Fridingen an der Donau kaufen;
Haus kaufen
Fridingen an der Donau;
Immobilienpreise
Fridingen an der Donau Mietspiegel
Fridingen an der Donau wohnungsboerse.net übernimmt keine Gewähr für von Dritten gemachte Angaben