
Mehrfamilienhaus zum kaufen in Passau-Hacklberg
Renovierungsbedürftiges Anwesen mit Neubaupotenzial in Passau Schalding l.d.D.
auf der Karte ansehenUmzugskosten berechnen
- Kaufpreis
- 299.000 €
- Zimmer
- 10
- Fläche
- 251 m²
13 Aufrufe
Objekt-ID: 38597723
| Objekttyp: | Mehrfamilienhaus |
| Zimmer: | 10 |
| Größe: | 251.00 m² |
| Grundstücksfläche: | 1.615,00 m² |
| Verfügbar ab: | 5.10.2025 |
Preise & Kosten
| Kaufpreis: | 299.000 € |
| Jetzt kostenlos Finanzierungsangebot anfragen! | |
| Provision: | Nein |
| Preis/m²: | 1.191,24 € |
| Mit Immobilienpreisen Passau vergleichen | |
Immobilie
Neubau
| Baujahr: | 1960 |
| Befeuerungsart: | Öl |
Objektbeschreibung
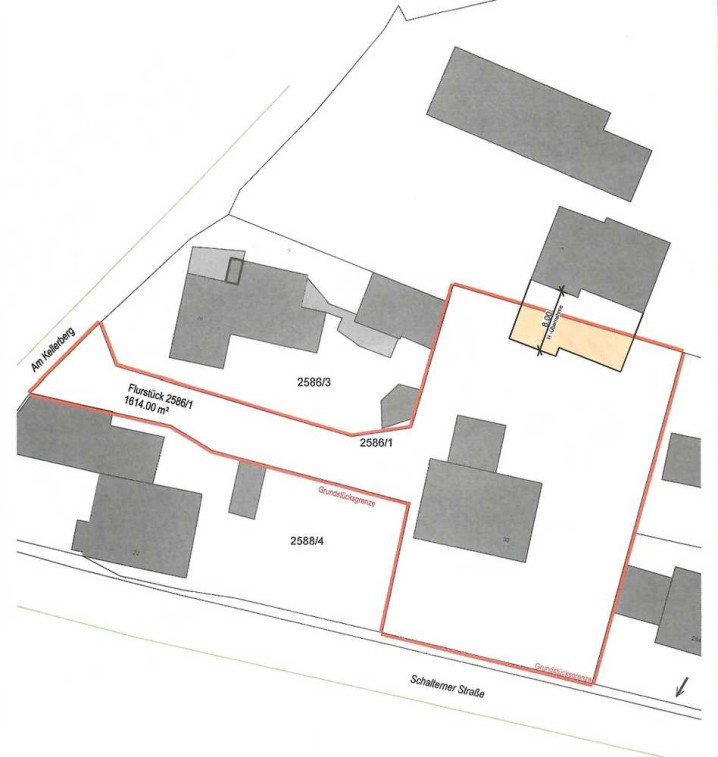
Das renovierungsbedürftige Anwesen/Mehrfamilienhaus mit ca. 251 m² Wohnfläche und 1615 m² Grundstücksfläche befindet sich in zentraler Lage in Passau-Schalding l.d.D.. Das Haus wurde 1960 erbaut und zuletzt 1975 renoviert. Es verfügt über 10 Zimmer, 2 Badezimmer und eine sehr einfache Innenausstattung. Zwei Einzelgaragen bieten Platz für Ihr Fahrzeug. Das Anwesen ist ab dem 04.10.2025 verfügbar.
Neben einer Renovierung des Gebäudes ist ein Abriss und Neubau
eines Wohngeschoßbaus oder mehrerer EInfamilienhäuser, Doppelhäuser eine überlegenswerte Alternative. Die beigefügten Bebauungsmöglichkeiten 2 EFH und 4 EFH sind als Beispiele zu möglichen Bebauungsszenarien gedacht. Ein Wohngeschoßbau wurde mit einem Architektenteam bereits skizziert und mit der Stadt Passau vorbesprochen, ebenso die Möglichkkeit einer direkten Zufahrt von der Schaltener Straße aus.
Neben einer Renovierung des Gebäudes ist ein Abriss und Neubau
eines Wohngeschoßbaus oder mehrerer EInfamilienhäuser, Doppelhäuser eine überlegenswerte Alternative. Die beigefügten Bebauungsmöglichkeiten 2 EFH und 4 EFH sind als Beispiele zu möglichen Bebauungsszenarien gedacht. Ein Wohngeschoßbau wurde mit einem Architektenteam bereits skizziert und mit der Stadt Passau vorbesprochen, ebenso die Möglichkkeit einer direkten Zufahrt von der Schaltener Straße aus.
Lage
Schalterner Straße94034 Passau
Passau Hacklberg
Der aktuelle durchschnittliche Quadratmeterpreis beträgt 3.179,44 €/m² in Passau - Hacklberg. Der durchschnittliche Immobilienpreis in Passau liegt derzeit bei 3.363,58 €/m².
Mit Immobilienpreisen
Passau vergleichen
Was kostet dein Umzug?
Du planst einen Umzug? Finde jetzt die günstigste Umzugsfirma in deiner Region!
Umzugskosten berechnen Schütze dich vor Betrug!
Leiste keinerlei Zahlung im Vorraus!
Beachte unsere Sicherheitshinweise zum Thema Immobilienbetrug und lies, woran du solche Anzeigen erkennen kannst und wie du dich vor Betrügern schützt.
Anzeige melden Beachte unsere Sicherheitshinweise zum Thema Immobilienbetrug und lies, woran du solche Anzeigen erkennen kannst und wie du dich vor Betrügern schützt.
*Anzeige
Ähnliche Häuser bei ImmoScout24
Passau-Hacklberg
- Kaufpreis
- 250.000 €
- Zimmer
- 10 Zi.
- Fläche
- 245 Zi.
Weitere Ergebnisse für:
Wohnungen
Passau;
Immobilien
Passau;
Haus mieten
Passau;
WG Zimmer
Passau;
Wohnung
Passau kaufen;
Haus kaufen
Passau;
Immobilienpreise
Passau Mietspiegel
Passau wohnungsboerse.net übernimmt keine Gewähr für von Dritten gemachte Angaben