
Mehrfamilienhaus zum kaufen in Hambühren
5% Rendite: Mehrfamilienhaus mit 4 Einheiten: attraktive Rendite und weiteres Steigerungspotenzial
auf der Karte ansehenUmzugskosten berechnen
- Kaufpreis
- 873.000 €
- Zimmer
- 10
- Fläche
- 320 m²
6 Aufrufe
Objekt-ID: 38552067
Objekttyp: | Mehrfamilienhaus |
Zimmer: | 10 |
Größe: | 320.00 m² |
Grundstücksfläche: | 1.076,00 m² |
Verfügbar ab: | keine Angabe |
Preise & Kosten
Kaufpreis: | 873.000 € |
Jetzt kostenlos Finanzierungsangebot anfragen! |
Provision: | Ja |
Preis/m²: | 2.728,12 € |
Mit Immobilienpreisen Hambühren vergleichen |
Immobilie
Baujahr: | 1906 |
Befeuerungsart: | Gas |
Energieausweis: | Bedarfsausweis |
Energieverbrauchskennwert: | 312,40 kWh/(m²*a) |
Objektbeschreibung
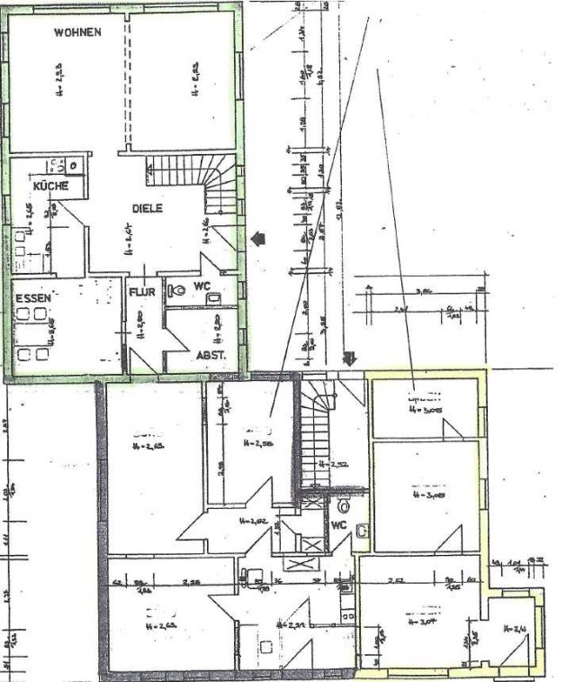
Dieses gepflegte Mehrfamilienhaus bietet Kapitalanlegern eine interessante Kombination aus solider Rendite und Entwicklungsmöglichkeiten. Mit insgesamt 4 Wohneinheiten und einer Gesamtwohnfläche von ca. 320 m² überzeugt die Immobilie sowohl durch ihre Bestandsmieteinnahmen als auch durch weiteres Ausbaupotenzial.
Die Einheiten verteilen sich wie folgt:
1. Vorderhaus: 2 modernisierte Ferienwohnungen mit zusammen ca. 99 m²
2. Dachgeschoss: ca. 83 m² Wohnfläche
3. Hinterhaus: ca. 138 m² Wohnfläche
Aktuell ist 1 Wohnung im Hinterhaus dauerhaft vermietet, zwei Einheiten werden als Ferienwohnungen genutzt. Eine weitere Wohnung im Dachgeschoss ist aktuell für 3 Wochen vermietet. Der monatliche Gesamtertrag lag im Jahr 2024 durchschnittlich bei 2.389 €.
Das Haus ist nicht unterkellert, verfügt jedoch über einen kleinen Teilkeller für die Heizungsanlage. Zum Anwesen gehören außerdem zwei Stellplätze sowie ein Carport, die den Wohnkomfort für Mieter und Gäste abrunden.
Die Immobilie wurde laufend renoviert und instandgehalten. Zuletzt erfolgte der gelungene Umbau der beiden Ferienwohnungen, die heute eine attraktive Einnahmequelle darstellen.
Dieses Mehrfamilienhaus stellt eine lohnenswerte Investition dar: Eine solide Bestandsrendite, kombiniert mit der Möglichkeit, die Erträge noch zu steigern, macht es zu einer interessanten Option für langfristig orientierte Kapitalanleger.
Zusätzlich stehen auf dem gleichen Grundstück eine weitere Immobilie sowie ein angrenzendes Grundstück zum Verkauf. Ein Erwerb im Paket ist grundsätzlich möglich und könnte eine interessante Investitionsmöglichkeit darstellen.
Die Einheiten verteilen sich wie folgt:
1. Vorderhaus: 2 modernisierte Ferienwohnungen mit zusammen ca. 99 m²
2. Dachgeschoss: ca. 83 m² Wohnfläche
3. Hinterhaus: ca. 138 m² Wohnfläche
Aktuell ist 1 Wohnung im Hinterhaus dauerhaft vermietet, zwei Einheiten werden als Ferienwohnungen genutzt. Eine weitere Wohnung im Dachgeschoss ist aktuell für 3 Wochen vermietet. Der monatliche Gesamtertrag lag im Jahr 2024 durchschnittlich bei 2.389 €.
Das Haus ist nicht unterkellert, verfügt jedoch über einen kleinen Teilkeller für die Heizungsanlage. Zum Anwesen gehören außerdem zwei Stellplätze sowie ein Carport, die den Wohnkomfort für Mieter und Gäste abrunden.
Die Immobilie wurde laufend renoviert und instandgehalten. Zuletzt erfolgte der gelungene Umbau der beiden Ferienwohnungen, die heute eine attraktive Einnahmequelle darstellen.
Dieses Mehrfamilienhaus stellt eine lohnenswerte Investition dar: Eine solide Bestandsrendite, kombiniert mit der Möglichkeit, die Erträge noch zu steigern, macht es zu einer interessanten Option für langfristig orientierte Kapitalanleger.
Zusätzlich stehen auf dem gleichen Grundstück eine weitere Immobilie sowie ein angrenzendes Grundstück zum Verkauf. Ein Erwerb im Paket ist grundsätzlich möglich und könnte eine interessante Investitionsmöglichkeit darstellen.
Lage
29313 HambührenHambühren
Der aktuelle durchschnittliche Quadratmeterpreis beträgt 2.787,09 €/m² in Hambühren.
Mit Immobilienpreisen
Hambuehren vergleichen
Was kostet dein Umzug?
Du planst einen Umzug? Finde jetzt die günstigste Umzugsfirma in deiner Region!
Umzugskosten berechnen Schütze dich vor Betrug!
Leiste keinerlei Zahlung im Vorraus!
Beachte unsere Sicherheitshinweise zum Thema Immobilienbetrug und lies, woran du solche Anzeigen erkennen kannst und wie du dich vor Betrügern schützt.
Anzeige melden Beachte unsere Sicherheitshinweise zum Thema Immobilienbetrug und lies, woran du solche Anzeigen erkennen kannst und wie du dich vor Betrügern schützt.
*Anzeige

Ähnliche Häuser bei ImmoScout24
Hambühren
- Kaufpreis
- 825.000 €
- Zimmer
- 10 Zi.
- Fläche
- 310 Zi.
Anbieter
Weitere Ergebnisse für:
Wohnungen
Hambühren;
Immobilien
Hambühren;
Haus mieten
Hambühren;
WG Zimmer
Hambühren;
Wohnung
Hambühren kaufen;
Haus kaufen
Hambühren;
Immobilienpreise
Hambühren Mietspiegel
Hambühren wohnungsboerse.net übernimmt keine Gewähr für von Dritten gemachte Angaben