
Etagenwohnung in Pfaffenhofen an der Ilm
Pfaffenhofen! Neubau! 3-ZKB OG-Whg. mit 8,31 m² Süd-/West-Balkon, FBH, elektr. Rollläden, Videospr.!
auf der Karte ansehenUmzugskosten berechnen
- Kaufpreis
- 429.000 €
- Zimmer
- 3
- Fläche
- 72.55 m²
17 Aufrufe
Objekt-ID: 38497640
Objekttyp: | Etagenwohnung |
Zimmer: | 3 |
Größe: | 72.55 m² |
Etage: | 2 von 3 |
Verfügbar ab: | Frühjahr 2026 |
Preise & Kosten
Kaufpreis: | 429.000 € |
Jetzt kostenlos Finanzierungsangebot anfragen! |
Provision: | Nein |
Preis/m²: | 5.913,16 € |
Mit Immobilienpreisen Pfaffenhofen an der Ilm vergleichen |
Immobilie
Balkon
Keller
Neubau
Baujahr: | 2025 |
Befeuerungsart: | Holz / Kohle |
Energieausweis: | Energieausweis in Vorbereitung |
Objektbeschreibung
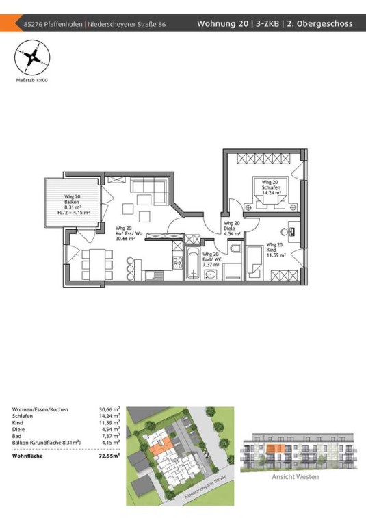
Bei der angebotenen Wohnung handelt es sich um eine 3-Zimmer Wohnung im 2. Obergeschoss mit einem Balkon nach Süden und Westen ausgerichtet, mit ca. 8,31 m² Grundfläche.
Die Bauausführung erfolgt in massiver Ziegelbauweise mit Wärmedämmverbundsystem, sowie 3fach verglasten Fenstern.
Beheizt wird die Wohnanlage über einen Fernwärmeanschluss.
Der Baubeginn ist für Anfang 2024 vorgesehen, die Fertigstellung wird ca. im Frühjahr 2026 erfolgen.
Auf dem Grundstück entsteht ein Mehrfamilienhaus mit Tiefgarage und Aufzug, mit insgesamt 24 Wohneinheiten.
Auf Wunsch erhalten Sie gerne das Gesamtexposé inkl. Baubeschreibung und Preisliste.
Energieausweis:
Der Energieausweis wird gerade erstellt und liegt zur Besichtigung vor.
Die Bauausführung erfolgt in massiver Ziegelbauweise mit Wärmedämmverbundsystem, sowie 3fach verglasten Fenstern.
Beheizt wird die Wohnanlage über einen Fernwärmeanschluss.
Der Baubeginn ist für Anfang 2024 vorgesehen, die Fertigstellung wird ca. im Frühjahr 2026 erfolgen.
Auf dem Grundstück entsteht ein Mehrfamilienhaus mit Tiefgarage und Aufzug, mit insgesamt 24 Wohneinheiten.
Auf Wunsch erhalten Sie gerne das Gesamtexposé inkl. Baubeschreibung und Preisliste.
Energieausweis:
Der Energieausweis wird gerade erstellt und liegt zur Besichtigung vor.
Lage
Niederscheyerer Straße85276 Pfaffenhofen an der Ilm
Pfaffenhofen an der Ilm
Der aktuelle durchschnittliche Quadratmeterpreis beträgt 5.161,69 €/m² in Pfaffenhofen an der Ilm.
Mit Immobilienpreisen
Pfaffenhofen-an-der-Ilm vergleichen
Was kostet dein Umzug?
Du planst einen Umzug? Finde jetzt die günstigste Umzugsfirma in deiner Region!
Umzugskosten berechnen Schütze dich vor Betrug!
Leiste keinerlei Zahlung im Vorraus!
Beachte unsere Sicherheitshinweise zum Thema Immobilienbetrug und lies, woran du solche Anzeigen erkennen kannst und wie du dich vor Betrügern schützt.
Anzeige melden Beachte unsere Sicherheitshinweise zum Thema Immobilienbetrug und lies, woran du solche Anzeigen erkennen kannst und wie du dich vor Betrügern schützt.
*Anzeige

Ähnliche Immobilien bei ImmoScout24
Pfaffenhofen an der Ilm
- Kaufpreis
- 380.000 €
- Zimmer
- 3 Zi.
- Fläche
- 65 Zi.
Anbieter
Weitere Ergebnisse für:
Wohnungen
Pfaffenhofen an der Ilm;
Immobilien
Pfaffenhofen an der Ilm;
Haus mieten
Pfaffenhofen an der Ilm;
WG Zimmer
Pfaffenhofen an der Ilm;
Wohnung
Pfaffenhofen an der Ilm kaufen;
Haus kaufen
Pfaffenhofen an der Ilm;
Immobilienpreise
Pfaffenhofen an der Ilm Mietspiegel
Pfaffenhofen an der Ilm wohnungsboerse.net übernimmt keine Gewähr für von Dritten gemachte Angaben