
Dachgeschosswohnung in Dettingen unter Teck
Neubau Dachgeschoss Wohnung mit 3 Zimmern und Südbalkon in Dettingen u. Teck
auf der Karte ansehenUmzugskosten berechnen
- Kaufpreis
- 426.000 €
- Zimmer
- 3
- Fläche
- 69 m²
13 Aufrufe
Objekt-ID: 38449177
Objekttyp: | Dachgeschosswohnung |
Zimmer: | 3 |
Größe: | 69.00 m² |
Verfügbar ab: | keine Angabe |
Preise & Kosten
Kaufpreis: | 426.000 € |
Jetzt kostenlos Finanzierungsangebot anfragen! |
Provision: | Nein |
Preis/m²: | 6.173,91 € |
Mit Immobilienpreisen Dettingen unter Teck vergleichen |
Immobilie
Balkon
Aufzug
Keller
Neubau
Behindertengerecht
Befeuerungsart: | Strom |
Objektbeschreibung
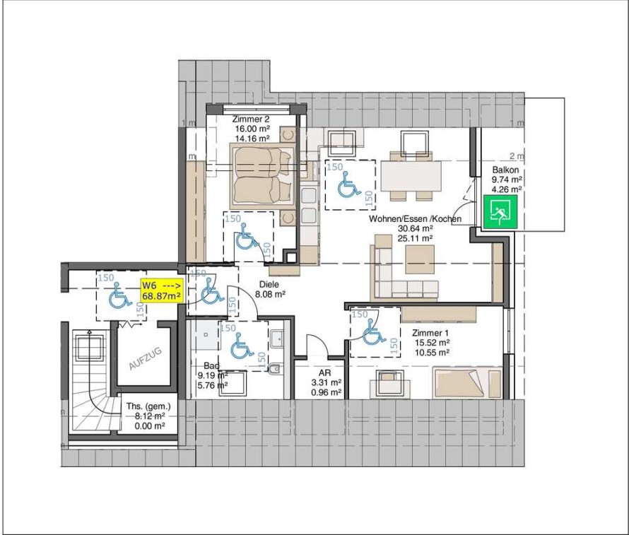
Diese projektierte Neubau-Dachgeschoss-Wohnung mit ca. 69 m² Wohnfläche und Südbalkon befindet sich ruhiger Lage in Dettingen unter Teck.
Ein besonderes Highlight ist der traumhafte Ausblick auf die Burg Teck.
Die Wohnung ist barrierefrei zugänglich und verfügt über einen großzügigen Wohn/Ess- und Kochbereich, Badezimmer, ein Abstellraum, optional auch als Gäste-WC möglich und zwei Schlafräume.
Die Wohnung ist ideal für Paare oder kleine Familien, die Wert auf modernen Wohnraum und eine gute Anbindung legen.
Ein besonderes Highlight ist der traumhafte Ausblick auf die Burg Teck.
Die Wohnung ist barrierefrei zugänglich und verfügt über einen großzügigen Wohn/Ess- und Kochbereich, Badezimmer, ein Abstellraum, optional auch als Gäste-WC möglich und zwei Schlafräume.
Die Wohnung ist ideal für Paare oder kleine Familien, die Wert auf modernen Wohnraum und eine gute Anbindung legen.
Lage
73265 Dettingen unter TeckDettingen unter Teck
Der aktuelle durchschnittliche Quadratmeterpreis beträgt 4.388,27 €/m² in Dettingen unter Teck.
Mit Immobilienpreisen
Dettingen-unter-Teck vergleichen
Was kostet dein Umzug?
Du planst einen Umzug? Finde jetzt die günstigste Umzugsfirma in deiner Region!
Umzugskosten berechnen Schütze dich vor Betrug!
Leiste keinerlei Zahlung im Vorraus!
Beachte unsere Sicherheitshinweise zum Thema Immobilienbetrug und lies, woran du solche Anzeigen erkennen kannst und wie du dich vor Betrügern schützt.
Anzeige melden Beachte unsere Sicherheitshinweise zum Thema Immobilienbetrug und lies, woran du solche Anzeigen erkennen kannst und wie du dich vor Betrügern schützt.
*Anzeige

Ähnliche Immobilien bei ImmoScout24
Dettingen unter Teck
- Kaufpreis
- 380.000 €
- Zimmer
- 3 Zi.
- Fläche
- 60 Zi.
Anbieter
Weitere Ergebnisse für:
Wohnungen
Dettingen unter Teck;
Immobilien
Dettingen unter Teck;
Haus mieten
Dettingen unter Teck;
WG Zimmer
Dettingen unter Teck;
Wohnung
Dettingen unter Teck kaufen;
Haus kaufen
Dettingen unter Teck;
Immobilienpreise
Dettingen unter Teck Mietspiegel
Dettingen unter Teck wohnungsboerse.net übernimmt keine Gewähr für von Dritten gemachte Angaben