Einfamilienhaus zum kaufen in Reichling
TRAUMLAGE: Neubau eines modernen Holzhauses Einfamilienhaus mit Grundstück im idyllischen Süden von Landsberg am Lech!
auf der Karte ansehenUmzugskosten berechnen
- Kaufpreis
- 669.000 €
- Zimmer
- 5
- Fläche
- 130 m²
157 Aufrufe
Objekt-ID: 38439332
| Objekttyp: | Einfamilienhaus |
| Zimmer: | 5 |
| Größe: | 130.00 m² |
| Grundstücksfläche: | 400,00 m² |
| Verfügbar ab: | 01.12.2026 |
Preise & Kosten
| Kaufpreis: | 669.000 € |
| Jetzt kostenlos Finanzierungsangebot anfragen! | |
| Provision: | 9.520€ inkl. MwSt. |
| Preis/m²: | 5.146,15 € |
| Mit Immobilienpreisen Reichling vergleichen | |
Immobilie
Garten
Neubau
| Baujahr: | 2026 |
| Objektzustand: | Erstbezug |
| Befeuerungsart: | Wärmepumpe |
| Energieausweis: | Energieausweis in Vorbereitung |
Objektbeschreibung
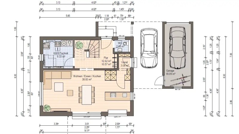
Das Holzsystemhaus STYYLE mit 130m2 Wohnfläche überzeugt neben seinen Highlights durch zwei gleich große Kinderzimmer, ein geräumiges Elternschlafzimmer mit Ankleide sowie einem praktischen Technikraum im Erdgeschoss. Die Architektur wird im Innen durch eine L-förmige Treppe ergänzt, die sich nahtlos in das intelligente Innenraumkonzept einfügt.
Nettoraumfläche EG
66,00 ㎡
Nettoraumfläche OG
64,00 ㎡
DIE HIGHLIGHTS:
• Offene Wohnfläche mit Sitz-Liegefenster für lichtdurchflutete Räume
• Intelligente Steuerung von Aluminium-Rollläden und Beleuchtung über das Somfy Smart-Home-System
• KfW 40 Förderfähigkeit, Luft-Wasser-Wärmepumpe und Photovoltaikanlage für Energieeffizienz.
• Dreifach verglaste Fenster und Lüftungssystem mit Wärmerückgewinnung
• Massive Bauweise, Fußbodenheizung, Fliesen z.B. von Villeroy & Boch, Handtuchheizkörper uvm.
Das kompakte Einfamilienhaus STYYLE kombiniert intelligente Raumökonomie mit dem Komfort eines vollständigen Familienheims auf kleiner Grundfläche.
Dieses Angebot enthält:
- schlüsselfertiges Haus inkl. Maler- und Bodenarbeiten
- Architektenleistung mit allen Plänen
- Bodenplatte und Verputzarbeiten
- Grundstück inkl. Baugenehmigung
DIE LAGE
Schöne Lage in Reichling unweit des Wurzberges mit Bergpanorama- und Lechblick!
Gerne erläutern wir Details zum Neubauhaus, Grundstück und der schönen Umgebung. Schreiben Sie uns dazu unverbindlich eine E-Mail!
Nettoraumfläche EG
66,00 ㎡
Nettoraumfläche OG
64,00 ㎡
DIE HIGHLIGHTS:
• Offene Wohnfläche mit Sitz-Liegefenster für lichtdurchflutete Räume
• Intelligente Steuerung von Aluminium-Rollläden und Beleuchtung über das Somfy Smart-Home-System
• KfW 40 Förderfähigkeit, Luft-Wasser-Wärmepumpe und Photovoltaikanlage für Energieeffizienz.
• Dreifach verglaste Fenster und Lüftungssystem mit Wärmerückgewinnung
• Massive Bauweise, Fußbodenheizung, Fliesen z.B. von Villeroy & Boch, Handtuchheizkörper uvm.
Das kompakte Einfamilienhaus STYYLE kombiniert intelligente Raumökonomie mit dem Komfort eines vollständigen Familienheims auf kleiner Grundfläche.
Dieses Angebot enthält:
- schlüsselfertiges Haus inkl. Maler- und Bodenarbeiten
- Architektenleistung mit allen Plänen
- Bodenplatte und Verputzarbeiten
- Grundstück inkl. Baugenehmigung
DIE LAGE
Schöne Lage in Reichling unweit des Wurzberges mit Bergpanorama- und Lechblick!
Gerne erläutern wir Details zum Neubauhaus, Grundstück und der schönen Umgebung. Schreiben Sie uns dazu unverbindlich eine E-Mail!
Lage
St.-Nikolaus-Straße86934 Reichling
Reichling
Der aktuelle durchschnittliche Quadratmeterpreis beträgt 4.529,76 €/m² in Reichling.
Mit Immobilienpreisen
Reichling vergleichen
Was kostet dein Umzug?
Du planst einen Umzug? Finde jetzt die günstigste Umzugsfirma in deiner Region!
Umzugskosten berechnen Schütze dich vor Betrug!
Leiste keinerlei Zahlung im Vorraus!
Beachte unsere Sicherheitshinweise zum Thema Immobilienbetrug und lies, woran du solche Anzeigen erkennen kannst und wie du dich vor Betrügern schützt.
Anzeige melden Beachte unsere Sicherheitshinweise zum Thema Immobilienbetrug und lies, woran du solche Anzeigen erkennen kannst und wie du dich vor Betrügern schützt.
*Anzeige
Ähnliche Häuser bei ImmoScout24
Reichling
- Kaufpreis
- 620.000 €
- Zimmer
- 5 Zi.
- Fläche
- 120 Zi.
Anbieter
privater AnbieterWeitere Ergebnisse für:
Wohnungen
Reichling;
Immobilien
Reichling;
Haus mieten
Reichling;
WG Zimmer
Reichling;
Wohnung
Reichling kaufen;
Haus kaufen
Reichling;
Immobilienpreise
Reichling Mietspiegel
Reichling wohnungsboerse.net übernimmt keine Gewähr für von Dritten gemachte Angaben




