
Immobilie in Nauheim
Barrierefreie 4 Zimmer Wohnung ca. 94m² Wohnfläche mit Balkon und Kfz-Stellplatz in Nauheim
auf der Karte ansehenUmzugskosten berechnen
- Kaufpreis
- 229.000 €
- Zimmer
- 4
- Fläche
- 94.2 m²
23 Aufrufe
Objekt-ID: 38313117
| Objekttyp: | Keine Angabe |
| Zimmer: | 4 |
| Größe: | 94.20 m² |
| Verfügbar ab: | 01.01.2026 |
Preise & Kosten
| Kaufpreis: | 229.000 € |
| Jetzt kostenlos Finanzierungsangebot anfragen! | |
| Provision: | Ja |
| Preis/m²: | 2.431,00 € |
| Mit Immobilienpreisen Nauheim vergleichen | |
Immobilie
Balkon
Aufzug
Stellplatz
Keller
Behindertengerecht
| Baujahr: | 1971 |
| Befeuerungsart: | Strom |
| Energieausweis: | Bedarfsausweis |
| Endenergiebedarf: | 99,00 kWh/(m²*a) |
| Energieeffizienzklasse: | C |
Objektbeschreibung
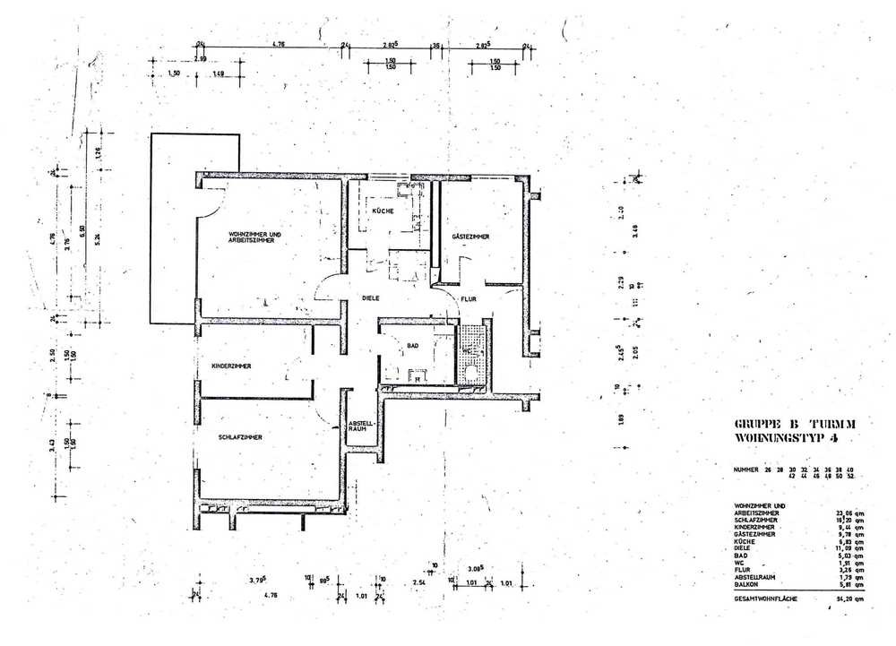
Diese großzügige Erdgeschosswohnung aus dem Baujahr 1971 befindet sich in einer gepflegten Wohnanlage mit insgesamt 11 Etagen. Die Wohnung bietet auf einer Wohnfläche von 94,2 m² vier gut geschnittene Zimmer, darunter zwei Schlafzimmer. Ein Abstellraum sorgt für zusätzlichen Stauraum. Das Badezimmer ist mit einer Badewanne und einer Dusche ausgestattet. Eine Loggia ergänzt den Wohnkomfort.
Die Wohnung ist rollstuhlgerecht und barrierefrei gestaltet, ein Personenaufzug erleichtert den Zugang zum Kellerbereich. Als Bodenbeläge sind Laminat und Fliesen vorhanden. Die Beheizung erfolgt über eine Fernheizung mit Strom als Energieträger, die Energieeffizienzklasse liegt bei C.
Der Zustand der Wohnung ist renovierungsbedürftig, die letzte Modernisierung erfolgte im Jahr 2000. Der Neubau-Charakter des Gebäudes bietet eine solide Basis für individuelle Gestaltungsmöglichkeiten. Zur Wohnung gehört außerdem ein Außenstellplatz, der für 5.000 Euro zusätzlich erworben werden kann.
Die Immobilie verfügt über Kabel-TV-Anschluss und ist ab dem 01.01.2026 bezugsbereit. Mit ihrer praktischen Raumaufteilung und der zentralen, gut erreichbaren Lage könnte sie eine gute Möglichkeit für Eigennutzer oder Kapitalanleger sein. Ein Kellerraum bietet weiteren Platz für Aufbewahrung. Die Gesamtwohnfläche wird durch eine Nutzfläche von 1,8 m² ergänzt.
Die Wohnung ist rollstuhlgerecht und barrierefrei gestaltet, ein Personenaufzug erleichtert den Zugang zum Kellerbereich. Als Bodenbeläge sind Laminat und Fliesen vorhanden. Die Beheizung erfolgt über eine Fernheizung mit Strom als Energieträger, die Energieeffizienzklasse liegt bei C.
Der Zustand der Wohnung ist renovierungsbedürftig, die letzte Modernisierung erfolgte im Jahr 2000. Der Neubau-Charakter des Gebäudes bietet eine solide Basis für individuelle Gestaltungsmöglichkeiten. Zur Wohnung gehört außerdem ein Außenstellplatz, der für 5.000 Euro zusätzlich erworben werden kann.
Die Immobilie verfügt über Kabel-TV-Anschluss und ist ab dem 01.01.2026 bezugsbereit. Mit ihrer praktischen Raumaufteilung und der zentralen, gut erreichbaren Lage könnte sie eine gute Möglichkeit für Eigennutzer oder Kapitalanleger sein. Ein Kellerraum bietet weiteren Platz für Aufbewahrung. Die Gesamtwohnfläche wird durch eine Nutzfläche von 1,8 m² ergänzt.
Lage
64569 NauheimNauheim
Der aktuelle durchschnittliche Quadratmeterpreis beträgt 3.209,91 €/m² in Nauheim.
Mit Immobilienpreisen
Nauheim vergleichen
Was kostet dein Umzug?
Du planst einen Umzug? Finde jetzt die günstigste Umzugsfirma in deiner Region!
Umzugskosten berechnen Schütze dich vor Betrug!
Leiste keinerlei Zahlung im Vorraus!
Beachte unsere Sicherheitshinweise zum Thema Immobilienbetrug und lies, woran du solche Anzeigen erkennen kannst und wie du dich vor Betrügern schützt.
Anzeige melden Beachte unsere Sicherheitshinweise zum Thema Immobilienbetrug und lies, woran du solche Anzeigen erkennen kannst und wie du dich vor Betrügern schützt.
*Anzeige
Ähnliche Immobilien bei ImmoScout24
Nauheim
- Kaufpreis
- 180.000 €
- Zimmer
- 4 Zi.
- Fläche
- 85 Zi.
Anbieter
Weitere Ergebnisse für:
Wohnungen
Nauheim;
Immobilien
Nauheim;
Haus mieten
Nauheim;
WG Zimmer
Nauheim;
Wohnung
Nauheim kaufen;
Haus kaufen
Nauheim;
Immobilienpreise
Nauheim Mietspiegel
Nauheim wohnungsboerse.net übernimmt keine Gewähr für von Dritten gemachte Angaben