
Erdgeschosswohnung in Bubsheim
Schöne 4,5 Zimmer Wohnung mit Terrasse in Bubsheim - 1
auf der Karte ansehenUmzugskosten berechnen
- Kaufpreis
- 428.500 €
- Zimmer
- 4.5
- Fläche
- 108.94 m²
23 Aufrufe
Objekt-ID: 38278666
Objekttyp: | Erdgeschosswohnung |
Zimmer: | 4.5 |
Größe: | 108.94 m² |
Etage: | 1 von 3 |
Verfügbar ab: | 28.2.2026 |
Preise & Kosten
Kaufpreis: | 428.500 € |
Jetzt kostenlos Finanzierungsangebot anfragen! |
Provision: | Nein |
Preis/m²: | 3.933,36 € |
Mit Immobilienpreisen Bubsheim vergleichen |
Immobilie
Balkon
Terrasse
Garten
Aufzug
Keller
Behindertengerecht
Baujahr: | 2025 |
Befeuerungsart: | Strom |
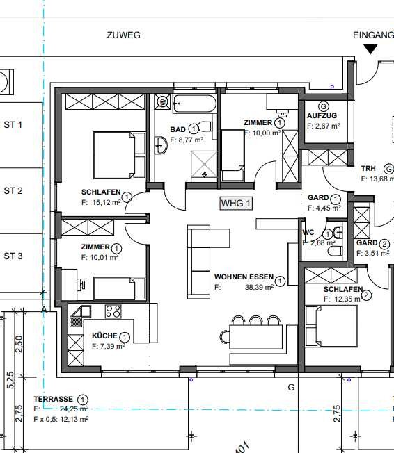
Objektbeschreibung
Die Wohnfläche verteilt sich auf ein offenes Wohn- und Esszimmer mit
Küche, ein Schlafraum, zwei Arbeits-/Kinderzimmer, eine Gästetoilette, ein Tageslichtbad mit bodenebener Dusche und Badewanne und einen Abstellraum.
Ein Highlight dieser Wohnung ist eine 24 m² große Terrasse mit Süd-West-Ausrichtung. Zudem verfügt die Wohnung über einen Gartenanteil.
Küche, ein Schlafraum, zwei Arbeits-/Kinderzimmer, eine Gästetoilette, ein Tageslichtbad mit bodenebener Dusche und Badewanne und einen Abstellraum.
Ein Highlight dieser Wohnung ist eine 24 m² große Terrasse mit Süd-West-Ausrichtung. Zudem verfügt die Wohnung über einen Gartenanteil.
Lage
Buchenweg78585 Bubsheim
Bubsheim
Der aktuelle durchschnittliche Quadratmeterpreis beträgt 3.620,16 €/m² in Bubsheim.
Mit Immobilienpreisen
Bubsheim vergleichen
Was kostet dein Umzug?
Du planst einen Umzug? Finde jetzt die günstigste Umzugsfirma in deiner Region!
Umzugskosten berechnen Schütze dich vor Betrug!
Leiste keinerlei Zahlung im Vorraus!
Beachte unsere Sicherheitshinweise zum Thema Immobilienbetrug und lies, woran du solche Anzeigen erkennen kannst und wie du dich vor Betrügern schützt.
Anzeige melden Beachte unsere Sicherheitshinweise zum Thema Immobilienbetrug und lies, woran du solche Anzeigen erkennen kannst und wie du dich vor Betrügern schützt.
*Anzeige

Ähnliche Immobilien bei ImmoScout24
Bubsheim
- Kaufpreis
- 380.000 €
- Zimmer
- 4.5 Zi.
- Fläche
- 100 Zi.
Anbieter
Weitere Ergebnisse für:
Wohnungen
Bubsheim;
Immobilien
Bubsheim;
Haus mieten
Bubsheim;
WG Zimmer
Bubsheim;
Wohnung
Bubsheim kaufen;
Haus kaufen
Bubsheim;
Immobilienpreise
Bubsheim Mietspiegel
Bubsheim wohnungsboerse.net übernimmt keine Gewähr für von Dritten gemachte Angaben