
Etagenwohnung in Berlin-Altglienicke
Von Privat, gepflegte 3-Zimmer-Wohnung mit Balkon und schöner EBK in Bln.Altglienicke provisionsfrei
auf der Karte ansehenUmzugskosten berechnen
- Kaufpreis
- 309.000 €
- Zimmer
- 3
- Fläche
- 75 m²
18 Aufrufe
Objekt-ID: 38247952
Objekttyp: | Etagenwohnung |
Zimmer: | 3 |
Größe: | 75.00 m² |
Verfügbar ab: | 1.9.2025 |
Preise & Kosten
Kaufpreis: | 309.000 € |
Jetzt kostenlos Finanzierungsangebot anfragen! |
Provision: | Nein |
Preis/m²: | 4.120,00 € |
Mit Immobilienpreisen Berlin vergleichen |
Immobilie
Balkon
Einbauküche
Keller
Baujahr: | 1992 |
Befeuerungsart: | Gas |
Energieausweis: | Bedarfsausweis |
Endenergiebedarf: | 145,80 kWh/(m²*a) |
Energieeffizienzklasse: | E |
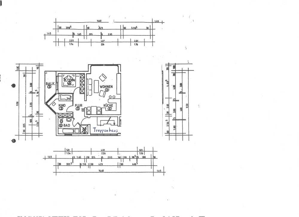
Objektbeschreibung
Diese attraktive, gepflegte Wohnung kann ab dem 1.9.2025 erworben werden. Zu dem Objekt zählen drei attraktive Zimmer. Das Apartment befindet sich in einem 1992 erbauten Haus und wird per Gasheizung beheizt. Der Energieausweis der Immobilie ist aktuell und liegt vor. Besonders hervorzuheben ist der Balkon, auf dem es sich wunderbar vom Alltag erholen lässt. In der Innenausstattung mit inbegriffen ist eine Einbauküche. Zur Wohnung gehören außerdem noch ein Keller mit praktischem Stauraum und ein Auto-Stellplatz. Dadurch gehört langes Parkplatzsuchen der Geschichte an.
Lage
12524 BerlinBerlin Altglienicke
Der aktuelle durchschnittliche Quadratmeterpreis beträgt 4.583,81 €/m² in Berlin - Altglienicke. Der durchschnittliche Immobilienpreis in Berlin liegt derzeit bei 5.900,22 €/m².
Mit Immobilienpreisen
Berlin vergleichen
Was kostet dein Umzug?
Du planst einen Umzug? Finde jetzt die günstigste Umzugsfirma in deiner Region!
Umzugskosten berechnen Schütze dich vor Betrug!
Leiste keinerlei Zahlung im Vorraus!
Beachte unsere Sicherheitshinweise zum Thema Immobilienbetrug und lies, woran du solche Anzeigen erkennen kannst und wie du dich vor Betrügern schützt.
Anzeige melden Beachte unsere Sicherheitshinweise zum Thema Immobilienbetrug und lies, woran du solche Anzeigen erkennen kannst und wie du dich vor Betrügern schützt.
*Anzeige

Ähnliche Immobilien bei ImmoScout24
Berlin-Altglienicke
- Kaufpreis
- 260.000 €
- Zimmer
- 3 Zi.
- Fläche
- 65 Zi.
Weitere Ergebnisse für:
Wohnungen
Berlin;
Immobilien
Berlin;
Haus mieten
Berlin;
WG Zimmer
Berlin;
Wohnung
Berlin kaufen;
Haus kaufen
Berlin;
Immobilienpreise
Berlin Mietspiegel
Berlin wohnungsboerse.net übernimmt keine Gewähr für von Dritten gemachte Angaben