Bungalow zum kaufen in Werneuchen
Kleinhaus in naturnaher Lage
auf der Karte ansehenUmzugskosten berechnen
- Kaufpreis
- 160.000 €
- Zimmer
- 3
- Fläche
- 85 m²
592 Aufrufe
Objekt-ID: 38223603
| Objekttyp: | Bungalow |
| Zimmer: | 3 |
| Größe: | 85.00 m² |
| Grundstücksfläche: | 950,00 m² |
| Etage: | 1 |
| Verfügbar ab: | ab sofort |
Preise & Kosten
| Kaufpreis: | 160.000 € |
| Jetzt kostenlos Finanzierungsangebot anfragen! | |
| Provision: | 3,57% |
| Preis/m²: | 1.882,35 € |
| Mit Immobilienpreisen Werneuchen vergleichen | |
Immobilie
Terrasse
Garten
Wintergarten
Altbau
Tiere erlaubt
| Baujahr: | 2003 |
| Objektzustand: | teilweise renoviert |
| Befeuerungsart: | Gas |
| Energieausweis: | Bedarfsausweis |
| Energieverbrauchskennwert: | 115,00 kWh/(m²*a) |
| Energieverbrauch für Warmwasser enthalten? | Nein |
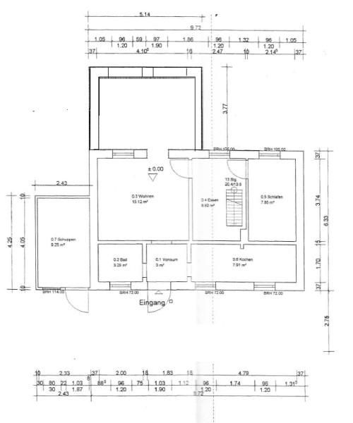
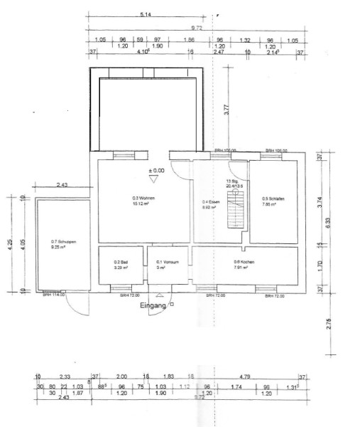
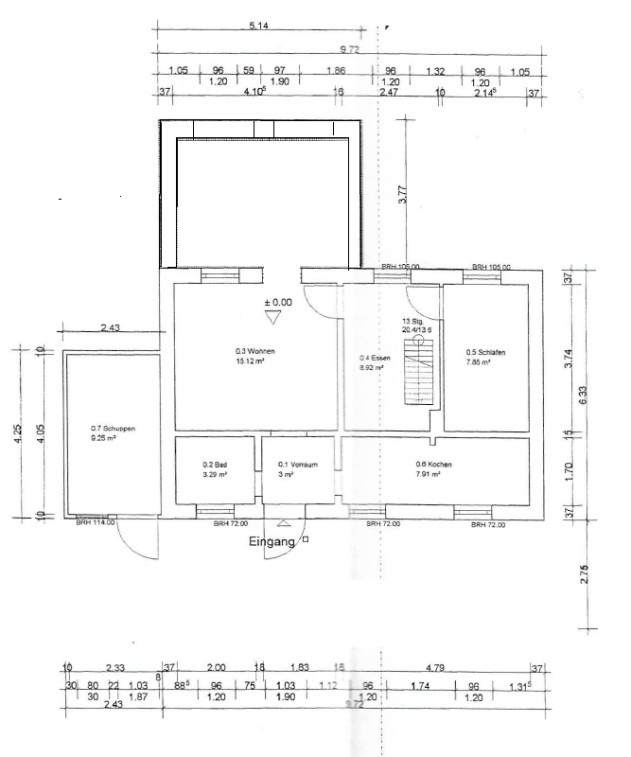
Objektbeschreibung
Das Kleinhaus befindet sich auf einem sehr naturbelassenen Grundstück in Siedlungsrandlage. Die Wohnfläche teilt sich auf in zwei Zimmer, Küche, Bad, Hauswirtschaftsraum und einen relativ großen beheizbaren Wintergarten.
Bis zum Jahre 2007 wurde dieses Gebäude in Mischbauweise mit einem Wärmeverbundsystem verkleidet inklusive neue Fenster und Dach.
Neben der Erdgasheizung mit Wandheizkörper ist auch ein Kamin für Festbrennstoffe vorhanden.
Das Grundstück ist erschlossen mit elektrischem Strom, kommunaler Trinkwasserleitung und Erdgas. In der unbefestigten Straße liegt Internet/Breitbandversorgung. Das Abwasser wird hier ortsüblich über eine Grube entsorgt.
Bis zum Jahre 2007 wurde dieses Gebäude in Mischbauweise mit einem Wärmeverbundsystem verkleidet inklusive neue Fenster und Dach.
Neben der Erdgasheizung mit Wandheizkörper ist auch ein Kamin für Festbrennstoffe vorhanden.
Das Grundstück ist erschlossen mit elektrischem Strom, kommunaler Trinkwasserleitung und Erdgas. In der unbefestigten Straße liegt Internet/Breitbandversorgung. Das Abwasser wird hier ortsüblich über eine Grube entsorgt.
Lage
Ahornweg16356 Werneuchen
Werneuchen
Der aktuelle durchschnittliche Quadratmeterpreis beträgt 4.481,78 €/m² in Werneuchen.
Mit Immobilienpreisen
Werneuchen vergleichen
Was kostet dein Umzug?
Du planst einen Umzug? Finde jetzt die günstigste Umzugsfirma in deiner Region!
Umzugskosten berechnen Schütze dich vor Betrug!
Leiste keinerlei Zahlung im Vorraus!
Beachte unsere Sicherheitshinweise zum Thema Immobilienbetrug und lies, woran du solche Anzeigen erkennen kannst und wie du dich vor Betrügern schützt.
Anzeige melden Beachte unsere Sicherheitshinweise zum Thema Immobilienbetrug und lies, woran du solche Anzeigen erkennen kannst und wie du dich vor Betrügern schützt.
*Anzeige
Ähnliche Häuser bei ImmoScout24
Werneuchen
- Kaufpreis
- 110.000 €
- Zimmer
- 3 Zi.
- Fläche
- 75 Zi.
Anbieter
privater Anbieterimmobilienlutz
Weitere Ergebnisse für:
Wohnungen
Werneuchen;
Immobilien
Werneuchen;
Haus mieten
Werneuchen;
WG Zimmer
Werneuchen;
Wohnung
Werneuchen kaufen;
Haus kaufen
Werneuchen;
Immobilienpreise
Werneuchen Mietspiegel
Werneuchen wohnungsboerse.net übernimmt keine Gewähr für von Dritten gemachte Angaben






