
Erdgeschosswohnung in Burgau
3 ZKB Neubau in ruhiger Lage, KFW 55 deg. Afa
auf der Karte ansehenUmzugskosten berechnen
- Kaufpreis
- 482.300 €
- Zimmer
- 3
- Fläche
- 91 m²
40 Aufrufe
Objekt-ID: 38145352
Objekttyp: | Erdgeschosswohnung |
Zimmer: | 3 |
Größe: | 91.00 m² |
Verfügbar ab: | nach Absprache |
Preise & Kosten
Kaufpreis: | 482.300 € |
Jetzt kostenlos Finanzierungsangebot anfragen! |
Provision: | Nein |
Preis/m²: | 5.300,00 € |
Mit Immobilienpreisen Burgau vergleichen |
Immobilie
Balkon
Garten
Neubau
Baujahr: | 2026 |
Befeuerungsart: | Zentralheizung |
Energieausweis: | Energieausweis in Vorbereitung |
Objektbeschreibung
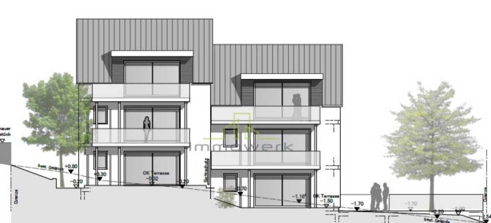
Wir präsentieren Ihnen heute einen hochwertigen Neubau in KFW 55 Standard in einer ruhigen und dennoch zentralen Lage in Burgau.
Bei der hier angebotenen Wohnung E1 handelt es sich um eine 3-Zimmer-Neubauwohnung mit einem offenen und durchdachten Raumkonzept.
Als eine der sechs Parteien liegt diese Wohnung im Erdgeschoss des Mehrfamilienhauses mit Süd/Ost-Ausrichtung.
Das Gebäude wird in Massivbauweise nach den modernsten energetischen Standards errichtet, die Fußbodenheizung wird durch eine nachhaltige Luft-/Wärmepumpe betrieben. Alle Wohneinheiten sind mit einem effizienten Lüftungssystem mit Wärmerückgewinnung ausgestattet. Die gehobene Ausstattung wird durch Echtholzparkett sowie hochwertige Holz-/Alufenster abgerundet.
Ein barrierefreier Zugang ist über den Personenaufzug möglich.
Die voraussichtliche Fertigstellung erfolgt Q1/2027.
Bei der hier angebotenen Wohnung E1 handelt es sich um eine 3-Zimmer-Neubauwohnung mit einem offenen und durchdachten Raumkonzept.
Als eine der sechs Parteien liegt diese Wohnung im Erdgeschoss des Mehrfamilienhauses mit Süd/Ost-Ausrichtung.
Das Gebäude wird in Massivbauweise nach den modernsten energetischen Standards errichtet, die Fußbodenheizung wird durch eine nachhaltige Luft-/Wärmepumpe betrieben. Alle Wohneinheiten sind mit einem effizienten Lüftungssystem mit Wärmerückgewinnung ausgestattet. Die gehobene Ausstattung wird durch Echtholzparkett sowie hochwertige Holz-/Alufenster abgerundet.
Ein barrierefreier Zugang ist über den Personenaufzug möglich.
Die voraussichtliche Fertigstellung erfolgt Q1/2027.
Lage
Eschenweg89331 Burgau
Burgau
Der aktuelle durchschnittliche Quadratmeterpreis beträgt 3.673,27 €/m² in Burgau.
Mit Immobilienpreisen
Burgau vergleichen
Was kostet dein Umzug?
Du planst einen Umzug? Finde jetzt die günstigste Umzugsfirma in deiner Region!
Umzugskosten berechnen Schütze dich vor Betrug!
Leiste keinerlei Zahlung im Vorraus!
Beachte unsere Sicherheitshinweise zum Thema Immobilienbetrug und lies, woran du solche Anzeigen erkennen kannst und wie du dich vor Betrügern schützt.
Anzeige melden Beachte unsere Sicherheitshinweise zum Thema Immobilienbetrug und lies, woran du solche Anzeigen erkennen kannst und wie du dich vor Betrügern schützt.
*Anzeige

Ähnliche Immobilien bei ImmoScout24
Burgau
- Kaufpreis
- 435.000 €
- Zimmer
- 3 Zi.
- Fläche
- 85 Zi.
Anbieter
Weitere Ergebnisse für:
Wohnungen
Burgau;
Immobilien
Burgau;
Haus mieten
Burgau;
WG Zimmer
Burgau;
Wohnung
Burgau kaufen;
Haus kaufen
Burgau;
Immobilienpreise
Burgau Mietspiegel
Burgau wohnungsboerse.net übernimmt keine Gewähr für von Dritten gemachte Angaben