
Dachgeschosswohnung in Mietingen
Nachhaltiges Wohnen in 88487 Mietingen, Färberbrühl
auf der Karte ansehenUmzugskosten berechnen
- Kaufpreis
- 460.000 €
- Zimmer
- 3.5
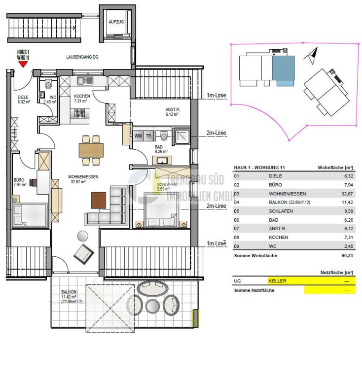
- Fläche
- 90.23 m²
38 Aufrufe
Objekt-ID: 38126568
| Objekttyp: | Dachgeschosswohnung |
| Zimmer: | 3.5 |
| Größe: | 90.23 m² |
| Verfügbar ab: | keine Angabe |
Preise & Kosten
| Kaufpreis: | 460.000 € |
| Jetzt kostenlos Finanzierungsangebot anfragen! | |
| Provision: | Nein |
| Preis/m²: | 5.098,08 € |
| Mit Immobilienpreisen Mietingen vergleichen | |
Immobilie
Balkon
Aufzug
Keller
Behindertengerecht
Objektbeschreibung
Willkommen in Ihrem neuen Zuhause in Mietingen! Es entstehen zwei moderne Mehrfamilienhäuser mit insgesamt 19 hochwertigen Wohnungen, die durch eine gemeinschaftliche Tiefgaragenanlage miteinander verbunden sind. Die Gebäude sind barrierefrei vom Untergeschoss bis ins Dachgeschoss dank eines Aufzugs, der allen Wohnungen zugänglich ist. Jede Wohnung verfügt über einen eigenen Kellerabstellraum im Untergeschoss, der im Kaufpreis enthalten ist. Zusätzlich zum Erwerb stehen jeweils zwei Stellplätze (Tiefgaragenstellplatz 27.000,- € / Außenstellplatz 9.000,- €) pro Wohnung zur Verfügung, um Ihren Komfort zu maximieren.
Lage
88487 MietingenMietingen
Der aktuelle durchschnittliche Quadratmeterpreis beträgt 4.453,71 €/m² in Mietingen.
Mit Immobilienpreisen
Mietingen vergleichen
Was kostet dein Umzug?
Du planst einen Umzug? Finde jetzt die günstigste Umzugsfirma in deiner Region!
Umzugskosten berechnen Schütze dich vor Betrug!
Leiste keinerlei Zahlung im Vorraus!
Beachte unsere Sicherheitshinweise zum Thema Immobilienbetrug und lies, woran du solche Anzeigen erkennen kannst und wie du dich vor Betrügern schützt.
Anzeige melden Beachte unsere Sicherheitshinweise zum Thema Immobilienbetrug und lies, woran du solche Anzeigen erkennen kannst und wie du dich vor Betrügern schützt.
*Anzeige
Ähnliche Immobilien bei ImmoScout24
Mietingen
- Kaufpreis
- 410.000 €
- Zimmer
- 3.5 Zi.
- Fläche
- 85 Zi.
Anbieter
Weitere Ergebnisse für:
Wohnungen
Mietingen;
Immobilien
Mietingen;
Haus mieten
Mietingen;
WG Zimmer
Mietingen;
Wohnung
Mietingen kaufen;
Haus kaufen
Mietingen;
Immobilienpreise
Mietingen Mietspiegel
Mietingen wohnungsboerse.net übernimmt keine Gewähr für von Dritten gemachte Angaben