
Einfamilienhaus zum kaufen in Knittlingen
Ihr individuelles Zuhause: Bien-Zenker EVOLUTION 165 in Knittlingen
auf der Karte ansehenUmzugskosten berechnen
- Kaufpreis
- 624.660 €
- Zimmer
- 7
- Fläche
- 174.78 m²
33 Aufrufe
Objekt-ID: 38093641
| Objekttyp: | Einfamilienhaus |
| Zimmer: | 7 |
| Größe: | 174.78 m² |
| Grundstücksfläche: | 680,00 m² |
| Verfügbar ab: | keine Angabe |
Preise & Kosten
| Kaufpreis: | 624.660 € |
| Jetzt kostenlos Finanzierungsangebot anfragen! | |
| Provision: | Ja |
| Preis/m²: | 3.573,98 € |
| Mit Immobilienpreisen Knittlingen vergleichen | |
Immobilie
| Energieausweis: | Energieausweis in Vorbereitung |
Objektbeschreibung
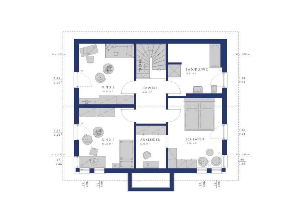
Das Bien-Zenker EVOLUTION 165 ist nicht nur ein Haus, sondern ein Ort, der Ihre Lebensqualität auf ein neues Niveau hebt. Mit einer großzügigen Wohnfläche von 174,78 m² und einer geschickten Aufteilung auf zwei Etagen bietet dieses Fertighaus Raum für Ihre Träume und Ideen. Die sieben Zimmer sind harmonisch miteinander verbunden und schaffen eine Atmosphäre, in der das Familienleben im Erdgeschoss und die Rückzugsmöglichkeiten im Obergeschoss perfekt in Einklang stehen. Hier genießen Sie nicht nur viel Licht, sondern auch die Freiheit, Ihre individuellen Wünsche und Vorstellungen in die Architektur einfließen zu lassen. Ob vier Schlafzimmer für die ganze Familie oder ein Badezimmer, das alle Bedürfnisse abdeckt - dieses Zuhause wird ganz nach Ihren Vorstellungen gestaltet und lässt keine Wünsche offen.
Die komfortablen Details des EVOLUTION 165 machen jeden Tag zu einem besonderen Erlebnis. Im Erdgeschoss finden Sie helle, lichtdurchflutete Räume, die zum Verweilen einladen. Genießen Sie entspannte Stunden auf Ihrer Terrasse oder im Garten des 680 m² großen Grundstücks - der perfekte Ort für gemeinsame Familienmomente oder entspannte Abende mit Freunden. Die offene Gestaltung fördert den Austausch und schafft eine einladende Atmosphäre, während die durchdachte Raumaufteilung Privatsphäre und Rückzugsmöglichkeiten bietet, die besonders für Familien von Bedeutung sind.
Das Angebot beinhaltet die Ausbaustufe "Ausbauhaus", bei der Sie einen wetterfesten Rohbau erhalten, der die perfekte Grundlage für kreative Selbermacher darstellt. Diese Option gibt Ihnen die Freiheit, den Innenausbau nach Ihren eigenen Vorstellungen zu gestalten und somit Baukosten spürbar zu senken. Darüber hinaus wird Ihre Eigenleistung von Banken als Eigenkapital anerkannt, was Ihnen mehr finanziellen Spielraum für Ihr neues Zuhause verschafft. Ideal für alle, die ihren Wohnraum individuell gestalten möchten und Wert auf persönliche Handschrift legen.
Bien-Zenker steht nicht nur für den Bau von Häusern, sondern für die Schaffung von einem Zuhause, in dem Sie sich wohlfühlen. Das Unternehmen blickt auf eine langjährige Erfolgsgeschichte zurück und bietet Ihnen nicht nur Expertise, sondern auch Leidenschaft und Einfühlungsvermögen, um Ihre Wohnträume Wirklichkeit werden zu lassen.
Grundrisse und Abbildungen können Extras zeigen. Flächenangaben nach DIN 277.
Die komfortablen Details des EVOLUTION 165 machen jeden Tag zu einem besonderen Erlebnis. Im Erdgeschoss finden Sie helle, lichtdurchflutete Räume, die zum Verweilen einladen. Genießen Sie entspannte Stunden auf Ihrer Terrasse oder im Garten des 680 m² großen Grundstücks - der perfekte Ort für gemeinsame Familienmomente oder entspannte Abende mit Freunden. Die offene Gestaltung fördert den Austausch und schafft eine einladende Atmosphäre, während die durchdachte Raumaufteilung Privatsphäre und Rückzugsmöglichkeiten bietet, die besonders für Familien von Bedeutung sind.
Das Angebot beinhaltet die Ausbaustufe "Ausbauhaus", bei der Sie einen wetterfesten Rohbau erhalten, der die perfekte Grundlage für kreative Selbermacher darstellt. Diese Option gibt Ihnen die Freiheit, den Innenausbau nach Ihren eigenen Vorstellungen zu gestalten und somit Baukosten spürbar zu senken. Darüber hinaus wird Ihre Eigenleistung von Banken als Eigenkapital anerkannt, was Ihnen mehr finanziellen Spielraum für Ihr neues Zuhause verschafft. Ideal für alle, die ihren Wohnraum individuell gestalten möchten und Wert auf persönliche Handschrift legen.
Bien-Zenker steht nicht nur für den Bau von Häusern, sondern für die Schaffung von einem Zuhause, in dem Sie sich wohlfühlen. Das Unternehmen blickt auf eine langjährige Erfolgsgeschichte zurück und bietet Ihnen nicht nur Expertise, sondern auch Leidenschaft und Einfühlungsvermögen, um Ihre Wohnträume Wirklichkeit werden zu lassen.
Grundrisse und Abbildungen können Extras zeigen. Flächenangaben nach DIN 277.
Lage
75438 KnittlingenKnittlingen
Der aktuelle durchschnittliche Quadratmeterpreis beträgt 4.217,21 €/m² in Knittlingen.
Mit Immobilienpreisen
Knittlingen vergleichen
Was kostet dein Umzug?
Du planst einen Umzug? Finde jetzt die günstigste Umzugsfirma in deiner Region!
Umzugskosten berechnen Schütze dich vor Betrug!
Leiste keinerlei Zahlung im Vorraus!
Beachte unsere Sicherheitshinweise zum Thema Immobilienbetrug und lies, woran du solche Anzeigen erkennen kannst und wie du dich vor Betrügern schützt.
Anzeige melden Beachte unsere Sicherheitshinweise zum Thema Immobilienbetrug und lies, woran du solche Anzeigen erkennen kannst und wie du dich vor Betrügern schützt.
*Anzeige
Ähnliche Häuser bei ImmoScout24
Knittlingen
- Kaufpreis
- 575.000 €
- Zimmer
- 7 Zi.
- Fläche
- 165 Zi.
Anbieter
Weitere Ergebnisse für:
Wohnungen
Knittlingen;
Immobilien
Knittlingen;
Haus mieten
Knittlingen;
WG Zimmer
Knittlingen;
Wohnung
Knittlingen kaufen;
Haus kaufen
Knittlingen;
Immobilienpreise
Knittlingen Mietspiegel
Knittlingen wohnungsboerse.net übernimmt keine Gewähr für von Dritten gemachte Angaben