
Dachgeschosswohnung in Düsseldorf-Hellerhof
2 Raum Dachgeschosswohnung mit Balkon sowie PKW-Stellplatz in ordentlicher Wohnlage
auf der Karte ansehenUmzugskosten berechnen
- Kaufpreis
- 159.000 €
- Zimmer
- 2
- Fläche
- 58 m²
12 Aufrufe
Objekt-ID: 38072278
| Objekttyp: | Dachgeschosswohnung |
| Zimmer: | 2 |
| Größe: | 58.00 m² |
| Etage: | 3 von 3 |
| Verfügbar ab: | sofort |
Preise & Kosten
| Kaufpreis: | 159.000 € |
| Jetzt kostenlos Finanzierungsangebot anfragen! | |
| Provision: | Ja |
| Preis/m²: | 2.741,38 € |
| Mit Immobilienpreisen Düsseldorf vergleichen | |
Immobilie
Balkon
Stellplatz
Keller
| Baujahr: | 1983 |
| Befeuerungsart: | Zentralheizung |
| Energieausweis: | Verbrauchsausweis |
| Endenergiebedarf: | 80,80 kWh/(m²*a) |
| Energieeffizienzklasse: | C |
Objektbeschreibung
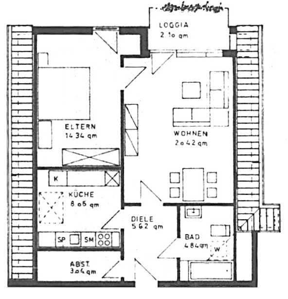
Die Wohnung liegt im 3. Obergeschoss (Dachgeschoss) eines gepflegten Hauses mit nur 8 Parteien aus dem Jahr 1983.
Über den Dielenbereich, welcher ausreichend Platz für eine Garderobe bietet, gelangt man rechter Hand in das Wannenbad. Linkseitig befindet sich der Abstellraum sowie Zugang in die Wohnküche.
Vor Kopf erstreckt sich der Wohnbereich mit Austritt auf den Balkon, welcher einen schönen Weitblick in den Innenhof bietet. Über den Wohnbereich erreicht man das großzügige Schlafzimmer.
Zur Wohnung gehört ein Kellerraum. Neben der im Bad vorgesehenen Möglichkeit zur Stellung einer Waschmaschine, befindet sich im Kellergeschoss neben dem Fahrradraum auch ein Wasch- sowie Trockenraum.
Der PKW-Stellplatz nahe des Hauseingangs rundet den Wohlfühlfaktor dieses charmanten Objektes ab.
Über den Dielenbereich, welcher ausreichend Platz für eine Garderobe bietet, gelangt man rechter Hand in das Wannenbad. Linkseitig befindet sich der Abstellraum sowie Zugang in die Wohnküche.
Vor Kopf erstreckt sich der Wohnbereich mit Austritt auf den Balkon, welcher einen schönen Weitblick in den Innenhof bietet. Über den Wohnbereich erreicht man das großzügige Schlafzimmer.
Zur Wohnung gehört ein Kellerraum. Neben der im Bad vorgesehenen Möglichkeit zur Stellung einer Waschmaschine, befindet sich im Kellergeschoss neben dem Fahrradraum auch ein Wasch- sowie Trockenraum.
Der PKW-Stellplatz nahe des Hauseingangs rundet den Wohlfühlfaktor dieses charmanten Objektes ab.
Lage
40595 DüsseldorfDüsseldorf Hellerhof
Der aktuelle durchschnittliche Quadratmeterpreis beträgt 8.413,53 €/m² in Düsseldorf - Hellerhof. Der durchschnittliche Immobilienpreis in Düsseldorf liegt derzeit bei 5.285,70 €/m².
Mit Immobilienpreisen
Düsseldorf vergleichen
Was kostet dein Umzug?
Du planst einen Umzug? Finde jetzt die günstigste Umzugsfirma in deiner Region!
Umzugskosten berechnen Schütze dich vor Betrug!
Leiste keinerlei Zahlung im Vorraus!
Beachte unsere Sicherheitshinweise zum Thema Immobilienbetrug und lies, woran du solche Anzeigen erkennen kannst und wie du dich vor Betrügern schützt.
Anzeige melden Beachte unsere Sicherheitshinweise zum Thema Immobilienbetrug und lies, woran du solche Anzeigen erkennen kannst und wie du dich vor Betrügern schützt.
*Anzeige
Ähnliche Immobilien bei ImmoScout24
Düsseldorf-Hellerhof
- Kaufpreis
- 110.000 €
- Zimmer
- 2 Zi.
- Fläche
- 50 Zi.
Anbieter
Weitere Ergebnisse für:
Wohnungen
Düsseldorf;
Immobilien
Düsseldorf;
Haus mieten
Düsseldorf;
WG Zimmer
Düsseldorf;
Wohnung
Düsseldorf kaufen;
Haus kaufen
Düsseldorf;
Immobilienpreise
Düsseldorf Mietspiegel
Düsseldorf wohnungsboerse.net übernimmt keine Gewähr für von Dritten gemachte Angaben