
Dachgeschosswohnung in Gütersloh
Exklusive Penthouse-Wohnung in Toplage von Gütersloh
auf der Karte ansehenUmzugskosten berechnen
- Kaufpreis
- 640.000 €
- Zimmer
- 3
- Fläche
- 124 m²
53 Aufrufe
Objekt-ID: 38058166
Objekttyp: | Dachgeschosswohnung |
Zimmer: | 3 |
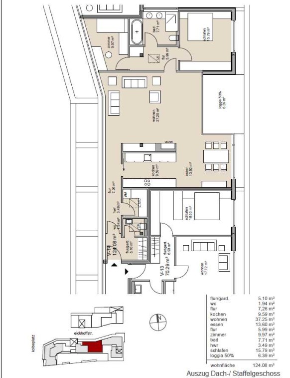
Größe: | 124.00 m² |
Etage: | 3 von 3 |
Verfügbar ab: | keine Angabe |
Preise & Kosten
Kaufpreis: | 640.000 € |
Jetzt kostenlos Finanzierungsangebot anfragen! |
Provision: | Nein |
Preis/m²: | 5.161,29 € |
Mit Immobilienpreisen Gütersloh vergleichen |
Immobilie
Balkon
Aufzug
Keller
Behindertengerecht
Objektbeschreibung
Willkommen in einer exquisiten Dachgeschosswohnung im Herzen von Gütersloh, die höchsten Ansprüchen an Luxus und Komfort gerecht wird.
Diese erstklassige Residenz, erbaut im Jahr 2014, erstreckt sich über ca. 124 m² und bietet Raum für anspruchsvolles Wohnen.
Mit drei Zimmern, darunter zwei elegante Schlafzimmer und ein gehobenes Badezimmer, verspricht diese Wohnung ein unvergleichliches Wohnerlebnis.
Beim Betreten dieser Wohnung werden Sie von einer Atmosphäre der Raffinesse und Eleganz empfangen.
Die durchdachte Raumaufteilung und die hochwertigen Parkett- und Steinböden schaffen ein harmonisches Ambiente, das sowohl modern als auch zeitlos ist.
Der großzügige Wohnbereich ist ideal für stilvolle Empfänge und gesellige Abende, während der Balkon einen ruhigen Rückzugsort bietet, um die Sonne zu genießen.
Besondere Merkmale dieser außergewöhnlichen Immobilie ist die Lage mit einzigartigem Blick in das Wohn- und Geschäfstviertel der Innenstadt.
Zusätzlich hierzu ist das Objekt mit modernster Technik ausgestattet. Die integrierte Gegensprechanlage mit Kamera sorgt für Sicherheit und Kontrolle, ganz bequem und diskret.
Der moderne Aufzug sorgt für bequemen Zugang zur Wohnung, während die Fußbodenheizung für wohlige Wärme sorgt.
Der exklusive Wohnkomfort wird ergänzt durch ein Kellerraum. Ein Tiefgaragenstellplatz garantiert komfortables Parken in der zugehörigen Tiefgarage.
Ein besonderes Merkmal dieser außergewöhnlichen Immobilie ist die Lage mit einzigartigem Blick auf das lebendige Wohn- und Geschäftsviertel der Gütersloher Innenstadt.
Diese gehobene Wohnung in Gütersloh vereint modernes Design mit höchstem Wohnkomfort und bietet eine seltene Gelegenheit, in einer der begehrtesten Lagen der Stadt zu leben.
Durch die zentrale, exklusive Lage in der Stadt ist die Wohnung ideal für anspruchsvolle Käufer, die Komfort und Urbanität schätzen.
Ein Zuhause, das keine Wünsche offenlässt und darauf wartet, von Ihnen entdeckt zu werden.
*
Diese erstklassige Residenz, erbaut im Jahr 2014, erstreckt sich über ca. 124 m² und bietet Raum für anspruchsvolles Wohnen.
Mit drei Zimmern, darunter zwei elegante Schlafzimmer und ein gehobenes Badezimmer, verspricht diese Wohnung ein unvergleichliches Wohnerlebnis.
Beim Betreten dieser Wohnung werden Sie von einer Atmosphäre der Raffinesse und Eleganz empfangen.
Die durchdachte Raumaufteilung und die hochwertigen Parkett- und Steinböden schaffen ein harmonisches Ambiente, das sowohl modern als auch zeitlos ist.
Der großzügige Wohnbereich ist ideal für stilvolle Empfänge und gesellige Abende, während der Balkon einen ruhigen Rückzugsort bietet, um die Sonne zu genießen.
Besondere Merkmale dieser außergewöhnlichen Immobilie ist die Lage mit einzigartigem Blick in das Wohn- und Geschäfstviertel der Innenstadt.
Zusätzlich hierzu ist das Objekt mit modernster Technik ausgestattet. Die integrierte Gegensprechanlage mit Kamera sorgt für Sicherheit und Kontrolle, ganz bequem und diskret.
Der moderne Aufzug sorgt für bequemen Zugang zur Wohnung, während die Fußbodenheizung für wohlige Wärme sorgt.
Der exklusive Wohnkomfort wird ergänzt durch ein Kellerraum. Ein Tiefgaragenstellplatz garantiert komfortables Parken in der zugehörigen Tiefgarage.
Ein besonderes Merkmal dieser außergewöhnlichen Immobilie ist die Lage mit einzigartigem Blick auf das lebendige Wohn- und Geschäftsviertel der Gütersloher Innenstadt.
Diese gehobene Wohnung in Gütersloh vereint modernes Design mit höchstem Wohnkomfort und bietet eine seltene Gelegenheit, in einer der begehrtesten Lagen der Stadt zu leben.
Durch die zentrale, exklusive Lage in der Stadt ist die Wohnung ideal für anspruchsvolle Käufer, die Komfort und Urbanität schätzen.
Ein Zuhause, das keine Wünsche offenlässt und darauf wartet, von Ihnen entdeckt zu werden.
*
Lage
33330 GüterslohGütersloh
Der aktuelle durchschnittliche Quadratmeterpreis beträgt 2.901,85 €/m² in Gütersloh.
Mit Immobilienpreisen
Guetersloh vergleichen
Was kostet dein Umzug?
Du planst einen Umzug? Finde jetzt die günstigste Umzugsfirma in deiner Region!
Umzugskosten berechnen Schütze dich vor Betrug!
Leiste keinerlei Zahlung im Vorraus!
Beachte unsere Sicherheitshinweise zum Thema Immobilienbetrug und lies, woran du solche Anzeigen erkennen kannst und wie du dich vor Betrügern schützt.
Anzeige melden Beachte unsere Sicherheitshinweise zum Thema Immobilienbetrug und lies, woran du solche Anzeigen erkennen kannst und wie du dich vor Betrügern schützt.
*Anzeige

Ähnliche Immobilien bei ImmoScout24
Gütersloh
- Kaufpreis
- 590.000 €
- Zimmer
- 3 Zi.
- Fläche
- 115 Zi.
Weitere Ergebnisse für:
Wohnungen
Gütersloh;
Immobilien
Gütersloh;
Haus mieten
Gütersloh;
WG Zimmer
Gütersloh;
Wohnung
Gütersloh kaufen;
Haus kaufen
Gütersloh;
Immobilienpreise
Gütersloh Mietspiegel
Gütersloh wohnungsboerse.net übernimmt keine Gewähr für von Dritten gemachte Angaben