
Einfamilienhaus zum kaufen in Mindelstetten
KfW40 Einfamilienhaus mit viel Platz für die ganze Familie
auf der Karte ansehenUmzugskosten berechnen
- Kaufpreis
- 629.000 €
- Zimmer
- 5
- Fläche
- 118 m²
53 Aufrufe
Objekt-ID: 37904596
| Objekttyp: | Einfamilienhaus |
| Zimmer: | 5 |
| Größe: | 118.00 m² |
| Grundstücksfläche: | 600,00 m² |
| Verfügbar ab: | 2026 |
Preise & Kosten
| Kaufpreis: | 629.000 € |
| Jetzt kostenlos Finanzierungsangebot anfragen! | |
| Provision: | Nein |
| Preis/m²: | 5.330,51 € |
Immobilie
| Baujahr: | 2026 |
| Befeuerungsart: | Umweltwärme |
| Energieausweis: | Energieausweis in Vorbereitung |
Objektbeschreibung
Willkommen in Ihrem neuen Traumhaus! Dieses großzügige Einfamilienhaus bietet Ihnen nicht nur viel Platz, sondern auch eine hochwertige Ausstattung und eine nachhaltige Bauweise. Mit einer Wohnfläche von knapp 118 m² und 5 Zimmern ist es ideal für Familien, die modernen Komfort und individuelle Gestaltungsmöglichkeiten suchen.
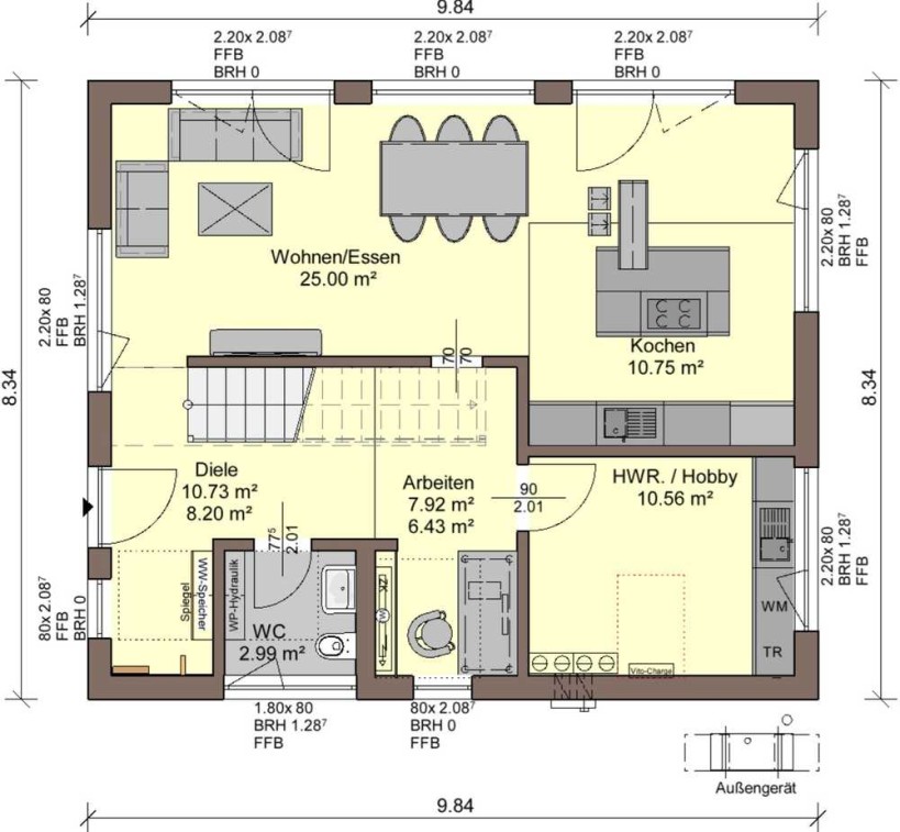
Erdgeschoss – Offenes Wohnen & Arbeiten
• Wohn-/Essbereich: Lichtdurchflutetes Wohnzimmer mit offener Gestaltung und direktem Zugang zur Terrasse.
• Küche : Moderne Einbauküche mit Kochinsel für gesellige Kochabende.
• Büro/Arbeitszimmer: Ideal für Homeoffice oder als Gästezimmer nutzbar.
• Hauswirtschaftsraum/Hobbyraum: Praktischer Stauraum mit Platz für Waschmaschine & Trockner.
• Gäste-WC: Komfortabel und stilvoll ausgestattet.
• Diele & Treppenaufgang: Einladender Eingangsbereich mit Garderobe.
Obergeschoss – Entspannte Privatsphäre
• Schlafzimmer: Geräumiges Elternschlafzimmer mit ausreichend Platz für Schränke.
• Kinderzimmer 1 & Kinderzimmer 2 : Helle Räume, perfekt für Kinder oder Gäste.
• Badezimmer: Großzügiges Familienbad mit Badewanne, bodengleicher Dusche, Waschbecken & WC.
Unser Rundum-Sorglos-Paket für Sie:
Wir begleiten Sie durch den gesamten Bauprozess: Von der ersten individuellen Vorplanung durch unseren Architekten über die behördlichen Genehmigungsverfahren bis hin zur Bodenplatte und Bauüberwachung – wir kümmern uns um alles bis zur Schlüsselübergabe. So können Sie sich entspannt auf Ihr neues Zuhause freuen.
Highlights des Hauses
✅ Zimmer: 5 (davon 3 Schlafzimmer)
✅ Bäder: 1 Badezimmer im OG + 1 Gäste-WC im EG
✅ Nachhaltigkeit: Klimafreundliches Wohngebäude in Holzfachwerkkonstruktion
✅ Keller: optional – zu allen unseren Häusern ist ein Keller möglich
Individuelle Anpassungsmöglichkeiten
Das Haus wird bezugsfertig auf einer Bodenplatte erstellt. Auf Wunsch kann auch ein Keller realisiert werden (gegen Aufpreis). Der angegebene Preis umfasst das Grundstück sowie das schlüsselfertige Haus mit Bodenplatte, jedoch ohne Baunebenkosten und voraussichtliche Außenanlagen.
Energieeffizienz & Nachhaltigkeit
Die Gebäudebestandteile eines Büdenbender-Hauses erfüllen bereits die hohen Anforderungen einer KfW-Förderung. Das bezugsfertige Haus umfasst unter anderem sämtliche Bodenbeläge, Malerarbeiten und Sanitärinstallationen.
Für eine nachhaltige Energieversorgung kann das Haus mit einer Photovoltaikanlage ausgestattet werden. Optional kann ein Batteriespeicher ergänzt werden, um die Energieeffizienz weiter zu steigern.
Jetzt Beratungstermin vereinbaren!
Dieses Haus bietet Ihnen ein einzigartiges Wohnerlebnis mit viel Platz für Ihre individuellen Bedürfnisse. Lassen Sie sich diese Chance nicht entgehen und kontaktieren Sie uns noch heute!
� Kontaktieren Sie uns für weitere Informationen!
Erdgeschoss – Offenes Wohnen & Arbeiten
• Wohn-/Essbereich: Lichtdurchflutetes Wohnzimmer mit offener Gestaltung und direktem Zugang zur Terrasse.
• Küche : Moderne Einbauküche mit Kochinsel für gesellige Kochabende.
• Büro/Arbeitszimmer: Ideal für Homeoffice oder als Gästezimmer nutzbar.
• Hauswirtschaftsraum/Hobbyraum: Praktischer Stauraum mit Platz für Waschmaschine & Trockner.
• Gäste-WC: Komfortabel und stilvoll ausgestattet.
• Diele & Treppenaufgang: Einladender Eingangsbereich mit Garderobe.
Obergeschoss – Entspannte Privatsphäre
• Schlafzimmer: Geräumiges Elternschlafzimmer mit ausreichend Platz für Schränke.
• Kinderzimmer 1 & Kinderzimmer 2 : Helle Räume, perfekt für Kinder oder Gäste.
• Badezimmer: Großzügiges Familienbad mit Badewanne, bodengleicher Dusche, Waschbecken & WC.
Unser Rundum-Sorglos-Paket für Sie:
Wir begleiten Sie durch den gesamten Bauprozess: Von der ersten individuellen Vorplanung durch unseren Architekten über die behördlichen Genehmigungsverfahren bis hin zur Bodenplatte und Bauüberwachung – wir kümmern uns um alles bis zur Schlüsselübergabe. So können Sie sich entspannt auf Ihr neues Zuhause freuen.
Highlights des Hauses
✅ Zimmer: 5 (davon 3 Schlafzimmer)
✅ Bäder: 1 Badezimmer im OG + 1 Gäste-WC im EG
✅ Nachhaltigkeit: Klimafreundliches Wohngebäude in Holzfachwerkkonstruktion
✅ Keller: optional – zu allen unseren Häusern ist ein Keller möglich
Individuelle Anpassungsmöglichkeiten
Das Haus wird bezugsfertig auf einer Bodenplatte erstellt. Auf Wunsch kann auch ein Keller realisiert werden (gegen Aufpreis). Der angegebene Preis umfasst das Grundstück sowie das schlüsselfertige Haus mit Bodenplatte, jedoch ohne Baunebenkosten und voraussichtliche Außenanlagen.
Energieeffizienz & Nachhaltigkeit
Die Gebäudebestandteile eines Büdenbender-Hauses erfüllen bereits die hohen Anforderungen einer KfW-Förderung. Das bezugsfertige Haus umfasst unter anderem sämtliche Bodenbeläge, Malerarbeiten und Sanitärinstallationen.
Für eine nachhaltige Energieversorgung kann das Haus mit einer Photovoltaikanlage ausgestattet werden. Optional kann ein Batteriespeicher ergänzt werden, um die Energieeffizienz weiter zu steigern.
Jetzt Beratungstermin vereinbaren!
Dieses Haus bietet Ihnen ein einzigartiges Wohnerlebnis mit viel Platz für Ihre individuellen Bedürfnisse. Lassen Sie sich diese Chance nicht entgehen und kontaktieren Sie uns noch heute!
� Kontaktieren Sie uns für weitere Informationen!
Was kostet dein Umzug?
Du planst einen Umzug? Finde jetzt die günstigste Umzugsfirma in deiner Region!
Umzugskosten berechnen Schütze dich vor Betrug!
Leiste keinerlei Zahlung im Vorraus!
Beachte unsere Sicherheitshinweise zum Thema Immobilienbetrug und lies, woran du solche Anzeigen erkennen kannst und wie du dich vor Betrügern schützt.
Anzeige melden Beachte unsere Sicherheitshinweise zum Thema Immobilienbetrug und lies, woran du solche Anzeigen erkennen kannst und wie du dich vor Betrügern schützt.
*Anzeige
Ähnliche Häuser bei ImmoScout24
Mindelstetten
- Kaufpreis
- 580.000 €
- Zimmer
- 5 Zi.
- Fläche
- 110 Zi.
Anbieter
Weitere Ergebnisse für:
Wohnungen
Mindelstetten;
Immobilien
Mindelstetten;
Haus mieten
Mindelstetten;
WG Zimmer
Mindelstetten;
Wohnung
Mindelstetten kaufen;
Haus kaufen
Mindelstetten;
wohnungsboerse.net übernimmt keine Gewähr für von Dritten gemachte Angaben