
Erdgeschosswohnung in Lappersdorf
Kompakt und renditestark für Kapitalanleger oder Eigennutzer ideal
auf der Karte ansehenUmzugskosten berechnen
- Kaufpreis
- 290.375 €
- Zimmer
- 1
- Fläche
- 46.46 m²
49 Aufrufe
Objekt-ID: 37572198
Objekttyp: | Erdgeschosswohnung |
Zimmer: | 1 |
Größe: | 46.46 m² |
Verfügbar ab: | 06.2027 |
Preise & Kosten
Kaufpreis: | 290.375 € |
Jetzt kostenlos Finanzierungsangebot anfragen! |
Provision: | Nein |
Preis/m²: | 6.250,00 € |
Mit Immobilienpreisen Lappersdorf vergleichen |
Immobilie
Balkon
Garten
Einbauküche
Aufzug
Keller
Behindertengerecht
Baujahr: | 2027 |
Befeuerungsart: | Strom |
Energieausweis: | Energieausweis in Vorbereitung |
Objektbeschreibung
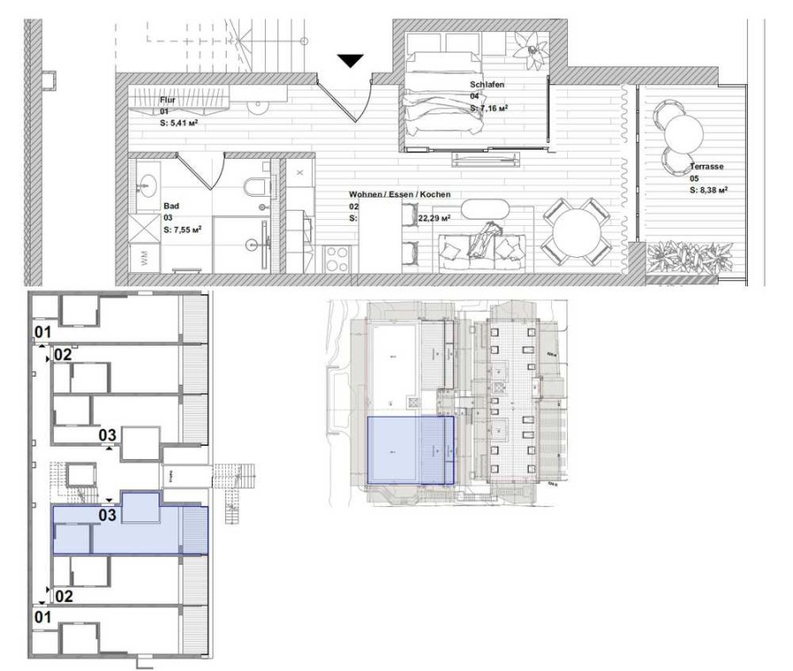
Willkommen in Ihrem neuen Wohlfühl-Zuhause! Diese moderne und hochwertig ausgestattete Erdgeschosswohnung begeistert mit stilvollem Design, effizienter Raumaufteilung und einer herrlichen Terrasse – perfekt für Singles, Paare oder Pendler mit Sinn für Qualität und Komfort.
Auf ca. 47 m² Wohnfläche bietet die Wohnung alles, was das Herz begehrt: Das Schlafzimmer ist durch elegante Schiebeelemente vom Wohnbereich getrennt – flexibel und clever gelöst. Bei Bedarf lässt sich der Raum öffnen und als großzügiges Loft genießen oder die Elemente schließen, um sich einen ruhigen Rückzugsort zu schaffen.
Der offene Wohn-, Ess- und Küchenbereich überzeugt mit Helligkeit und moderner Atmosphäre. Der ca. 5,4 m² große Flur bietet ausreichend Platz für einen geräumigen Kleiderschrank oder eine stilvolle Garderobenlösung – funktional und einladend zugleich.
Das ca. 7,55 m² große Badezimmer ist hochwertig ausgestattet und sorgt mit seinem großzügigen Schnitt für echten Wohlfühlkomfort.
Ein echtes Highlight ist die sonnige Terrasse in angenehmer Erdgeschosslage. Ob entspanntes Frühstück im Freien oder ein Glas Wein am Abend – hier genießen Sie Ihre persönliche Outdoor-Oase.
Auf ca. 47 m² Wohnfläche bietet die Wohnung alles, was das Herz begehrt: Das Schlafzimmer ist durch elegante Schiebeelemente vom Wohnbereich getrennt – flexibel und clever gelöst. Bei Bedarf lässt sich der Raum öffnen und als großzügiges Loft genießen oder die Elemente schließen, um sich einen ruhigen Rückzugsort zu schaffen.
Der offene Wohn-, Ess- und Küchenbereich überzeugt mit Helligkeit und moderner Atmosphäre. Der ca. 5,4 m² große Flur bietet ausreichend Platz für einen geräumigen Kleiderschrank oder eine stilvolle Garderobenlösung – funktional und einladend zugleich.
Das ca. 7,55 m² große Badezimmer ist hochwertig ausgestattet und sorgt mit seinem großzügigen Schnitt für echten Wohlfühlkomfort.
Ein echtes Highlight ist die sonnige Terrasse in angenehmer Erdgeschosslage. Ob entspanntes Frühstück im Freien oder ein Glas Wein am Abend – hier genießen Sie Ihre persönliche Outdoor-Oase.
Lage
93138 LappersdorfLappersdorf
Der aktuelle durchschnittliche Quadratmeterpreis beträgt 4.985,31 €/m² in Lappersdorf.
Mit Immobilienpreisen
Lappersdorf vergleichen
Was kostet dein Umzug?
Du planst einen Umzug? Finde jetzt die günstigste Umzugsfirma in deiner Region!
Umzugskosten berechnen Schütze dich vor Betrug!
Leiste keinerlei Zahlung im Vorraus!
Beachte unsere Sicherheitshinweise zum Thema Immobilienbetrug und lies, woran du solche Anzeigen erkennen kannst und wie du dich vor Betrügern schützt.
Anzeige melden Beachte unsere Sicherheitshinweise zum Thema Immobilienbetrug und lies, woran du solche Anzeigen erkennen kannst und wie du dich vor Betrügern schützt.
*Anzeige

Ähnliche Immobilien bei ImmoScout24
Lappersdorf
- Kaufpreis
- 245.000 €
- Zimmer
- 1 Zi.
- Fläche
- 40 Zi.
Anbieter
Weitere Ergebnisse für:
Wohnungen
Lappersdorf;
Immobilien
Lappersdorf;
Haus mieten
Lappersdorf;
WG Zimmer
Lappersdorf;
Wohnung
Lappersdorf kaufen;
Haus kaufen
Lappersdorf;
Immobilienpreise
Lappersdorf Mietspiegel
Lappersdorf wohnungsboerse.net übernimmt keine Gewähr für von Dritten gemachte Angaben