
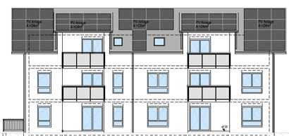
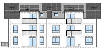
Dachgeschosswohnung in Albbruck
Klimafreundlicher Neubau - 3-Zimmer-Wohnung mit Aussicht im Dachgeschoss
auf der Karte ansehenUmzugskosten berechnen
- Kaufpreis
- 325.000 €
- Zimmer
- 3
- Fläche
- 70 m²
55 Aufrufe
Objekt-ID: 37468365
Objekttyp: | Dachgeschosswohnung |
Zimmer: | 3 |
Größe: | 70.00 m² |
Etage: | 2 von 4 |
Verfügbar ab: | 2026 |
Preise & Kosten
Kaufpreis: | 325.000 € |
Jetzt kostenlos Finanzierungsangebot anfragen! |
Provision: | Nein |
Preis/m²: | 4.642,86 € |
Mit Immobilienpreisen Albbruck vergleichen |
Immobilie
Balkon
Aufzug
Keller
Neubau
Behindertengerecht
Baujahr: | 2026 |
Befeuerungsart: | Strom |
Energieausweis: | Energieausweis in Vorbereitung |
Objektbeschreibung
Als regional tätiges Bauunternehmen errichten wir mit leistungsfähigen Handwerksbetrieben aus der Region in Albbruck ein 6-Familienhaus mit Einzelgaragen im Energiestandard KfW-40 als klimafreundlicher Neubau.
Hierbei entstehen auf drei Etagen sowohl 3-Zimmer- als auch 4-Zimmer-Wohnungen.
Mit einem Aufzug gelangt man in alle 4 Geschosse vom Keller bis in das Dachgeschoss.
Im Untergeschoss befinden sich je Wohnung ein großer Kellerraum sowie Fahrradstellplätze und die Haustechnik.
Im Außenbereich werden je Wohnung ein Stellplatz und eine Einzelgarage hergestellt sowie eine Einhausung für die Müllbehälter.
Hierbei entstehen auf drei Etagen sowohl 3-Zimmer- als auch 4-Zimmer-Wohnungen.
Mit einem Aufzug gelangt man in alle 4 Geschosse vom Keller bis in das Dachgeschoss.
Im Untergeschoss befinden sich je Wohnung ein großer Kellerraum sowie Fahrradstellplätze und die Haustechnik.
Im Außenbereich werden je Wohnung ein Stellplatz und eine Einzelgarage hergestellt sowie eine Einhausung für die Müllbehälter.
Lage
Hauensteiner Straße79774 Albbruck
Albbruck
Der aktuelle durchschnittliche Quadratmeterpreis beträgt 2.844,43 €/m² in Albbruck.
Mit Immobilienpreisen
Albbruck vergleichen
Was kostet dein Umzug?
Du planst einen Umzug? Finde jetzt die günstigste Umzugsfirma in deiner Region!
Umzugskosten berechnen Schütze dich vor Betrug!
Leiste keinerlei Zahlung im Vorraus!
Beachte unsere Sicherheitshinweise zum Thema Immobilienbetrug und lies, woran du solche Anzeigen erkennen kannst und wie du dich vor Betrügern schützt.
Anzeige melden Beachte unsere Sicherheitshinweise zum Thema Immobilienbetrug und lies, woran du solche Anzeigen erkennen kannst und wie du dich vor Betrügern schützt.
*Anzeige

Ähnliche Immobilien bei ImmoScout24
Albbruck
- Kaufpreis
- 275.000 €
- Zimmer
- 3 Zi.
- Fläche
- 60 Zi.
Anbieter
Weitere Ergebnisse für:
Wohnungen
Albbruck;
Immobilien
Albbruck;
Haus mieten
Albbruck;
WG Zimmer
Albbruck;
Wohnung
Albbruck kaufen;
Haus kaufen
Albbruck;
Immobilienpreise
Albbruck Mietspiegel
Albbruck wohnungsboerse.net übernimmt keine Gewähr für von Dritten gemachte Angaben