
Immobilie in Oberstaufen
Neubau in Oberstaufen! 2-Zimmer-Obergeschoßwohnung
auf der Karte ansehenUmzugskosten berechnen
- Kaufpreis
- 560.000 €
- Zimmer
- 2
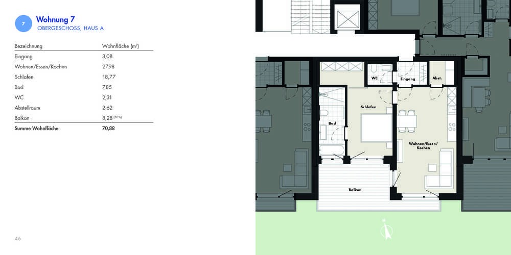
- Fläche
- 70.5 m²
84 Aufrufe
Objekt-ID: 37457454
Objekttyp: | Keine Angabe |
Zimmer: | 2 |
Größe: | 70.50 m² |
Etage: | 1 von 3 |
Verfügbar ab: | keine Angabe |
Preise & Kosten
Kaufpreis: | 560.000 € |
Jetzt kostenlos Finanzierungsangebot anfragen! |
Provision: | Nein |
Preis/m²: | 7.943,26 € |
Mit Immobilienpreisen Oberstaufen vergleichen |
Immobilie
Balkon
Aufzug
Keller
Neubau
Behindertengerecht
Baujahr: | 2027 |
Befeuerungsart: | Fernwärme |
Lage
87534 OberstaufenOberstaufen
Der aktuelle durchschnittliche Quadratmeterpreis beträgt 4.473,36 €/m² in Oberstaufen.
Mit Immobilienpreisen
Oberstaufen vergleichen
Was kostet dein Umzug?
Du planst einen Umzug? Finde jetzt die günstigste Umzugsfirma in deiner Region!
Umzugskosten berechnen Schütze dich vor Betrug!
Leiste keinerlei Zahlung im Vorraus!
Beachte unsere Sicherheitshinweise zum Thema Immobilienbetrug und lies, woran du solche Anzeigen erkennen kannst und wie du dich vor Betrügern schützt.
Anzeige melden Beachte unsere Sicherheitshinweise zum Thema Immobilienbetrug und lies, woran du solche Anzeigen erkennen kannst und wie du dich vor Betrügern schützt.
*Anzeige

Ähnliche Immobilien bei ImmoScout24
Oberstaufen
- Kaufpreis
- 510.000 €
- Zimmer
- 2 Zi.
- Fläche
- 65 Zi.
Anbieter
Weitere Ergebnisse für:
Wohnungen
Oberstaufen;
Immobilien
Oberstaufen;
Haus mieten
Oberstaufen;
WG Zimmer
Oberstaufen;
Wohnung
Oberstaufen kaufen;
Haus kaufen
Oberstaufen;
Immobilienpreise
Oberstaufen Mietspiegel
Oberstaufen wohnungsboerse.net übernimmt keine Gewähr für von Dritten gemachte Angaben