
Dachgeschosswohnung in Notzingen
**BAUBEGINN**ATTRAKTIVES WOHN- UND GESCHÄFTSHAUS IN NOTZINGEN
auf der Karte ansehenUmzugskosten berechnen
- Kaufpreis
- 596.000 €
- Zimmer
- 4.5
- Fläche
- 102.41 m²
63 Aufrufe
Objekt-ID: 37317011
| Objekttyp: | Dachgeschosswohnung |
| Zimmer: | 4.5 |
| Größe: | 102.41 m² |
| Etage: | 3 von 4 |
| Verfügbar ab: | keine Angabe |
Preise & Kosten
| Kaufpreis: | 596.000 € |
| Jetzt kostenlos Finanzierungsangebot anfragen! | |
| Provision: | Nein |
| Preis/m²: | 5.819,74 € |
| Mit Immobilienpreisen Notzingen vergleichen | |
Immobilie
Balkon
Aufzug
Keller
Behindertengerecht
| Baujahr: | 2026 |
| Befeuerungsart: | Strom |
| Energieausweis: | Bedarfsausweis |
| Endenergiebedarf: | 13,80 kWh/(m²*a) |
| Energieeffizienzklasse: | A+ |
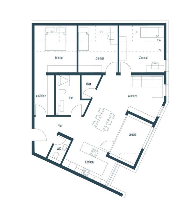
Objektbeschreibung
MODERNES WOHNEN IN ZENTRALER LAGE VON NOTZINGEN
Das ebenerdige Baugrundstück in zentraler Lage von Notzingen
ist mit idealer Anbindung zu charakterisieren. In einem Wohn- u. Geschäftshaus
mit Stellplätzen entstehen 10 Wohnungen, eine Bäckerei und eine kleine Gewerbeeinheit,
welche Anfang 2027 fertiggestellt sein werden. Es handelt sich um durchdachte 2,5 bis
4,5 Zimmer-Wohnungen mit Größen zwischen ca. 73 bis 110 m² Wohnfläche.
Das Haus verfügt über einen Aufzug. Zu jeder Wohnung gehört
im Untergeschoss ein Abstellraum sowie gemeinschaftliche Nutzräume.
Das Grundstück verfügt über überdachte Stellplätze, die von Ihnen erworben werden können.
Das ebenerdige Baugrundstück in zentraler Lage von Notzingen
ist mit idealer Anbindung zu charakterisieren. In einem Wohn- u. Geschäftshaus
mit Stellplätzen entstehen 10 Wohnungen, eine Bäckerei und eine kleine Gewerbeeinheit,
welche Anfang 2027 fertiggestellt sein werden. Es handelt sich um durchdachte 2,5 bis
4,5 Zimmer-Wohnungen mit Größen zwischen ca. 73 bis 110 m² Wohnfläche.
Das Haus verfügt über einen Aufzug. Zu jeder Wohnung gehört
im Untergeschoss ein Abstellraum sowie gemeinschaftliche Nutzräume.
Das Grundstück verfügt über überdachte Stellplätze, die von Ihnen erworben werden können.
Lage
Ötlinger Strasse73274 Notzingen
Notzingen
Der aktuelle durchschnittliche Quadratmeterpreis beträgt 4.591,38 €/m² in Notzingen.
Mit Immobilienpreisen
Notzingen vergleichen
Was kostet dein Umzug?
Du planst einen Umzug? Finde jetzt die günstigste Umzugsfirma in deiner Region!
Umzugskosten berechnen Schütze dich vor Betrug!
Leiste keinerlei Zahlung im Vorraus!
Beachte unsere Sicherheitshinweise zum Thema Immobilienbetrug und lies, woran du solche Anzeigen erkennen kannst und wie du dich vor Betrügern schützt.
Anzeige melden Beachte unsere Sicherheitshinweise zum Thema Immobilienbetrug und lies, woran du solche Anzeigen erkennen kannst und wie du dich vor Betrügern schützt.
*Anzeige
Ähnliche Immobilien bei ImmoScout24
Notzingen
- Kaufpreis
- 550.000 €
- Zimmer
- 4.5 Zi.
- Fläche
- 95 Zi.
Anbieter
Weitere Ergebnisse für:
Wohnungen
Notzingen;
Immobilien
Notzingen;
Haus mieten
Notzingen;
WG Zimmer
Notzingen;
Wohnung
Notzingen kaufen;
Haus kaufen
Notzingen;
Immobilienpreise
Notzingen Mietspiegel
Notzingen wohnungsboerse.net übernimmt keine Gewähr für von Dritten gemachte Angaben