
Erdgeschosswohnung in Althengstett
4 Zimmer Erdgeschosswohnung mit Garten
auf der Karte ansehenUmzugskosten berechnen
- Kaufpreis
- 669.900 €
- Zimmer
- 4
- Fläche
- 119.9 m²
                    101 Aufrufe
                    
                
                Objekt-ID: 36877915
| Objekttyp: | Erdgeschosswohnung | 
| Zimmer: | 4 | 
| Größe: | 119.90 m² | 
| Etage: | 1 von 4 | 
| Verfügbar ab: | keine Angabe | 
Preise & Kosten
| Kaufpreis: | 669.900 € | 
| Jetzt kostenlos Finanzierungsangebot anfragen! | |
| Provision: | Nein | 
| Preis/m²: | 5.587,16 € | 
| Mit Immobilienpreisen Althengstett vergleichen | |
Immobilie
                                    Balkon
                                
                                                            
                                    Garten
                                
                                                            
                                    Aufzug
                                
                                                            
                                    Keller
                                
                                                            
                                    Behindertengerecht
                                
                                                    | Baujahr: | 2025 | 
| Befeuerungsart: | Gas | 
| Energieausweis: | Bedarfsausweis | 
| Endenergiebedarf: | 61,00 kWh/(m²*a) | 
| Energieeffizienzklasse: | B | 
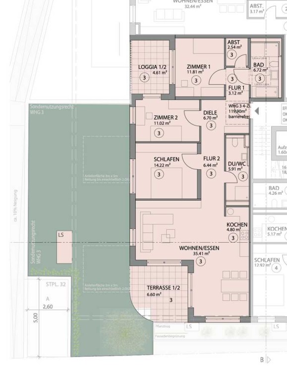
Objektbeschreibung
                            Diese herrliche Gartenwohnung mit Loggia, einer Terrasse mit Garten eignet sich sehr gut für Familien. Der Grundriss ist toll ausgelegt, so dass die Wohnung Rückzugsorte für mehrere Familienmitglieder bietet.  Der Grundriss hat 3 Schlafzimmer und 2 Bäder zu bieten. Zusammen kommt man im 
offenen Wohnbereich mit Küche und Blick auf den Garten.
Mit dem „Schlehenpark“ verwirklichen wir, die IW-Plan Althengstett GmbH, ein weiteres Bauvorhaben in Althengstett. Das Projekt überzeugt erneut mit einem zukunftsorientierten Konzept, durch das die Gebäude unabhängiger von Energieanbietern und umweltbewusst wird. Viele Details machen die Immobilie auch visuell zu einem echten Highlight, das zum Leben und Wohnen einlädt.
Althengstett ist ein beliebter Standort mit guter Anbindung, künftigem S-Bahn-Anschluss, Geschäften des täglichen Bedarfs und Kindergärten/Schulen. Das Naturschutzgebiet Hecken- und Schlehengäu ist fußläufig in wenigen Minuten erreichbar.
Es entstehen zwei Wohngebäude mit 12 und 9 Wohneinheiten. Jede Wohnung verfügt über einen privaten Garten, eine überdachte Loggia oder eine traumhafte Dachterrasse – charmant und lebensbereichernd. Die ansprechende Architektur gipfelt in begrünten Fassaden und Pergolen. Moderne Schiebeläden dienen der Verschattung und gestalten die Fassade spielerisch durch deren flexible Positionierung.
Als regionaler Bauträger und Bauherr stehen wir bis zur Schlüsselübergabe in der Verantwortung. Das ermöglicht unseren Kunden eine entspannte Planungs- und Bauzeit. Gemeinsam besprechen wir Ihre Wünsche und setzen diese, soweit möglich, für Sie um.
                                                    
                                            offenen Wohnbereich mit Küche und Blick auf den Garten.
Mit dem „Schlehenpark“ verwirklichen wir, die IW-Plan Althengstett GmbH, ein weiteres Bauvorhaben in Althengstett. Das Projekt überzeugt erneut mit einem zukunftsorientierten Konzept, durch das die Gebäude unabhängiger von Energieanbietern und umweltbewusst wird. Viele Details machen die Immobilie auch visuell zu einem echten Highlight, das zum Leben und Wohnen einlädt.
Althengstett ist ein beliebter Standort mit guter Anbindung, künftigem S-Bahn-Anschluss, Geschäften des täglichen Bedarfs und Kindergärten/Schulen. Das Naturschutzgebiet Hecken- und Schlehengäu ist fußläufig in wenigen Minuten erreichbar.
Es entstehen zwei Wohngebäude mit 12 und 9 Wohneinheiten. Jede Wohnung verfügt über einen privaten Garten, eine überdachte Loggia oder eine traumhafte Dachterrasse – charmant und lebensbereichernd. Die ansprechende Architektur gipfelt in begrünten Fassaden und Pergolen. Moderne Schiebeläden dienen der Verschattung und gestalten die Fassade spielerisch durch deren flexible Positionierung.
Als regionaler Bauträger und Bauherr stehen wir bis zur Schlüsselübergabe in der Verantwortung. Das ermöglicht unseren Kunden eine entspannte Planungs- und Bauzeit. Gemeinsam besprechen wir Ihre Wünsche und setzen diese, soweit möglich, für Sie um.
Lage
Bahnhofstraße75382 Althengstett
Althengstett
Der aktuelle durchschnittliche Quadratmeterpreis beträgt 4.396,73 €/m² in Althengstett.
                                                            Mit Immobilienpreisen
                                    Althengstett vergleichen
                                                    
                                    Was kostet dein Umzug?
Du planst einen Umzug? Finde jetzt die günstigste Umzugsfirma in deiner Region!
                        Umzugskosten berechnen                    Schütze dich vor Betrug!
                            Leiste keinerlei Zahlung im Vorraus!
                            
Beachte unsere Sicherheitshinweise zum Thema Immobilienbetrug und lies, woran du solche Anzeigen erkennen kannst und wie du dich vor Betrügern schützt.
                        Anzeige melden                    Beachte unsere Sicherheitshinweise zum Thema Immobilienbetrug und lies, woran du solche Anzeigen erkennen kannst und wie du dich vor Betrügern schützt.
            *Anzeige
             
        
         
        Ähnliche Immobilien bei ImmoScout24
Althengstett
            - Kaufpreis
- 620.000 €
- Zimmer
- 4 Zi.
- Fläche
- 110 Zi.
Anbieter
Weitere Ergebnisse für:
                Wohnungen
                    Althengstett;
                Immobilien
                    Althengstett;
                Haus mieten
                    Althengstett;
                                    WG Zimmer
                        Althengstett;
                                Wohnung
                    Althengstett kaufen;
                Haus kaufen
                    Althengstett;
                                    Immobilienpreise
                        Althengstett                                                    Mietspiegel
                        Althengstett                                wohnungsboerse.net übernimmt keine Gewähr für von Dritten gemachte Angaben