
Etagenwohnung in Aresing
Exklusiv & innovativ leben!
auf der Karte ansehenUmzugskosten berechnen
- Kaufpreis
- 539.000 €
- Zimmer
- 3
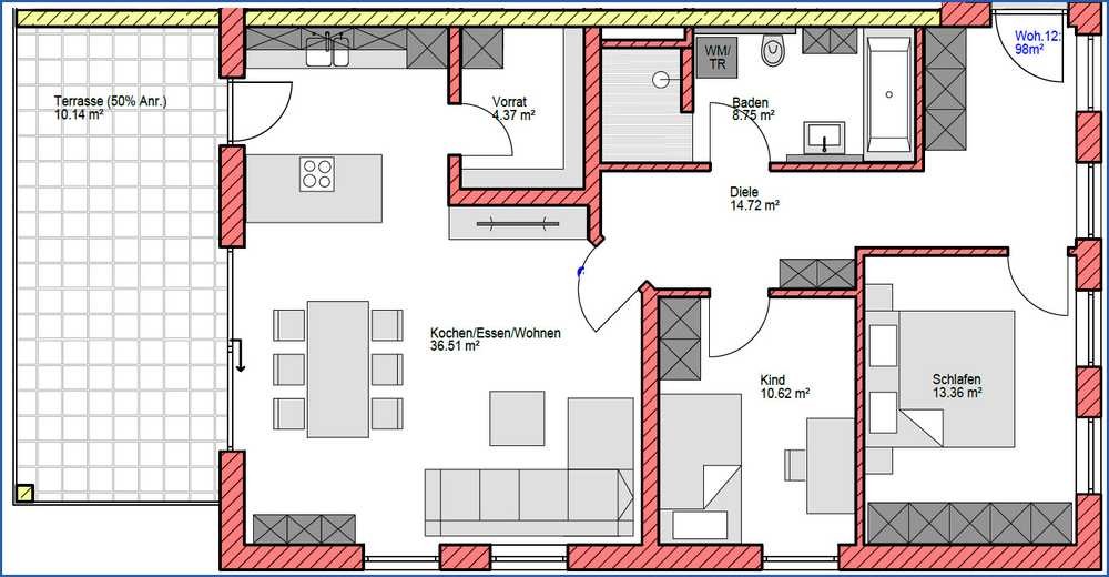
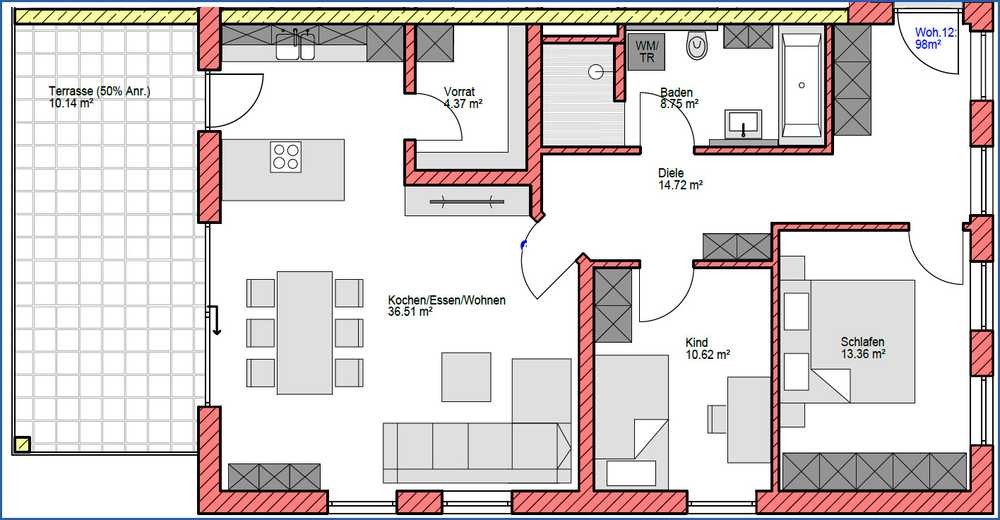
- Fläche
- 98 m²
89 Aufrufe
Objekt-ID: 36819476
Objekttyp: | Etagenwohnung |
Zimmer: | 3 |
Größe: | 98.00 m² |
Etage: | 2 von 3 |
Verfügbar ab: | keine Angabe |
Preise & Kosten
Kaufpreis: | 539.000 € |
Jetzt kostenlos Finanzierungsangebot anfragen! |
Provision: | Nein |
Preis/m²: | 5.500,00 € |
Mit Immobilienpreisen Aresing vergleichen |
Immobilie
Balkon
Aufzug
Keller
Baujahr: | 2025 |
Befeuerungsart: | Gas |
Objektbeschreibung
Am neuen "Treffpunkt Aresing" entsteht eine exklusive & innovative Anlage, bestehend aus drei Wohn- und Geschäftshäusern.
20 Wohneinheiten mit ca. 50 -134 m² sowie mit moderner, barrierefreier Gestaltung entstehen in den Obergeschossen.
6 Gewerbeflächen im Erdgeschoss mit aktuell noch flexibler Aufteilung & Ausstattung.
Sichern Sie sich eine Wohnung oder Gewerbefläche im "Treffpunkt Aresing" - Reservierungen sind ab sofort möglich!
20 Wohneinheiten mit ca. 50 -134 m² sowie mit moderner, barrierefreier Gestaltung entstehen in den Obergeschossen.
6 Gewerbeflächen im Erdgeschoss mit aktuell noch flexibler Aufteilung & Ausstattung.
Sichern Sie sich eine Wohnung oder Gewerbefläche im "Treffpunkt Aresing" - Reservierungen sind ab sofort möglich!
Lage
86561 AresingAresing
Der aktuelle durchschnittliche Quadratmeterpreis beträgt 4.830,74 €/m² in Aresing.
Mit Immobilienpreisen
Aresing vergleichen
Was kostet dein Umzug?
Du planst einen Umzug? Finde jetzt die günstigste Umzugsfirma in deiner Region!
Umzugskosten berechnen Schütze dich vor Betrug!
Leiste keinerlei Zahlung im Vorraus!
Beachte unsere Sicherheitshinweise zum Thema Immobilienbetrug und lies, woran du solche Anzeigen erkennen kannst und wie du dich vor Betrügern schützt.
Anzeige melden Beachte unsere Sicherheitshinweise zum Thema Immobilienbetrug und lies, woran du solche Anzeigen erkennen kannst und wie du dich vor Betrügern schützt.
*Anzeige

Ähnliche Immobilien bei ImmoScout24
Aresing
- Kaufpreis
- 490.000 €
- Zimmer
- 3 Zi.
- Fläche
- 90 Zi.
Anbieter
Weitere Ergebnisse für:
Wohnungen
Aresing;
Immobilien
Aresing;
Haus mieten
Aresing;
WG Zimmer
Aresing;
Wohnung
Aresing kaufen;
Haus kaufen
Aresing;
Immobilienpreise
Aresing Mietspiegel
Aresing wohnungsboerse.net übernimmt keine Gewähr für von Dritten gemachte Angaben