
Einfamilienhaus zum kaufen in Oberbachheim
Oberbachheim da steht ihr Traumhaus NEUBAU
auf der Karte ansehenUmzugskosten berechnen
- Kaufpreis
- 833.000 €
- Zimmer
- 5
- Fläche
- 137 m²
82 Aufrufe
Objekt-ID: 36561715
| Objekttyp: | Einfamilienhaus |
| Zimmer: | 5 |
| Größe: | 137.00 m² |
| Grundstücksfläche: | 607,00 m² |
| Verfügbar ab: | keine Angabe |
Preise & Kosten
| Kaufpreis: | 833.000 € |
| Jetzt kostenlos Finanzierungsangebot anfragen! | |
| Provision: | Nein |
| Preis/m²: | 6.080,29 € |
| Mit Immobilienpreisen Oberbachheim vergleichen | |
Immobilie
Neubau
| Baujahr: | 2025 |
| Befeuerungsart: | Strom |
Objektbeschreibung
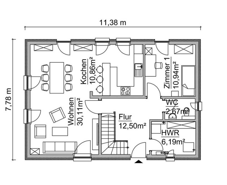
Hervorragendes Einfamilienhaus mit einer tollen Optik für Sie und Ihre Familie. Der sehr großzügige Wohn- Essbereich mit offener Küche beträgt schon über 40 qm. Natürlich befindet sich auch der HWR und das Gäste-WC im Erdgeschoss. Zusätzlich ein weiterer Raum zum Arbeiten oder für Ihre Gäste.
Auch im Obergeschoss wird kein unnötiger Raum verschwendet. Viel Platz entsteht durch den hohen Kniestock von 149 cm. - Sie finden hier 2 gleich große Kinderzimmer, 1 Elternschlafzimmer sowie ein voll ausgestattetes Bad mit bodengleicher Dusche.
Das Haus wird Ihnen schüsselfertig übergeben.
Auch im Obergeschoss wird kein unnötiger Raum verschwendet. Viel Platz entsteht durch den hohen Kniestock von 149 cm. - Sie finden hier 2 gleich große Kinderzimmer, 1 Elternschlafzimmer sowie ein voll ausgestattetes Bad mit bodengleicher Dusche.
Das Haus wird Ihnen schüsselfertig übergeben.
Lage
56355 OberbachheimOberbachheim
Der aktuelle durchschnittliche Quadratmeterpreis beträgt 3.005,23 €/m² in Oberbachheim.
Mit Immobilienpreisen
Oberbachheim vergleichen
Was kostet dein Umzug?
Du planst einen Umzug? Finde jetzt die günstigste Umzugsfirma in deiner Region!
Umzugskosten berechnen Schütze dich vor Betrug!
Leiste keinerlei Zahlung im Vorraus!
Beachte unsere Sicherheitshinweise zum Thema Immobilienbetrug und lies, woran du solche Anzeigen erkennen kannst und wie du dich vor Betrügern schützt.
Anzeige melden Beachte unsere Sicherheitshinweise zum Thema Immobilienbetrug und lies, woran du solche Anzeigen erkennen kannst und wie du dich vor Betrügern schützt.
*Anzeige
Ähnliche Häuser bei ImmoScout24
Oberbachheim
- Kaufpreis
- 785.000 €
- Zimmer
- 5 Zi.
- Fläche
- 130 Zi.
Anbieter
Weitere Ergebnisse für:
Wohnungen
Oberbachheim;
Immobilien
Oberbachheim;
Haus mieten
Oberbachheim;
WG Zimmer
Oberbachheim;
Wohnung
Oberbachheim kaufen;
Haus kaufen
Oberbachheim;
Immobilienpreise
Oberbachheim wohnungsboerse.net übernimmt keine Gewähr für von Dritten gemachte Angaben