
Erdgeschosswohnung in Schwandorf
Neubau: Moderne 3-Zimmer-Wohnung mit Garten
auf der Karte ansehenUmzugskosten berechnen
- Kaufpreis
- 325.000 €
- Zimmer
- 3
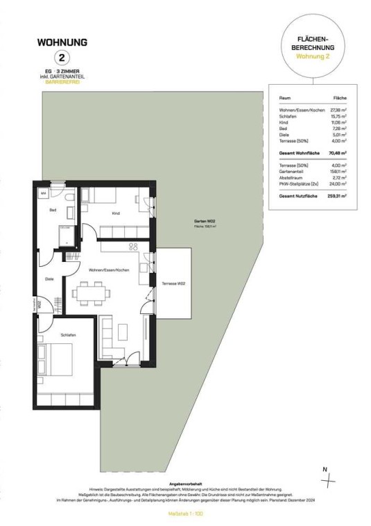
- Fläche
- 70.48 m²
130 Aufrufe
Objekt-ID: 36283932
Objekttyp: | Erdgeschosswohnung |
Zimmer: | 3 |
Größe: | 70.48 m² |
Verfügbar ab: | Sommer 2025 |
Preise & Kosten
Kaufpreis: | 325.000 € |
Jetzt kostenlos Finanzierungsangebot anfragen! |
Provision: | Nein |
Preis/m²: | 4.611,24 € |
Mit Immobilienpreisen Schwandorf vergleichen |
Immobilie
Balkon
Garten
Neubau
Behindertengerecht
Befeuerungsart: | Umweltwärme |
Energieausweis: | Bedarfsausweis |
Objektbeschreibung
Im Baugebiet "Hasenbuckel Ost" im Stadtteil Fronberg entsteht ein Mehrfamilien-Bungalow mit insgesamt nur 4 Eigentumswohnungen auf einer Etage.
Angeboten wird die Wohneinheit Nr. 2.
Die Wohnung ist barrierefrei.
Hier genießen Sie die Vorteile einer kleinen Wohnungseigentümergemeinschaft.
Die nachhaltige Planungsvariante erlaubt Ihnen eine ganzheitlich ebenerdige Nutzung des Gebäudes samt Außenanlagen. So profitieren Sie auch im hohen Alter von kurzen und ebenerdigen Wegen im und außerhalb des Hauses.
Jede Wohnung verfügt im Hauszugangsbereich einen eigenen Abstellraum. Weiter verfügt die Wohnung über mindestens einen Außenstellplatz.
Die Lage des Grundstückes ermöglicht Ihnen einen außergewöhnlichen Ausblick ins Weite. Gleichzeitig profitieren Sie von einer hervorragenden Baugebietsstruktur mit ausnahmslos neuen Häusern.
Angeboten wird die Wohneinheit Nr. 2.
Die Wohnung ist barrierefrei.
Hier genießen Sie die Vorteile einer kleinen Wohnungseigentümergemeinschaft.
Die nachhaltige Planungsvariante erlaubt Ihnen eine ganzheitlich ebenerdige Nutzung des Gebäudes samt Außenanlagen. So profitieren Sie auch im hohen Alter von kurzen und ebenerdigen Wegen im und außerhalb des Hauses.
Jede Wohnung verfügt im Hauszugangsbereich einen eigenen Abstellraum. Weiter verfügt die Wohnung über mindestens einen Außenstellplatz.
Die Lage des Grundstückes ermöglicht Ihnen einen außergewöhnlichen Ausblick ins Weite. Gleichzeitig profitieren Sie von einer hervorragenden Baugebietsstruktur mit ausnahmslos neuen Häusern.
Lage
Mitterweg92421 Schwandorf
Schwandorf
Der aktuelle durchschnittliche Quadratmeterpreis beträgt 3.559,94 €/m² in Schwandorf.
Mit Immobilienpreisen
Schwandorf vergleichen
Was kostet dein Umzug?
Du planst einen Umzug? Finde jetzt die günstigste Umzugsfirma in deiner Region!
Umzugskosten berechnen Schütze dich vor Betrug!
Leiste keinerlei Zahlung im Vorraus!
Beachte unsere Sicherheitshinweise zum Thema Immobilienbetrug und lies, woran du solche Anzeigen erkennen kannst und wie du dich vor Betrügern schützt.
Anzeige melden Beachte unsere Sicherheitshinweise zum Thema Immobilienbetrug und lies, woran du solche Anzeigen erkennen kannst und wie du dich vor Betrügern schützt.
*Anzeige

Ähnliche Immobilien bei ImmoScout24
Schwandorf
- Kaufpreis
- 275.000 €
- Zimmer
- 3 Zi.
- Fläche
- 65 Zi.
Anbieter
Weitere Ergebnisse für:
Wohnungen
Schwandorf;
Immobilien
Schwandorf;
Haus mieten
Schwandorf;
WG Zimmer
Schwandorf;
Wohnung
Schwandorf kaufen;
Haus kaufen
Schwandorf;
Immobilienpreise
Schwandorf Mietspiegel
Schwandorf wohnungsboerse.net übernimmt keine Gewähr für von Dritten gemachte Angaben