
Maisonette-Wohnung in Düsseldorf-Friedrichstadt
- Wohnungsentwicklung - ehemalige Gewerbefläche zu großzügigen Wohnungen mit Gartenanteil
auf der Karte ansehenUmzugskosten berechnen
- Kaufpreis
- 530.000 €
- Zimmer
- 10
- Fläche
- 345.04 m²
83 Aufrufe
Objekt-ID: 36272746
| Objekttyp: | Maisonette-Wohnung |
| Zimmer: | 10 |
| Größe: | 345.04 m² |
| Verfügbar ab: | sofort |
Preise & Kosten
| Kaufpreis: | 530.000 € |
| Jetzt kostenlos Finanzierungsangebot anfragen! | |
| Provision: | Ja |
| Preis/m²: | 1.536,05 € |
| Mit Immobilienpreisen Düsseldorf vergleichen | |
Immobilie
Garten
Keller
| Baujahr: | 1957 |
| Befeuerungsart: | Zentralheizung |
| Energieausweis: | Energieausweis in Vorbereitung |
Objektbeschreibung
Willkommen zu diesem exklusiven Immobilienangebot in Düsseldorf Oberbilk. Bei dem Objekt handelt es sich um ein ehemaliges Theater, welches in Wohnen umgewandelt werden kann. Die entsprechende Nutzungsänderung legen wir Ihnen gern um gegebenen Zeitpunkt vor. Die Flächen erstrecken sich über das gesamte Erdgeschoss, des schönen Mehrfamilienhauses, sowie dem Untergeschoss, welches durch einen Lichtschacht natürlich beleuchtet ist. Gern unterbreiten wir mit Ihnen zusammen ein Angebot zur vollständigen Modernisierung und Sanierung. Dieses Angebot ist für Sie nicht bindend. Sie können Ihre Wünsche frei entfalten und unser Team steht Ihnen zur Verfügung.
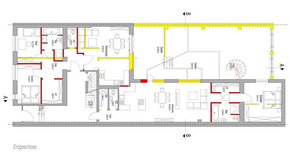
Die Einheit verfügt über insgesamt 10 Zimmer, die Ihnen vielfältige Nutzungsmöglichkeiten bieten. Ob als Schlaf-, Arbeits-, Kinderzimmer oder Hobbyraum – hier haben Sie ausreichend Platz, um Ihren individuellen Bedürfnissen nachzukommen. Die hohen Decken der Räume schaffen eine angenehme Wohnatmosphäre. Trotz der direkten Innenstadtlage befindet sich die Wohnung in einer ruhigen Seitenstraße.
Im Badezimmer findet sich ausreichend Platz für eine Badewanne oder auch eine große begehbare Dusche.
Die Lage in Oberbilk ist äußerst vorteilhaft. Sie profitieren von einer hervorragenden Anbindung an öffentliche Verkehrsmittel, Einkaufsmöglichkeiten und Freizeitangeboten. Der nahegelegene Volkspark bietet Gelegenheit für erholsame Spaziergänge und sportliche Aktivitäten im Freien. Die direkte Umgebung ist mit Cafés und Restaurant als aufstrebendes InStyle Viertel bekannt.
Die Einheit verfügt über insgesamt 10 Zimmer, die Ihnen vielfältige Nutzungsmöglichkeiten bieten. Ob als Schlaf-, Arbeits-, Kinderzimmer oder Hobbyraum – hier haben Sie ausreichend Platz, um Ihren individuellen Bedürfnissen nachzukommen. Die hohen Decken der Räume schaffen eine angenehme Wohnatmosphäre. Trotz der direkten Innenstadtlage befindet sich die Wohnung in einer ruhigen Seitenstraße.
Im Badezimmer findet sich ausreichend Platz für eine Badewanne oder auch eine große begehbare Dusche.
Die Lage in Oberbilk ist äußerst vorteilhaft. Sie profitieren von einer hervorragenden Anbindung an öffentliche Verkehrsmittel, Einkaufsmöglichkeiten und Freizeitangeboten. Der nahegelegene Volkspark bietet Gelegenheit für erholsame Spaziergänge und sportliche Aktivitäten im Freien. Die direkte Umgebung ist mit Cafés und Restaurant als aufstrebendes InStyle Viertel bekannt.
Lage
40215 DüsseldorfDüsseldorf Friedrichstadt
Der aktuelle durchschnittliche Quadratmeterpreis beträgt 8.939,73 €/m² in Düsseldorf - Friedrichstadt. Der durchschnittliche Immobilienpreis in Düsseldorf liegt derzeit bei 5.262,64 €/m².
Mit Immobilienpreisen
Düsseldorf vergleichen
Was kostet dein Umzug?
Du planst einen Umzug? Finde jetzt die günstigste Umzugsfirma in deiner Region!
Umzugskosten berechnen Schütze dich vor Betrug!
Leiste keinerlei Zahlung im Vorraus!
Beachte unsere Sicherheitshinweise zum Thema Immobilienbetrug und lies, woran du solche Anzeigen erkennen kannst und wie du dich vor Betrügern schützt.
Anzeige melden Beachte unsere Sicherheitshinweise zum Thema Immobilienbetrug und lies, woran du solche Anzeigen erkennen kannst und wie du dich vor Betrügern schützt.
*Anzeige
Ähnliche Immobilien bei ImmoScout24
Düsseldorf-Friedrichstadt
- Kaufpreis
- 480.000 €
- Zimmer
- 10 Zi.
- Fläche
- 340 Zi.
Anbieter
Weitere Ergebnisse für:
Wohnungen
Düsseldorf;
Immobilien
Düsseldorf;
Haus mieten
Düsseldorf;
WG Zimmer
Düsseldorf;
Wohnung
Düsseldorf kaufen;
Haus kaufen
Düsseldorf;
Immobilienpreise
Düsseldorf Mietspiegel
Düsseldorf wohnungsboerse.net übernimmt keine Gewähr für von Dritten gemachte Angaben