
Etagenwohnung in Hofheim am Taunus
Stilvolle, gepflegte 4-Raum-Wohnung mit gehobener Innenausstattung mit EBK in Hofheim am Taunus
auf der Karte ansehenUmzugskosten berechnen
- Kaufpreis
- 570.000 €
- Zimmer
- 4
- Fläche
- 106 m²
22 Aufrufe
Objekt-ID: 36055829
Objekttyp: | Etagenwohnung |
Zimmer: | 4 |
Größe: | 106.00 m² |
Etage: | 2 von 3 |
Verfügbar ab: | keine Angabe |
Preise & Kosten
Kaufpreis: | 570.000 € |
Jetzt kostenlos Finanzierungsangebot anfragen! |
Provision: | Nein |
Preis/m²: | 5.377,36 € |
Mit Immobilienpreisen Hofheim am Taunus vergleichen |
Immobilie
Balkon
Einbauküche
Aufzug
Keller
Behindertengerecht
Baujahr: | 2014 |
Befeuerungsart: | Gas |
Energieausweis: | Bedarfsausweis |
Endenergiebedarf: | 45,00 kWh/(m²*a) |
Objektbeschreibung
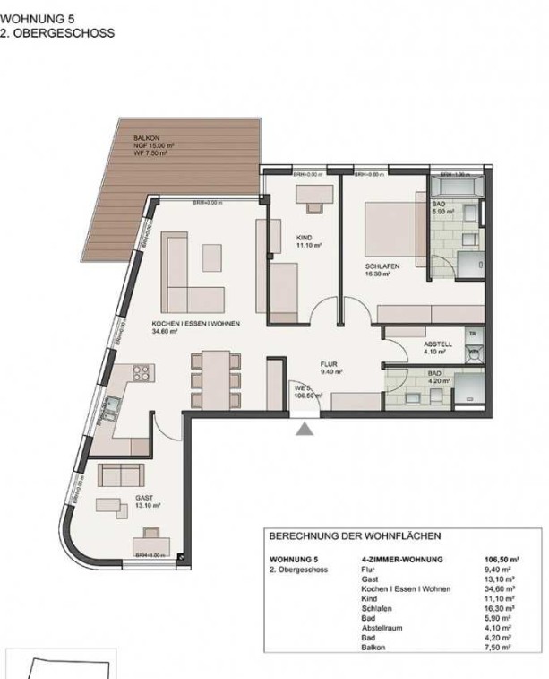
Diese ansprechende Etagenwohnung im Zentrum Hofheims liegt in einem Ende 2014 fertiggestellten (Erstbezug Dezember 2014) modernen Wohngebäude mit 7 Parteien. Die Wohnung kann mit Wirkung ab dem 1. Januar 2025 erworben werden. Die Wohnung ist derzeit an ein junges Paar vermietet, die Mieter suchen aber ein eigenes, größeres Objekt. Die Wohnung befindet sich in der 2. Etage. Neben dem Treppenhaus sind alle Etagen (inkl. UG/Tiefgarage) mit einem Personenaufzug zu erreichen. Mit einem großzügigen Balkon mit Blick ins Grüne und auf den Schwarzbach verfügt diese Immobilie über einen Ort, an dem Sie trotz der zentralen Lage die Naturidylle genießen können. Die Wohnung ist mit vier Zimmern, zwei Badezimmern und einer Abstellkammer mit Waschmaschinenanschluss ausgestattet. Die Räume sind auf ca. 106qm verteilt und lassen viel Spielraum für Paare oder kleine Familien. Den Wohnkomfort erhöhen zusätzlich die hochwertige Einbauküche, zwei sehr hochwertige Einbauschränke (Hedegger) und eine begehbare Garderobe. Über die Garderobe ist das Bad en suite zu erreichen. Der Balkon ist mit einer elektrisch steuerbaren Markise mit integrierter Beleuchtung und Windsensor ausgestattet. Ein Kellerraum bietet weiteren Stauraum.
Lage
Hattersheimer Straße65719 Hofheim am Taunus
Hofheim am Taunus
Der aktuelle durchschnittliche Quadratmeterpreis beträgt 5.141,45 €/m² in Hofheim am Taunus.
Mit Immobilienpreisen
Hofheim-am-Taunus vergleichen
Was kostet dein Umzug?
Du planst einen Umzug? Finde jetzt die günstigste Umzugsfirma in deiner Region!
Umzugskosten berechnen Schütze dich vor Betrug!
Leiste keinerlei Zahlung im Vorraus!
Beachte unsere Sicherheitshinweise zum Thema Immobilienbetrug und lies, woran du solche Anzeigen erkennen kannst und wie du dich vor Betrügern schützt.
Anzeige melden Beachte unsere Sicherheitshinweise zum Thema Immobilienbetrug und lies, woran du solche Anzeigen erkennen kannst und wie du dich vor Betrügern schützt.
*Anzeige

Ähnliche Immobilien bei ImmoScout24
Hofheim am Taunus
- Kaufpreis
- 520.000 €
- Zimmer
- 4 Zi.
- Fläche
- 100 Zi.
Weitere Ergebnisse für:
Wohnungen
Hofheim am Taunus;
Immobilien
Hofheim am Taunus;
Haus mieten
Hofheim am Taunus;
WG Zimmer
Hofheim am Taunus;
Wohnung
Hofheim am Taunus kaufen;
Haus kaufen
Hofheim am Taunus;
Immobilienpreise
Hofheim am Taunus Mietspiegel
Hofheim am Taunus wohnungsboerse.net übernimmt keine Gewähr für von Dritten gemachte Angaben