Dachgeschosswohnung in München-Sendling-Westpark
freie, sonnige 2-Zimmer-Dachgeschosswohnung mit grosser Westloggia
auf der Karte ansehenUmzugskosten berechnen
- Kaufpreis
- 495.000 €
- Zimmer
- 2
- Fläche
- 63 m²
1240 Aufrufe
Objekt-ID: 35721811
| Objekttyp: | Dachgeschosswohnung |
| Zimmer: | 2 |
| Größe: | 63.00 m² |
| Etage: | 3 |
| Verfügbar ab: | ab sofort |
Preise & Kosten
| Kaufpreis: | 495.000 € |
| Jetzt kostenlos Finanzierungsangebot anfragen! | |
| Garage/Stellplatz Kaufpreis: |
18.000 € |
| Hausgeld: | 420 € |
| Preis/m²: | 7.857,14 € |
| Mit Immobilienpreisen München vergleichen | |
Immobilie
Loggia
Einbauküche
Aufzug
Keller
Tiere erlaubt
Teilmöbliert
| Baujahr: | 1988 |
| Objektzustand: | teilweise renoviert |
| Befeuerungsart: | Gas |
| Energieausweis: | Energieausweis in Vorbereitung |
| Energieverbrauchskennwert: | 106,00 kWh/(m²*a) |
| Energieverbrauch für Warmwasser enthalten? | Ja |
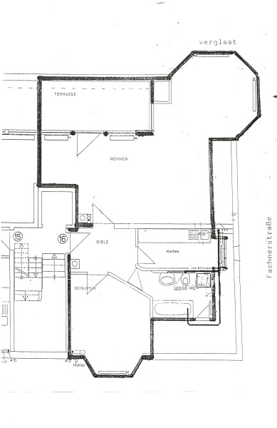
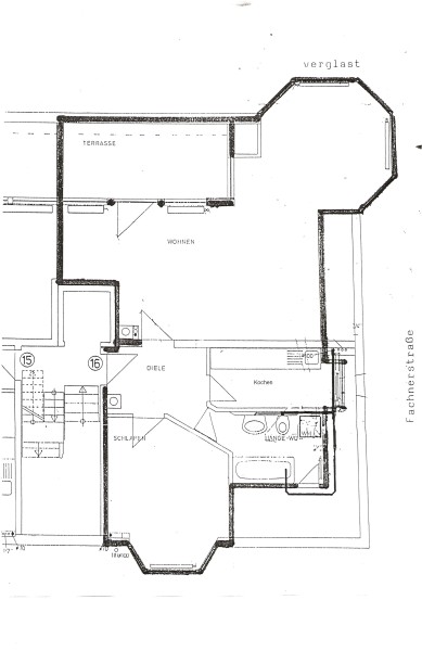
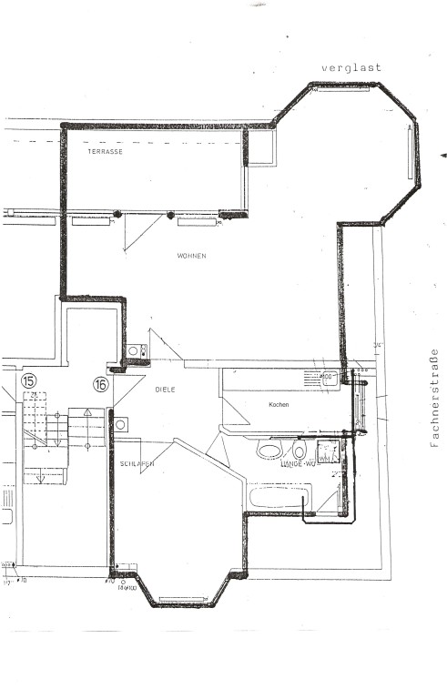
Objektbeschreibung
Die kleine neuwertige und gepflegte Wohnanlage mit insgesamt nur 3 Etagen wurde 1988 erstellt und durch laufende Pflege und Instandhaltungen in sehr gutem Zustand gehalten. Das Objekt besticht durch seine besondere Architektur mit den großen Erkern und Türmchen.
Die Wohnung ist belichtet nach Süd-West und Ost. Durch die großen Fenster ist die Wohnung sehr hell und sonnig. Das großzügige Wohnzimmer mit der herrlichen Loggia nach Südwesten ausgerichtet ist das absolute Highlight der Wohnung.
Das Schlafzimmer verfügt über einen geräumigen Einbauschrank, Badezimmer mit Fenster und Waschmaschinenanschluss.
Die Wohnung ist zentral und verkehsgünstig gelegen. Der Westpark ist in 5 Gehminuten zu erreichen, ebenso alle Geschäfte des täglichen Bedarfs.
Die Wohnung ist belichtet nach Süd-West und Ost. Durch die großen Fenster ist die Wohnung sehr hell und sonnig. Das großzügige Wohnzimmer mit der herrlichen Loggia nach Südwesten ausgerichtet ist das absolute Highlight der Wohnung.
Das Schlafzimmer verfügt über einen geräumigen Einbauschrank, Badezimmer mit Fenster und Waschmaschinenanschluss.
Die Wohnung ist zentral und verkehsgünstig gelegen. Der Westpark ist in 5 Gehminuten zu erreichen, ebenso alle Geschäfte des täglichen Bedarfs.
Lage
Westendstrasse80686 München
München Sendling-Westpark
Der aktuelle durchschnittliche Quadratmeterpreis beträgt 9.183,75 €/m² in München - Sendling-Westpark. Der durchschnittliche Immobilienpreis in München liegt derzeit bei 8.977,21 €/m².
Mit Immobilienpreisen
München vergleichen
Was kostet dein Umzug?
Du planst einen Umzug? Finde jetzt die günstigste Umzugsfirma in deiner Region!
Umzugskosten berechnen Schütze dich vor Betrug!
Leiste keinerlei Zahlung im Vorraus!
Beachte unsere Sicherheitshinweise zum Thema Immobilienbetrug und lies, woran du solche Anzeigen erkennen kannst und wie du dich vor Betrügern schützt.
Anzeige melden Beachte unsere Sicherheitshinweise zum Thema Immobilienbetrug und lies, woran du solche Anzeigen erkennen kannst und wie du dich vor Betrügern schützt.
*Anzeige
Ähnliche Immobilien bei ImmoScout24
München-Sendling-Westpark
- Kaufpreis
- 445.000 €
- Zimmer
- 2 Zi.
- Fläche
- 55 Zi.
Anbieter
privater AnbieterWeitere Ergebnisse für:
Wohnungen
München;
Immobilien
München;
Haus mieten
München;
WG Zimmer
München;
Wohnung
München kaufen;
Haus kaufen
München;
Immobilienpreise
München Mietspiegel
München wohnungsboerse.net übernimmt keine Gewähr für von Dritten gemachte Angaben











