
Immobilie in Esslingen am Neckar
Willkommen in Ihrer charmanten 4 Zimmerwohnung in historischem Gebäude mit traumhafter Gartenoase
auf der Karte ansehenUmzugskosten berechnen
- Kaufpreis
- 682.989 €
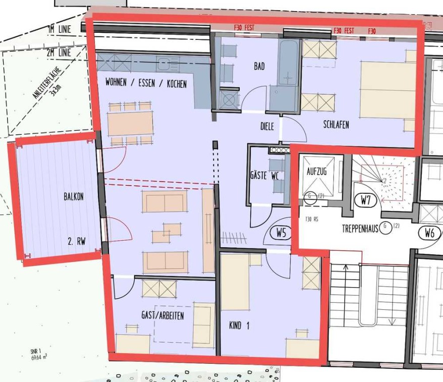
- Zimmer
- 4
- Fläche
- 94.84 m²
54 Aufrufe
Objekt-ID: 35510452
| Objekttyp: | Keine Angabe |
| Zimmer: | 4 |
| Größe: | 94.84 m² |
| Etage: | 2 von 3 |
| Verfügbar ab: | keine Angabe |
Preise & Kosten
| Kaufpreis: | 682.989 € |
| Jetzt kostenlos Finanzierungsangebot anfragen! | |
| Provision: | Nein |
| Preis/m²: | 7.201,49 € |
| Mit Immobilienpreisen Esslingen am Neckar vergleichen | |
Immobilie
Balkon
Garten
Aufzug
Objektbeschreibung
Das Gebäude Adlerstr.2 ist als erhaltenswertes Gebäude deklariert und steht unter Ensembleschutz.
Das Gebäude wird kernsaniert dadurch gibt es eine interessante, erhöhte, steuerliche Abschreibungsmöglichkeit.
Des Weitern kann zum jetzigen Zeitpunkt ein Teil der Sanierung über KfW-Mittel finanziert werden.
Das Gebäude erhält einen Aufzug.
Zu dem Gebäude gehört ein historischer 10 ar große, einmalige Gartenanlage / Gartenoase in der Esslinger Innenstadt.
Auf Wunsch können hier "Gartenparzellen" als Sondernutzungsrecht erworben werden.
Des Weiteren entstehen zwei überdachte Doppelparker mit Lademöglichkeit für E-Autos sowie einem überdachten Fahrradstellplatz ebenfalls mit Lademöglichkeit.
Das Gebäude wird kernsaniert dadurch gibt es eine interessante, erhöhte, steuerliche Abschreibungsmöglichkeit.
Des Weitern kann zum jetzigen Zeitpunkt ein Teil der Sanierung über KfW-Mittel finanziert werden.
Das Gebäude erhält einen Aufzug.
Zu dem Gebäude gehört ein historischer 10 ar große, einmalige Gartenanlage / Gartenoase in der Esslinger Innenstadt.
Auf Wunsch können hier "Gartenparzellen" als Sondernutzungsrecht erworben werden.
Des Weiteren entstehen zwei überdachte Doppelparker mit Lademöglichkeit für E-Autos sowie einem überdachten Fahrradstellplatz ebenfalls mit Lademöglichkeit.
Lage
Adlerstraße73728 Esslingen am Neckar
Esslingen am Neckar
Der aktuelle durchschnittliche Quadratmeterpreis beträgt 4.428,59 €/m² in Esslingen am Neckar.
Mit Immobilienpreisen
Esslingen-am-Neckar vergleichen
Was kostet dein Umzug?
Du planst einen Umzug? Finde jetzt die günstigste Umzugsfirma in deiner Region!
Umzugskosten berechnen Schütze dich vor Betrug!
Leiste keinerlei Zahlung im Vorraus!
Beachte unsere Sicherheitshinweise zum Thema Immobilienbetrug und lies, woran du solche Anzeigen erkennen kannst und wie du dich vor Betrügern schützt.
Anzeige melden Beachte unsere Sicherheitshinweise zum Thema Immobilienbetrug und lies, woran du solche Anzeigen erkennen kannst und wie du dich vor Betrügern schützt.
*Anzeige
Ähnliche Immobilien bei ImmoScout24
Esslingen am Neckar
- Kaufpreis
- 635.000 €
- Zimmer
- 4 Zi.
- Fläche
- 85 Zi.
Anbieter
Weitere Ergebnisse für:
Wohnungen
Esslingen am Neckar;
Immobilien
Esslingen am Neckar;
Haus mieten
Esslingen am Neckar;
WG Zimmer
Esslingen am Neckar;
Wohnung
Esslingen am Neckar kaufen;
Haus kaufen
Esslingen am Neckar;
Immobilienpreise
Esslingen am Neckar Mietspiegel
Esslingen am Neckar wohnungsboerse.net übernimmt keine Gewähr für von Dritten gemachte Angaben