Eigentumswohnung in Ruhstorf
Objekt 2 Hochwertige 2 ZKB, 3,25% Netto-Rendite, langfristig Index-vermietet,
auf der Karte ansehenUmzugskosten berechnen
- Kaufpreis
- 120.000 €
- Zimmer
- 2
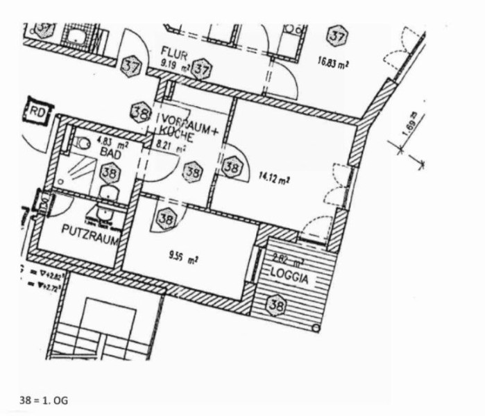
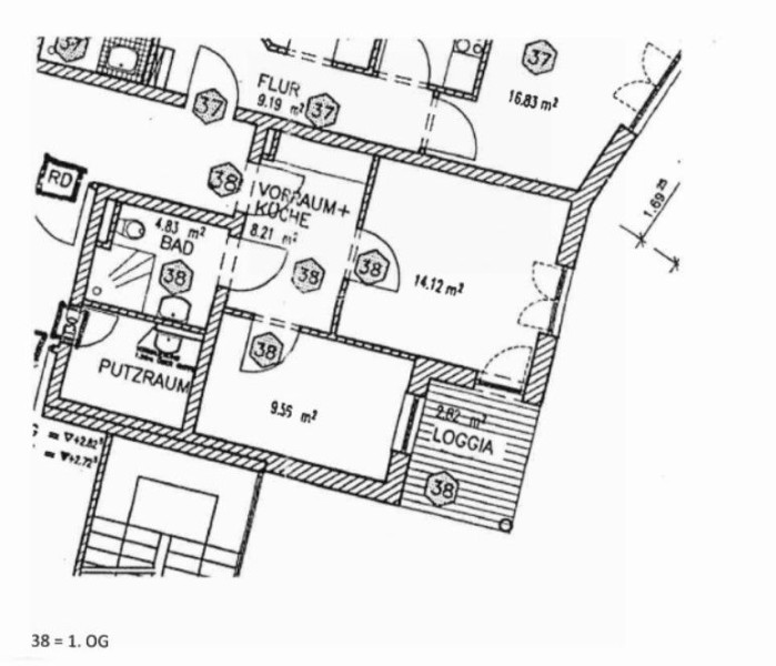
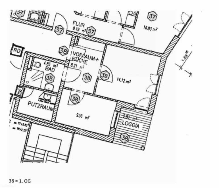
- Fläche
- 38 m²
880 Aufrufe
Objekt-ID: 35301137
| Objekttyp: | Eigentumswohnung |
| Zimmer: | 2 |
| Größe: | 38.00 m² |
| Etage: | 1 |
| Renditeobjekt: | , vermietet |
Preise & Kosten
| Kaufpreis: | 120.000 € |
| Jetzt kostenlos Finanzierungsangebot anfragen! | |
| Hausgeld: | 51 € |
| Preis/m²: | 3.157,89 € |
| Mit Immobilienpreisen Ruhstorf vergleichen | |
Immobilie
Möbliert
Balkon
Garten
Loggia
Einbauküche
Aufzug
Keller
Neubau
Tiere erlaubt
Behindertengerecht
| Baujahr: | 1995 |
| Objektzustand: | gepflegt |
| Befeuerungsart: | Öl |
| Energieausweis: | Energieausweis in Vorbereitung |
| Energieverbrauchskennwert: | 125,00 kWh/(m²*a) |
| Energieverbrauch für Warmwasser enthalten? | Ja |
Objektbeschreibung
Brutto-Mieteinnahmen pro Jahr: 4.520,76
Netto-Mieteinnahmen pro Jahr: 3,908,76
Guten Tag,
bei dem Objekt handelt es sich um eine hochwertige 2 Zimmerwohnung mit Balkon,
gebaut in massiver Ziegelbauweise, Energiestandard analog KW-Standard 60.
Diese Wohnung ist langfristig an eine sehr erfolgreiche Altenheim-Gesellschaft vermietet und die Laufzeit des Index-Mietvertrages, der sich jährlich analog der Inflationskosten erhöht, beträgt noch 15 Jahre bis 2040,
Die Lage ist idyllisch, die Umgebung hochwertig und sehr ruhig. Natur pur.
Ein Edeka ist 500m entfernt, der Bahnhof 900m und stündlich fährt ein Zug nach Passau oder München. Es gibt im Umkreis von weniger als 1 km sechs Restaurants, eine Bäckerei, 3 Imbisse und ein Hotel.
Es stehen keine Renovierungskosten an. Der E-Herd wurde im Mai diesen Jahres gegen ein hochwertiges Modell ausgetauscht,
Ich habe die Wohnung von meinem Vater geerbt, der sie 2009 erworben hat.
Die Wohnung kann auch selber bezogen werden.
Ich verkaufe diese Wohnung und noch eine weitere im gleichen Haus, weil ich mir selber ein Haus bauen möchte.
Netto-Mieteinnahmen pro Jahr: 3,908,76
Guten Tag,
bei dem Objekt handelt es sich um eine hochwertige 2 Zimmerwohnung mit Balkon,
gebaut in massiver Ziegelbauweise, Energiestandard analog KW-Standard 60.
Diese Wohnung ist langfristig an eine sehr erfolgreiche Altenheim-Gesellschaft vermietet und die Laufzeit des Index-Mietvertrages, der sich jährlich analog der Inflationskosten erhöht, beträgt noch 15 Jahre bis 2040,
Die Lage ist idyllisch, die Umgebung hochwertig und sehr ruhig. Natur pur.
Ein Edeka ist 500m entfernt, der Bahnhof 900m und stündlich fährt ein Zug nach Passau oder München. Es gibt im Umkreis von weniger als 1 km sechs Restaurants, eine Bäckerei, 3 Imbisse und ein Hotel.
Es stehen keine Renovierungskosten an. Der E-Herd wurde im Mai diesen Jahres gegen ein hochwertiges Modell ausgetauscht,
Ich habe die Wohnung von meinem Vater geerbt, der sie 2009 erworben hat.
Die Wohnung kann auch selber bezogen werden.
Ich verkaufe diese Wohnung und noch eine weitere im gleichen Haus, weil ich mir selber ein Haus bauen möchte.
Lage
Nikolausstr,94099 Ruhstorf
Ruhstorf
Der aktuelle durchschnittliche Quadratmeterpreis beträgt 2.699,97 €/m² in Ruhstorf.
Mit Immobilienpreisen
Ruhstorf vergleichen
Was kostet dein Umzug?
Du planst einen Umzug? Finde jetzt die günstigste Umzugsfirma in deiner Region!
Umzugskosten berechnen Schütze dich vor Betrug!
Leiste keinerlei Zahlung im Vorraus!
Beachte unsere Sicherheitshinweise zum Thema Immobilienbetrug und lies, woran du solche Anzeigen erkennen kannst und wie du dich vor Betrügern schützt.
Anzeige melden Beachte unsere Sicherheitshinweise zum Thema Immobilienbetrug und lies, woran du solche Anzeigen erkennen kannst und wie du dich vor Betrügern schützt.
*Anzeige
Ähnliche Immobilien bei ImmoScout24
Ruhstorf
- Kaufpreis
- 70.000 €
- Zimmer
- 2 Zi.
- Fläche
- 30 Zi.
Anbieter
privater AnbieterWeitere Ergebnisse für:
Wohnungen
Ruhstorf;
Immobilien
Ruhstorf;
Haus mieten
Ruhstorf;
WG Zimmer
Ruhstorf;
Wohnung
Ruhstorf kaufen;
Haus kaufen
Ruhstorf;
Immobilienpreise
Ruhstorf Mietspiegel
Ruhstorf wohnungsboerse.net übernimmt keine Gewähr für von Dritten gemachte Angaben










