Immobilie in Ludwigshafen am Rhein-Pfingstweide
Eigentumswohnung Ludwigshafen Pfingstweide
auf der Karte ansehenUmzugskosten berechnen
- Kaufpreis
- 215.000 €
- Zimmer
- 4
- Fläche
- 73.5 m²
630 Aufrufe
Objekt-ID: 32699528
| Objekttyp: | Wohnung |
| Zimmer: | 4 |
| Größe: | 73.50 m² |
| Etage: | 10 |
| Verfügbar ab: | 01.08.2023 |
Preise & Kosten
| Kaufpreis: | 215.000 € |
| Jetzt kostenlos Finanzierungsangebot anfragen! | |
| Hausgeld: | 280 € |
| Preis/m²: | 2.925,17 € |
| Mit Immobilienpreisen Ludwigshafen am Rhein vergleichen | |
Immobilie
Balkon
Aufzug
Keller
Tiere erlaubt
Behindertengerecht
| Baujahr: | 1973 |
| Objektzustand: | teilweise renoviert |
| Befeuerungsart: | Fernwärme |
| Energieausweis: | Energieausweis in Vorbereitung |
| Energieverbrauchskennwert: | 90,00 kWh/(m²*a) |
| Energieverbrauch für Warmwasser enthalten? | Ja |
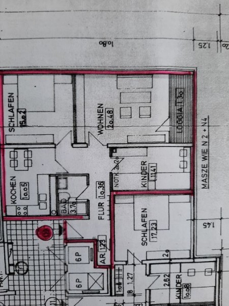
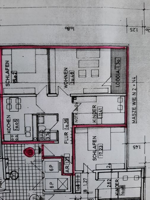
Objektbeschreibung
Die Wohnung befindet sich im 10. OG eines 12-geschossigen Mehrfamilienhauses. Sie wurde vor 20 Jahren mit einem neuen Badezimmer (gepflegter Zustand) und hochwertigen Fliesen ausgestattet. Badezimmer mit Wanne und Duschabtrennung, weiße Kunststoffenster mit Isolierverglasung incl. Rolläden, Heizung erfolgt über Fernwärme. Ein Energieausweis ist vorhanden.
Kindergarten gegenüber, Ärzte, Apotheke und Einkaufsmöglichkeiten in unmittelbarer Nähe.
Eine Renovierung nach individuellen Vorstellungen ist erforderlich (evtl. Rückbau der eingezogenen Wände zur Unterteilung der Wohn- und Schlafräume - z.Zt. 1 x Elternschlafzimmer, 2 x Kinderzimmer)
Barrierefreier Zugang zur Fußgängerüberführung zum Pfingstweide-Center - Fußweg ca. 150 Meter)
Kindergarten gegenüber, Ärzte, Apotheke und Einkaufsmöglichkeiten in unmittelbarer Nähe.
Eine Renovierung nach individuellen Vorstellungen ist erforderlich (evtl. Rückbau der eingezogenen Wände zur Unterteilung der Wohn- und Schlafräume - z.Zt. 1 x Elternschlafzimmer, 2 x Kinderzimmer)
Barrierefreier Zugang zur Fußgängerüberführung zum Pfingstweide-Center - Fußweg ca. 150 Meter)
Lage
Brüsseler Str.67069 Ludwigshafen am Rhein
Ludwigshafen am Rhein Pfingstweide
Der aktuelle durchschnittliche Quadratmeterpreis beträgt 2.532,55 €/m² in Ludwigshafen am Rhein - Pfingstweide. Der durchschnittliche Immobilienpreis in Ludwigshafen am Rhein liegt derzeit bei 2.855,52 €/m².
Mit Immobilienpreisen
Ludwigshafen am Rhein vergleichen
Was kostet dein Umzug?
Du planst einen Umzug? Finde jetzt die günstigste Umzugsfirma in deiner Region!
Umzugskosten berechnen Schütze dich vor Betrug!
Leiste keinerlei Zahlung im Vorraus!
Beachte unsere Sicherheitshinweise zum Thema Immobilienbetrug und lies, woran du solche Anzeigen erkennen kannst und wie du dich vor Betrügern schützt.
Anzeige melden Beachte unsere Sicherheitshinweise zum Thema Immobilienbetrug und lies, woran du solche Anzeigen erkennen kannst und wie du dich vor Betrügern schützt.
*Anzeige
Ähnliche Immobilien bei ImmoScout24
Ludwigshafen am Rhein-Pfingstweide
- Kaufpreis
- 165.000 €
- Zimmer
- 4 Zi.
- Fläche
- 65 Zi.
Anbieter
privater AnbieterWeitere Ergebnisse für:
Wohnungen
Ludwigshafen am Rhein;
Immobilien
Ludwigshafen am Rhein;
Haus mieten
Ludwigshafen am Rhein;
WG Zimmer
Ludwigshafen am Rhein;
Wohnung
Ludwigshafen am Rhein kaufen;
Haus kaufen
Ludwigshafen am Rhein;
Immobilienpreise
Ludwigshafen am Rhein Mietspiegel
Ludwigshafen am Rhein wohnungsboerse.net übernimmt keine Gewähr für von Dritten gemachte Angaben















