Apartmenthaus zum kaufen in Dessau-Roßlau-Süd
Ca. 2.600qm Baugrund, für 7 WE, mit Waldblick
auf der Karte ansehenUmzugskosten berechnen
- Kaufpreis
- 1 €
- Zimmer
- 14
- Fläche
- 594.86 m²
970 Aufrufe
Objekt-ID: 29240946
| Objekttyp: | Apartmenthaus |
| Zimmer: | 14 |
| Größe: | 594.86 m² |
| Grundstücksfläche: | 2.600,00 m² |
| Renditeobjekt: |
Preise & Kosten
| Kaufpreis: | 1 € |
| Jetzt kostenlos Finanzierungsangebot anfragen! | |
| Preis/m²: | 0,00 € |
| Mit Immobilienpreisen Dessau-Roßlau vergleichen | |
Immobilie
Terrasse
Garten
Wintergarten
Neubau
Behindertengerecht
| Baujahr: | 2022 |
| Befeuerungsart: | Umweltwärme |
| Energieausweis: | Energieausweis in Vorbereitung |
Objektbeschreibung
ca. 2.600qm Baugrund, für 7 WE, mit Waldblick
Zukunftsfähig Investieren in ein Baugrundstück für 7 barrierefreie Wohnungen mit Terrasse und Garten je Wohnung (optional + Penthouse im OG)
Standort: ca. 11 Autominuten südlich von Dessau
Grundstück:
Baugrund ca. 2.600qm
Erschließung am Gesamtgrundstück:
Straße, Wasser, Abwasser, Strom, Erdgas, Telemedien;
Geplante Errichtung von:
Erdgeschoss (ca. 594,86qm)
7 barrierefreie Zweiraumwohnungen (je ca. 67qm + überdachte Terrasse ca. 17qm + Garten an der Wohnung) + Pkw-Stellfläche je Wohnung.
Halbes Obergeschoss mit
Solaranlagen, Haustechnik, Wärmepumpe;
Obergeschoss (optional)
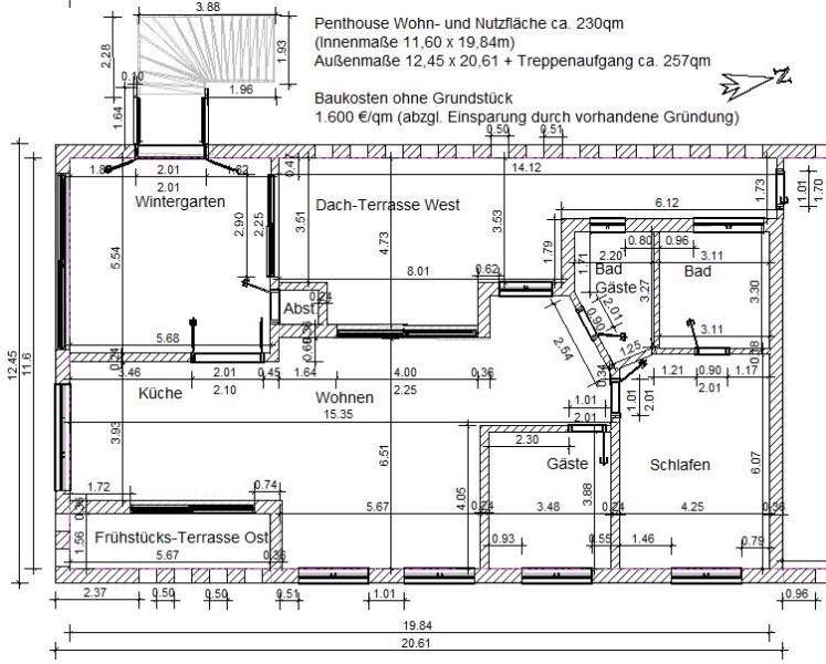
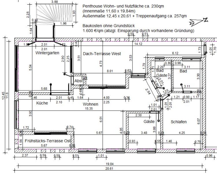
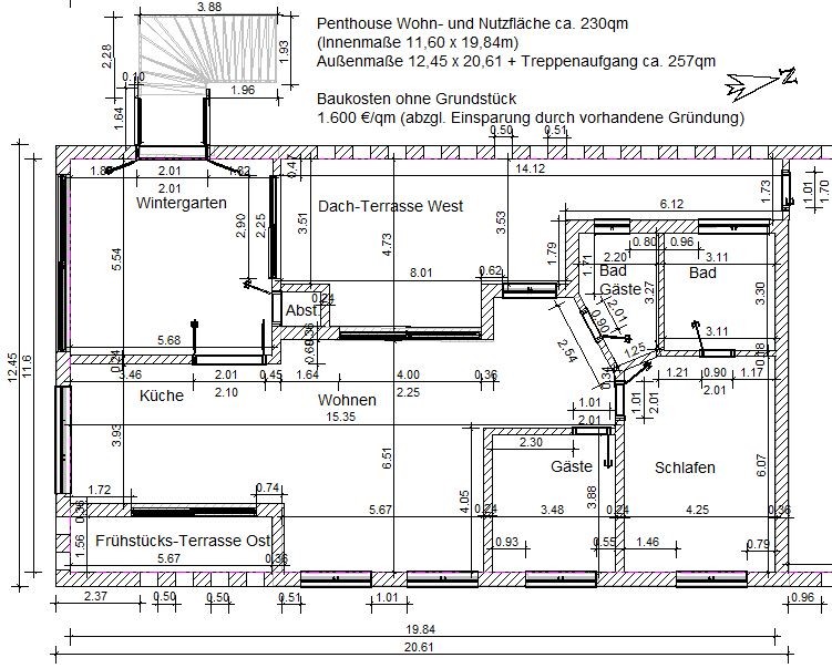
1 Penthouse (ca. 257qm)
Die Errichtung der Wohnflächen soll in/auf einem ca. 43m langen, massiv errichteten Bestandsgebäude, mit zum Obergeschoss hin besonders tragfähiger Stahlbetondecke erfolgen (baurechtlich Nutzungsänderung). Das starke Mauerwerk des Bestandsgebäudes weist keine Setzrisse, keine aufsteigende Feuchtigkeit und keine sonst statisch relevanten, von uns erkannten Mängel auf.
Eine Bauvorplanung ist bereits zur Prüfung der wirtschaftlichen Machbarkeit des Vorhabens erfolgt.
Im Ergebnis dieser Vorplanung kann davon ausgegangen werden, dass hier im Vergleich zu einem völligen Neubau enorme Baukosteneinsparungen durch Nutzung der Substanz des Bestandsgebäudes möglich sind.
Bei im Ausbau aus Sicherheitsgründen großzügiger Kalkulation (ohne Penthouse) kann mit Baukosten in Höhe von ca. 735.000 € (Stand Ende 2021) für die 7 WE gerechn
Zukunftsfähig Investieren in ein Baugrundstück für 7 barrierefreie Wohnungen mit Terrasse und Garten je Wohnung (optional + Penthouse im OG)
Standort: ca. 11 Autominuten südlich von Dessau
Grundstück:
Baugrund ca. 2.600qm
Erschließung am Gesamtgrundstück:
Straße, Wasser, Abwasser, Strom, Erdgas, Telemedien;
Geplante Errichtung von:
Erdgeschoss (ca. 594,86qm)
7 barrierefreie Zweiraumwohnungen (je ca. 67qm + überdachte Terrasse ca. 17qm + Garten an der Wohnung) + Pkw-Stellfläche je Wohnung.
Halbes Obergeschoss mit
Solaranlagen, Haustechnik, Wärmepumpe;
Obergeschoss (optional)
1 Penthouse (ca. 257qm)
Die Errichtung der Wohnflächen soll in/auf einem ca. 43m langen, massiv errichteten Bestandsgebäude, mit zum Obergeschoss hin besonders tragfähiger Stahlbetondecke erfolgen (baurechtlich Nutzungsänderung). Das starke Mauerwerk des Bestandsgebäudes weist keine Setzrisse, keine aufsteigende Feuchtigkeit und keine sonst statisch relevanten, von uns erkannten Mängel auf.
Eine Bauvorplanung ist bereits zur Prüfung der wirtschaftlichen Machbarkeit des Vorhabens erfolgt.
Im Ergebnis dieser Vorplanung kann davon ausgegangen werden, dass hier im Vergleich zu einem völligen Neubau enorme Baukosteneinsparungen durch Nutzung der Substanz des Bestandsgebäudes möglich sind.
Bei im Ausbau aus Sicherheitsgründen großzügiger Kalkulation (ohne Penthouse) kann mit Baukosten in Höhe von ca. 735.000 € (Stand Ende 2021) für die 7 WE gerechn
Lage
Bocksbrändchen06849 Dessau-Roßlau
Dessau-Roßlau Süd
Der aktuelle durchschnittliche Quadratmeterpreis beträgt 2.053,03 €/m² in Dessau-Roßlau - Süd. Der durchschnittliche Immobilienpreis in Dessau-Roßlau liegt derzeit bei 2.618,33 €/m².
Mit Immobilienpreisen
Dessau-Roßlau vergleichen
Was kostet dein Umzug?
Du planst einen Umzug? Finde jetzt die günstigste Umzugsfirma in deiner Region!
Umzugskosten berechnen Schütze dich vor Betrug!
Leiste keinerlei Zahlung im Vorraus!
Beachte unsere Sicherheitshinweise zum Thema Immobilienbetrug und lies, woran du solche Anzeigen erkennen kannst und wie du dich vor Betrügern schützt.
Anzeige melden Beachte unsere Sicherheitshinweise zum Thema Immobilienbetrug und lies, woran du solche Anzeigen erkennen kannst und wie du dich vor Betrügern schützt.
*Anzeige
Ähnliche Häuser bei ImmoScout24
Dessau-Roßlau-Süd
- Kaufpreis
- 15.000 €
- Zimmer
- 14 Zi.
- Fläche
- 585 Zi.
Anbieter
privater AnbieterWeitere Ergebnisse für:
Wohnungen
Dessau-Roßlau;
Immobilien
Dessau-Roßlau;
Haus mieten
Dessau-Roßlau;
WG Zimmer
Dessau-Roßlau;
Wohnung
Dessau-Roßlau kaufen;
Haus kaufen
Dessau-Roßlau;
Immobilienpreise
Dessau-Roßlau Mietspiegel
Dessau-Roßlau wohnungsboerse.net übernimmt keine Gewähr für von Dritten gemachte Angaben










