Immobilie in Magdeburg-Sudenburg
Bezugsfreie großzügig geschnittene 1-Raum-Wohnung von privat im ruhigen Hinterhaus mit Einbauküche
auf der Karte ansehenUmzugskosten berechnen
- Kaufpreis
- 77.000 €
- Zimmer
- 1
- Fläche
- 38.3 m²
4261 Aufrufe
Objekt-ID: 27245026
| Objekttyp: | Wohnung |
| Zimmer: | 1 |
| Größe: | 38.30 m² |
| Verfügbar ab: | 01.09.2021 |
Preise & Kosten
| Kaufpreis: | 77.000 € |
| Jetzt kostenlos Finanzierungsangebot anfragen! | |
| Preis/m²: | 2.010,44 € |
| Mit Immobilienpreisen Magdeburg vergleichen | |
Immobilie
Einbauküche
Keller
Altbau
Tiere erlaubt
| Baujahr: | 1900 |
| Qualität der Ausstattung: | normal |
| Objektzustand: | saniert |
| Befeuerungsart: | Gas |
| Energieausweis: | Verbrauchsausweis |
| Energieverbrauchskennwert: | 165,00 kWh/(m²*a) |
Objektbeschreibung
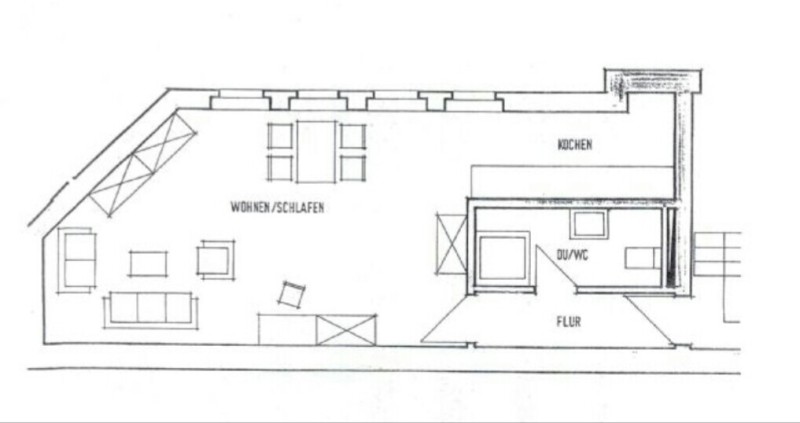
Im ruhigen Hinterhaus eines Gründerzeithauses befindet sich diese praktisch geschnittene, kleine 1-Zimmer-Wohnung. Alle vier großen Fenster der Wohnung sind nach Süden zum ruhigen Innenhof ausgerichtet.
Die Wohnung ist in hellem Weiß gestrichen.
Im Kaufpreis enthalten ist eine Einbauküche mit E-Herd, Kühlschrank, Spüle.
Der Wohn- und Schlafraum ist mit Laminat ausgestattet und bietet genügend Platz, damit Sie sich gemütlich einrichten und wohlfühlen können.
Im Duschbad mit WC kann eine Waschmaschine angeschlossen werden.
Abstellmöglichkeiten bietet der zur Wohnung gehörende Kellerraum.
Platz für ein Fahrrad finden Sie im Innenhof, der mitgenutzt werden kann.
Lage
Das sanierte Gründerzeithaus befindet sich in einer ruhigen Seitenstraße im Stadtteil Sudenburg. Die Wolfenbütteler Straße ist geprägt von sanierten Häusern aus der Jahrhundertwende.
Öffentliche Verkehrsmittel sind in 8 Gehminuten erreichbar. Supermärkte befinden sich um die Ecke.
Die Halberstädter Straße mit vielen Einkaufsmöglichkeiten, Restaurants und Dienstleistern liegt in unmittelbarer Nähe (800 m).
Gute Parkmöglichkeiten in der Straße.
Sonstiges
Die Wohnung ist bis 31.08.2021 vermietet, danach bezugsfrei.
Ich freue mich über Zuschriften. Bitte nicht anrufen.
Die Wohnung ist in hellem Weiß gestrichen.
Im Kaufpreis enthalten ist eine Einbauküche mit E-Herd, Kühlschrank, Spüle.
Der Wohn- und Schlafraum ist mit Laminat ausgestattet und bietet genügend Platz, damit Sie sich gemütlich einrichten und wohlfühlen können.
Im Duschbad mit WC kann eine Waschmaschine angeschlossen werden.
Abstellmöglichkeiten bietet der zur Wohnung gehörende Kellerraum.
Platz für ein Fahrrad finden Sie im Innenhof, der mitgenutzt werden kann.
Lage
Das sanierte Gründerzeithaus befindet sich in einer ruhigen Seitenstraße im Stadtteil Sudenburg. Die Wolfenbütteler Straße ist geprägt von sanierten Häusern aus der Jahrhundertwende.
Öffentliche Verkehrsmittel sind in 8 Gehminuten erreichbar. Supermärkte befinden sich um die Ecke.
Die Halberstädter Straße mit vielen Einkaufsmöglichkeiten, Restaurants und Dienstleistern liegt in unmittelbarer Nähe (800 m).
Gute Parkmöglichkeiten in der Straße.
Sonstiges
Die Wohnung ist bis 31.08.2021 vermietet, danach bezugsfrei.
Ich freue mich über Zuschriften. Bitte nicht anrufen.
Lage
Wolfenbüttler Straße39112 Magdeburg
Magdeburg Sudenburg
Der aktuelle durchschnittliche Quadratmeterpreis beträgt 2.814,23 €/m² in Magdeburg - Sudenburg. Der durchschnittliche Immobilienpreis in Magdeburg liegt derzeit bei 2.305,88 €/m².
Mit Immobilienpreisen
Magdeburg vergleichen
Was kostet dein Umzug?
Du planst einen Umzug? Finde jetzt die günstigste Umzugsfirma in deiner Region!
Umzugskosten berechnen Schütze dich vor Betrug!
Leiste keinerlei Zahlung im Vorraus!
Beachte unsere Sicherheitshinweise zum Thema Immobilienbetrug und lies, woran du solche Anzeigen erkennen kannst und wie du dich vor Betrügern schützt.
Anzeige melden Beachte unsere Sicherheitshinweise zum Thema Immobilienbetrug und lies, woran du solche Anzeigen erkennen kannst und wie du dich vor Betrügern schützt.
*Anzeige
Ähnliche Immobilien bei ImmoScout24
Magdeburg-Sudenburg
- Kaufpreis
- 30.000 €
- Zimmer
- 1 Zi.
- Fläche
- 30 Zi.
Anbieter
privater AnbieterWeitere Ergebnisse für:
Wohnungen
Magdeburg;
Immobilien
Magdeburg;
Haus mieten
Magdeburg;
WG Zimmer
Magdeburg;
Wohnung
Magdeburg kaufen;
Haus kaufen
Magdeburg;
Immobilienpreise
Magdeburg Mietspiegel
Magdeburg wohnungsboerse.net übernimmt keine Gewähr für von Dritten gemachte Angaben







