Mehrfamilienhaus zum kaufen in Greiz
GREIZ-MEHRFAMILIENHAUS IN BESTER LAGE
auf der Karte ansehenUmzugskosten berechnen
- Kaufpreis
- 250.000 €
- Zimmer
- 15
- Fläche
- 1000 m²
1596 Aufrufe
Objekt-ID: 26814411
| Objekttyp: | Mehrfamilienhaus |
| Zimmer: | 15 |
| Größe: | 1,000.00 m² |
| Grundstücksfläche: | 350,00 m² |
| Verfügbar ab: | keine Angabe |
Preise & Kosten
| Kaufpreis: | 250.000 € |
| Jetzt kostenlos Finanzierungsangebot anfragen! | |
| Preis/m²: | 250,00 € |
| Mit Immobilienpreisen Greiz vergleichen | |
Immobilie
Keller
Altbau
| Baujahr: | 1900 |
| Qualität der Ausstattung: | einfach |
| Objektzustand: | renovierungsbedürftig |
| Befeuerungsart: | Gas |
| Energieausweis: | Energieausweis nicht notwendig (Denkmalschutz) |
Objektbeschreibung
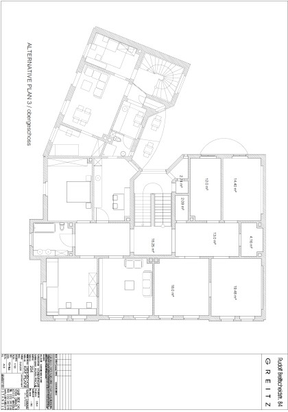
MIETSHAUS GREIZ
DAS ECKGEBAUEDE
GESAMT CA 1000 M2 WOHNFLAECHE..
ES SIND INSGESAMT 15 WOHNUNGEN.EIN HAUPTTREPPENHAUS ALS ZWEISPAENNER..10 WOHNEINHEITEN
UND EIN TREPPENHAUS GETRENTER EINGANG MIT 5 WOHN EINHEITEN
WIR HABEN AUCH VORENTWÜRFE GEMACHT
DIE ZWEITE TREPPENHAUS ENTFERNT UND DIE KLEINE WOHNUN MIT DER ANSCHLIESSENDER WOHNUNG VERBUNDEN.
FÜR INTERESENTEN KÖNNEN WIR PLANUNGEN UND AUCH UMBAU ARBEITEN DURCHFÜHREN.
RUDOLF BREITSCHEIDSTRASSE IST IM DENKMALGESCHÜTZEN GEBIET UND BESTER LAGE IN GREIZ..UMGEBUNG SIND MEHRERE WOHNUNGEN RENOVIERT.
DANN HAT MAN VOR 10 JAHREN DENKE ICH AUCH EIN KONZERTHAUS NEU GEBAUT DAS 5 MINUTEN ZU FUSS EREICHBAR IST.
FÜR DAS DACHREONVIERUNG HATTE ICH AUCH EINE FÖRDERUNG IN AUSSICHT CAA 20.000 EURO VON DER STADT..
ES GIBT WOHL DARÜBER HINAUS NOCH ANDERE..
DAS ECKGEBAUEDE
GESAMT CA 1000 M2 WOHNFLAECHE..
ES SIND INSGESAMT 15 WOHNUNGEN.EIN HAUPTTREPPENHAUS ALS ZWEISPAENNER..10 WOHNEINHEITEN
UND EIN TREPPENHAUS GETRENTER EINGANG MIT 5 WOHN EINHEITEN
WIR HABEN AUCH VORENTWÜRFE GEMACHT
DIE ZWEITE TREPPENHAUS ENTFERNT UND DIE KLEINE WOHNUN MIT DER ANSCHLIESSENDER WOHNUNG VERBUNDEN.
FÜR INTERESENTEN KÖNNEN WIR PLANUNGEN UND AUCH UMBAU ARBEITEN DURCHFÜHREN.
RUDOLF BREITSCHEIDSTRASSE IST IM DENKMALGESCHÜTZEN GEBIET UND BESTER LAGE IN GREIZ..UMGEBUNG SIND MEHRERE WOHNUNGEN RENOVIERT.
DANN HAT MAN VOR 10 JAHREN DENKE ICH AUCH EIN KONZERTHAUS NEU GEBAUT DAS 5 MINUTEN ZU FUSS EREICHBAR IST.
FÜR DAS DACHREONVIERUNG HATTE ICH AUCH EINE FÖRDERUNG IN AUSSICHT CAA 20.000 EURO VON DER STADT..
ES GIBT WOHL DARÜBER HINAUS NOCH ANDERE..
Lage
RUDOLF BREITSCHEID STRASSE07973 Greiz
Greiz
Der aktuelle durchschnittliche Quadratmeterpreis beträgt 1.421,48 €/m² in Greiz.
Mit Immobilienpreisen
Greiz vergleichen
Was kostet dein Umzug?
Du planst einen Umzug? Finde jetzt die günstigste Umzugsfirma in deiner Region!
Umzugskosten berechnen Schütze dich vor Betrug!
Leiste keinerlei Zahlung im Vorraus!
Beachte unsere Sicherheitshinweise zum Thema Immobilienbetrug und lies, woran du solche Anzeigen erkennen kannst und wie du dich vor Betrügern schützt.
Anzeige melden Beachte unsere Sicherheitshinweise zum Thema Immobilienbetrug und lies, woran du solche Anzeigen erkennen kannst und wie du dich vor Betrügern schützt.
*Anzeige
Ähnliche Häuser bei ImmoScout24
Greiz
- Kaufpreis
- 200.000 €
- Zimmer
- 15 Zi.
- Fläche
- 990 Zi.
Anbieter
privater AnbieterWeitere Ergebnisse für:
Wohnungen
Greiz;
Immobilien
Greiz;
Haus mieten
Greiz;
WG Zimmer
Greiz;
Wohnung
Greiz kaufen;
Haus kaufen
Greiz;
Immobilienpreise
Greiz Mietspiegel
Greiz wohnungsboerse.net übernimmt keine Gewähr für von Dritten gemachte Angaben











