
Erdgeschosswohnung in Wien
Stilvolles Zuhause mit großem Herz – 3 Zimmer – 112 m² Eigengarten – mitten in Grün – Süd – Ost Ausrichtung - hochwertig ausgestattet
auf der Karte ansehenUmzugskosten berechnen
- Kaufpreis
- 480.000 €
- Zimmer
- 3
- Fläche
- 75.41 m²
10 Aufrufe
Objekt-ID: 38872490
| Objekttyp: | Erdgeschosswohnung |
| Zimmer: | 3 |
| Größe: | 75.41 m² |
| Verfügbar ab: | sofort |
Immobilie
Garten
Aufzug
Keller
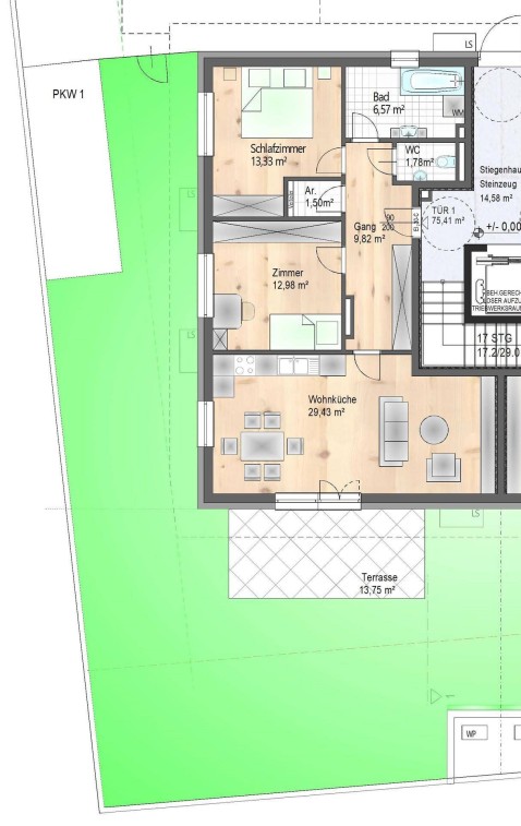
Objektbeschreibung
Ein Ort, der Ihre Seele atmet.
Diese traumhafte Gartenwohnung vereint das Beste aus zwei Welten: die Geborgenheit stilvoller Innenräume und die Freiheit eines großzügigen privaten Gartens. Ein Rückzugsort mit viel Raum für Ihre Wünsche – sonnenverwöhnt, elegant und sofort bezugsbereit.
Wohnen, wie es sein soll – offen, hell, naturnah
• Wohnzimmer (ca. 22 m²) mit Zugang zur Terrasse – lichtdurchflutet und gemütlich
• Zwei Schlafzimmer (je ca. 12 m²) – ideal für Familien, Gäste oder Homeoffice
• Bad (ca. 6 m²) mit Badewanne & stilvollem Waschtisch
• Separates WC (ca. 2 m²) – komfortabel & praktisch
• Abstellraum (ca. 1,50 m²) – für Ordnung mit System
• Sonnenterrasse (10 m²) – Ihr Platz für Morgensonne & Abendgenuss
• Eigengarten (122,76 m²) – ein echtes Highlight für Familien, Tierliebhaber & Pflanzenfreunde
• Kellerabteil (ca. 3,16 m²) – zusätzlicher Stauraum
• Abstellräume für Fahrräder & Kinderwagen – durchdacht & barrierefrei erreichbar
Energieeffizient wohnen – für heute & morgen
Ein innovatives Heizsystem mit Luftwärmepumpe sowie die hauseigene Photovoltaikanlage ermöglichen umweltfreundliches Wohnen mit niedrigen Betriebskosten.
Nachhaltigkeit trifft auf zeitgemäßen Lebensstil – ein zukunftsorientiertes Zuhause in jeder Hinsicht.
Ihr grünes Gartenoase – charmant, ruhig und ganz privat
Die süd-ostseitige Ausrichtung garantiert morgendliche Sonne und lichtdurchflutete Räume. Der idyllische Garten wird schnell zum Lieblingsplatz für entspannte Stunden im Freien – sei es beim Frühstück auf der Terrasse oder beim Garteln unter freiem Himmel.
Diese traumhafte Gartenwohnung vereint das Beste aus zwei Welten: die Geborgenheit stilvoller Innenräume und die Freiheit eines großzügigen privaten Gartens. Ein Rückzugsort mit viel Raum für Ihre Wünsche – sonnenverwöhnt, elegant und sofort bezugsbereit.
Wohnen, wie es sein soll – offen, hell, naturnah
• Wohnzimmer (ca. 22 m²) mit Zugang zur Terrasse – lichtdurchflutet und gemütlich
• Zwei Schlafzimmer (je ca. 12 m²) – ideal für Familien, Gäste oder Homeoffice
• Bad (ca. 6 m²) mit Badewanne & stilvollem Waschtisch
• Separates WC (ca. 2 m²) – komfortabel & praktisch
• Abstellraum (ca. 1,50 m²) – für Ordnung mit System
• Sonnenterrasse (10 m²) – Ihr Platz für Morgensonne & Abendgenuss
• Eigengarten (122,76 m²) – ein echtes Highlight für Familien, Tierliebhaber & Pflanzenfreunde
• Kellerabteil (ca. 3,16 m²) – zusätzlicher Stauraum
• Abstellräume für Fahrräder & Kinderwagen – durchdacht & barrierefrei erreichbar
Energieeffizient wohnen – für heute & morgen
Ein innovatives Heizsystem mit Luftwärmepumpe sowie die hauseigene Photovoltaikanlage ermöglichen umweltfreundliches Wohnen mit niedrigen Betriebskosten.
Nachhaltigkeit trifft auf zeitgemäßen Lebensstil – ein zukunftsorientiertes Zuhause in jeder Hinsicht.
Ihr grünes Gartenoase – charmant, ruhig und ganz privat
Die süd-ostseitige Ausrichtung garantiert morgendliche Sonne und lichtdurchflutete Räume. Der idyllische Garten wird schnell zum Lieblingsplatz für entspannte Stunden im Freien – sei es beim Frühstück auf der Terrasse oder beim Garteln unter freiem Himmel.
Vorstellungsmappe
Jetzt Vorstellungsmappe erstellen
Lage
1220 WienWien
Der aktuelle durchschnittliche Quadratmeterpreis beträgt 6.522,45 €/m² in Wien.
Mit Immobilienpreisen
Wien vergleichen
Was kostet dein Umzug?
Du planst einen Umzug? Finde jetzt die günstigste Umzugsfirma in deiner Region!
Umzugskosten berechnen Schütze dich vor Betrug!
Leiste keinerlei Zahlung im Vorraus!
Beachte unsere Sicherheitshinweise zum Thema Immobilienbetrug und lies, woran du solche Anzeigen erkennen kannst und wie du dich vor Betrügern schützt.
Anzeige melden Beachte unsere Sicherheitshinweise zum Thema Immobilienbetrug und lies, woran du solche Anzeigen erkennen kannst und wie du dich vor Betrügern schützt.
*Anzeige
Ähnliche Immobilien bei ImmoScout24
Wien
- Kaufpreis
- 430.000 €
- Zimmer
- 3 Zi.
- Fläche
- 70 Zi.
Anbieter
Weitere Ergebnisse für:
Wohnungen
Wien;
Immobilien
Wien;
Haus mieten
Wien;
Wohnung
Wien kaufen;
Haus kaufen
Wien;
Immobilienpreise
Wien Mietspiegel
Wien wohnungsboerse.net übernimmt keine Gewähr für von Dritten gemachte Angaben