
Dachgeschosswohnung in Wien
Moderne 3-Zimmer-Dachgeschosswohnung mit Balkon zu verkaufen!
auf der Karte ansehenUmzugskosten berechnen
- Kaufpreis
- 497.000 €
- Zimmer
- 3
- Fläche
- 67.01 m²
23 Aufrufe
Objekt-ID: 38872475
| Objekttyp: | Dachgeschosswohnung |
| Zimmer: | 3 |
| Größe: | 67.01 m² |
| Etage: | 2 von 4 |
| Verfügbar ab: | keine Angabe |
Immobilie
Balkon
Garten
Aufzug
Keller
Objektbeschreibung
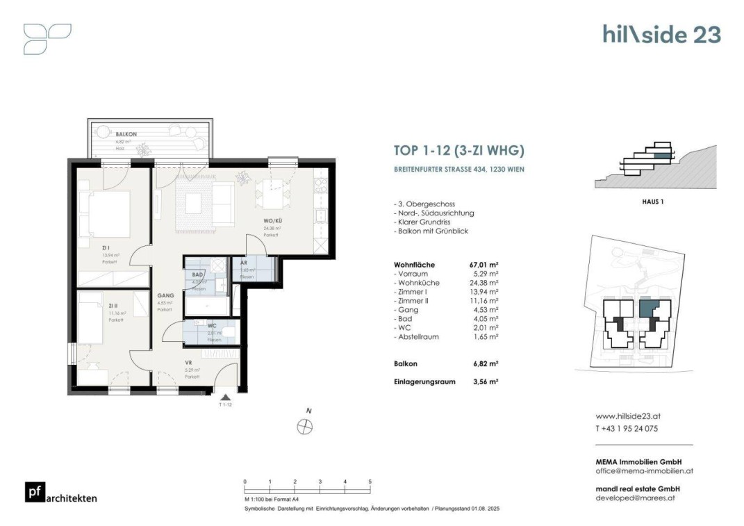
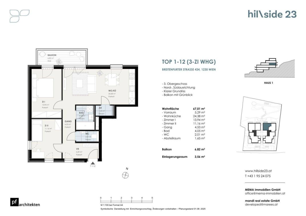
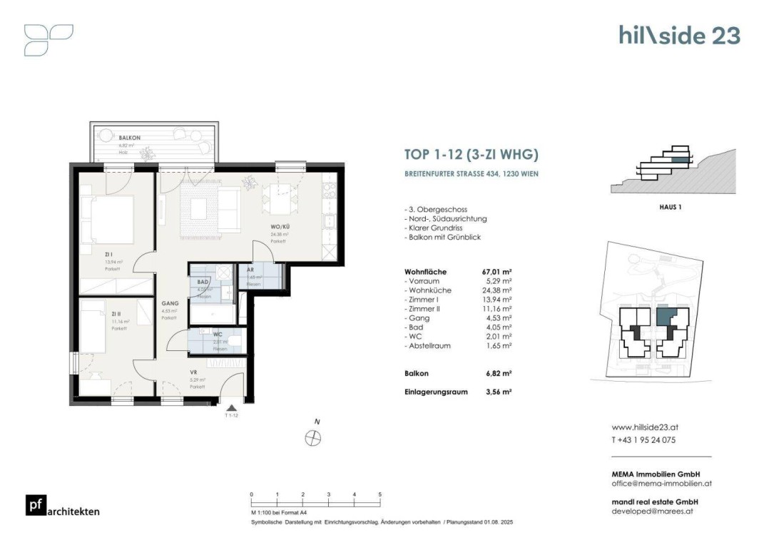
Zum Verkauf steht eine ca. 67 m² große 3-Zimmer-Dachgeschosswohnung in einem Ende 2027 fertig werdenden Neubau. Die Wohnung befindet sich im 3. Obergeschoss/1. Dachgeschoss. Die Wohnung blickt in den Erlebnisgarten Richtung Nordwesten.Zwischen den Maurer Weinbergen und dem Liesinger Bach entsteht dieses traumhafte Wohnprojekt mit zwei Wohnhäusern. In der Anlage gelangen insgesamt 28 freifinanzierte Eigentumswohnungen, die 1 bis 5 Zimmer und Wohnflächen von 50 bis 145 m² bieten. Zu allen Wohnungen gehört entweder ein Balkon, eine Terrasse oder sogar ein Eigengarten. In der hauseigenen Tiefgarage stehen 21 Kfz-Stellplätze – davon 8 Komfortdoppelparker – zur Verfügung.Die Kombination aus praktischer Fußbodenheizung und -kühlung sowie Markenparkettböden (Eiche) bietet optimalen Komfort und ein angenehmes Wohngefühl. Die teilweise bodentiefen Holz-Alu-Fenster sind sowohl mit 3-fach-Isolierverglasung als auch mit außenliegenden Alu-Raffstores ausgestattet.Die Nassräume sind mit großformatigen Fliesen oder Feinsteinzeug versehen. Die Badezimmer verfügen über Duschen oder Badewannen sowie einen Waschmaschinenanschluss. In den Dachgeschosswohnungen werden Split-Klimaanlagen installiert.Die Beheizung und Warmwasseraufbereitung erfolgt mittels energieeffizienter mittels Luft-Wärmepumpe und wird durch eine Photovoltaikanlage unterstützt. Zu jeder Wohnung ist ein eigenes Kellerabteil zugehörig. Die Küche ist im Kaufpreis nicht enthalten.Den Bewohnern steht eine großzügige Gartenanlage als Ruheoase und Raum für gemeinsame Aktivitäten zur Verfügung.Alle wichtigen Einrichtungen und Geschäfte des täglichen Bedarfs sind nur wenige Gehminuten entfernt. Über den Gartenausgang in die Arabellagasse erreichen Sie das Einkaufszentrum Riverside und das Zentrum von Mauer in kurzer Zeit. Die grüne Umgebung bietet eine einzigartige Kombination aus Natur und urbanem Komfort.Infrastruktur:
Billa - 12 Gehminuten entfernt
Spar - 12 Gehminuten entfernt
Turmöl - 7 Gehminuten entfernt
Hausarzt - 5 Gehminuten entfernt
Apotheke - 12 Gehminuten entfernt
Einkaufszentrum (Riverside) - 15 Gehminuten entferntÖffentliche Anbindungen:
Straßenbahn: 60 - Breitenfurter Str./Liesingbrücke (5 Gehminuten)
Bus: 253, 259 – Wien Rodaunbrücke (Breitenfurter Straße) (4 Gehminuten)Die 67,01 m²-Wohnfläche bietet wie folgt:
• Vorraum
• Wohnküche
• 2 Schlafzimmer
• Badezimmer mit Wanne und Waschmaschinenanschluss
• separates WC samt Handwaschbecken
• Abstellraum
• Balkon: 6,82 m²Werte laut Energieausweis:
• HWBREF, SK: 34,5 kWh/m²a (Energieklasse B),
• fGEE, SK: 0,69 (Energieklasse A+).
• Gültig bis: 31.07.2033Ab 30% Eigenkapital bieten wir Kreditmöglichkeiten an!Für weitere Informationen sowie Besichtigungen steht IhnenChristopher Martinunter[Telefonnummer entfernt]oder[E-Mail-Adresse entfernt]zur Verfügung!
Infrastruktur / EntfernungenGesundheit
Arzt <500m
Apotheke <1.000m
Klinik <1.000m
Krankenhaus <1.500m
Kinder & Schulen
Schule <500m
Kindergarten <500m
Universität <5.500m
Höhere Schule <7.000m
Nahversorgung
Supermarkt <1.000m
Bäckerei <1.500m
Einkaufszentrum <1.500m
Sonstige
Geldautomat <500m
Bank <500m
Post <500m
Polizei <1.500m
Verkehr
Bus <500m
U-Bahn <4.000m
Straßenbahn <500m
Bahnhof <2.000m
Autobahnanschluss <3.500m
Angaben Entfernung Luftlinie / Quelle: OpenStreetMap
Billa - 12 Gehminuten entfernt
Spar - 12 Gehminuten entfernt
Turmöl - 7 Gehminuten entfernt
Hausarzt - 5 Gehminuten entfernt
Apotheke - 12 Gehminuten entfernt
Einkaufszentrum (Riverside) - 15 Gehminuten entferntÖffentliche Anbindungen:
Straßenbahn: 60 - Breitenfurter Str./Liesingbrücke (5 Gehminuten)
Bus: 253, 259 – Wien Rodaunbrücke (Breitenfurter Straße) (4 Gehminuten)Die 67,01 m²-Wohnfläche bietet wie folgt:
• Vorraum
• Wohnküche
• 2 Schlafzimmer
• Badezimmer mit Wanne und Waschmaschinenanschluss
• separates WC samt Handwaschbecken
• Abstellraum
• Balkon: 6,82 m²Werte laut Energieausweis:
• HWBREF, SK: 34,5 kWh/m²a (Energieklasse B),
• fGEE, SK: 0,69 (Energieklasse A+).
• Gültig bis: 31.07.2033Ab 30% Eigenkapital bieten wir Kreditmöglichkeiten an!Für weitere Informationen sowie Besichtigungen steht IhnenChristopher Martinunter[Telefonnummer entfernt]oder[E-Mail-Adresse entfernt]zur Verfügung!
Infrastruktur / EntfernungenGesundheit
Arzt <500m
Apotheke <1.000m
Klinik <1.000m
Krankenhaus <1.500m
Kinder & Schulen
Schule <500m
Kindergarten <500m
Universität <5.500m
Höhere Schule <7.000m
Nahversorgung
Supermarkt <1.000m
Bäckerei <1.500m
Einkaufszentrum <1.500m
Sonstige
Geldautomat <500m
Bank <500m
Post <500m
Polizei <1.500m
Verkehr
Bus <500m
U-Bahn <4.000m
Straßenbahn <500m
Bahnhof <2.000m
Autobahnanschluss <3.500m
Angaben Entfernung Luftlinie / Quelle: OpenStreetMap
Vorstellungsmappe
Jetzt Vorstellungsmappe erstellen
Lage
1230 WienWien
Der aktuelle durchschnittliche Quadratmeterpreis beträgt 6.522,45 €/m² in Wien.
Mit Immobilienpreisen
Wien vergleichen
Was kostet dein Umzug?
Du planst einen Umzug? Finde jetzt die günstigste Umzugsfirma in deiner Region!
Umzugskosten berechnen Schütze dich vor Betrug!
Leiste keinerlei Zahlung im Vorraus!
Beachte unsere Sicherheitshinweise zum Thema Immobilienbetrug und lies, woran du solche Anzeigen erkennen kannst und wie du dich vor Betrügern schützt.
Anzeige melden Beachte unsere Sicherheitshinweise zum Thema Immobilienbetrug und lies, woran du solche Anzeigen erkennen kannst und wie du dich vor Betrügern schützt.
*Anzeige
Ähnliche Immobilien bei ImmoScout24
Wien
- Kaufpreis
- 450.000 €
- Zimmer
- 3 Zi.
- Fläche
- 60 Zi.
Anbieter
Weitere Ergebnisse für:
Wohnungen
Wien;
Immobilien
Wien;
Haus mieten
Wien;
Wohnung
Wien kaufen;
Haus kaufen
Wien;
Immobilienpreise
Wien Mietspiegel
Wien wohnungsboerse.net übernimmt keine Gewähr für von Dritten gemachte Angaben