
Etagenwohnung in Nickelsdorf
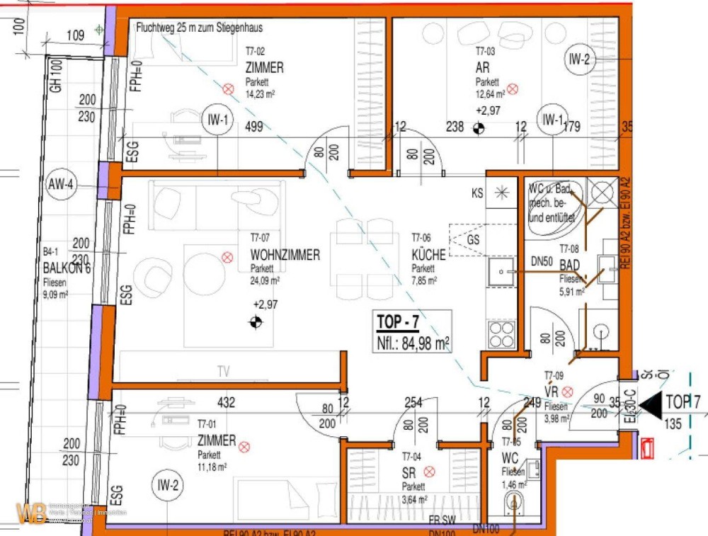
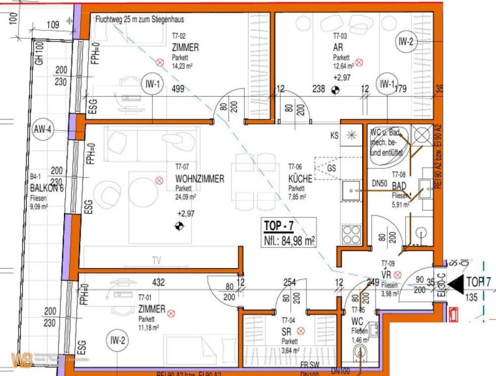
Erstbezug Südwest-Ausrichtung, 85m² WFL + Balkon 9m², 24m² WZ mit offener Küche & 3 Zimmer, 60m² PKW-Stellplatz
auf der Karte ansehenUmzugskosten berechnen
- Kaufpreis
- 196.955 €
- Zimmer
- 4
- Fläche
- 84.98 m²
16 Aufrufe
Objekt-ID: 38795753
| Objekttyp: | Etagenwohnung |
| Zimmer: | 4 |
| Größe: | 84.98 m² |
| Etage: | 1 |
| Verfügbar ab: | keine Angabe |
Preise & Kosten
| Kaufpreis: | 196.955 € |
| Preis/m²: | 2.317,66 € |
| Mit Immobilienpreisen Nickelsdorf vergleichen | |
Immobilie
Balkon
Stellplatz
Keller
Objektbeschreibung
Zum Verkauf kommt ein Erstbezug SW mit Balkon + PP vom Top-Bauträger in Ruhelage+ Wohnküche 24m² Zimmer mit 14m², 12m² & 11m², Badezimmer 6m², Schrankraum 4m², Vorraum 4m², WC+ belagsfertig oder gegen Aufpreis von 26k schlüsselfertig+ Gebaut wird nach hohem energetischen Standard und Bauträgervertrag, ein neues Vergleichsobjekt des Bauträgers kann in der Nähe besichtigt werden+ Insgesamt gibt es 8 Wohnungen, Details zu den anderen Wohnungen sende ich gerne auf Anfrage (Pläne,Preise etc.)+ Top 7, Obergeschoß - Auszüge aus der Baubeschreibung:..Einrichtung von Abstellräumen, eines Kinderwagenabstellraums und einer von Aussen erreichbarer zweiläufiger Treppe Mit Zwischenpodest. Ein zentraler Gang führt zu vier Weiteren Wohneinheiten. Jede Wohnung erhält einen oder mehrere Balkone ... Dach: Neubau eines Flachdachs. Bestehendes Kellergeschoss: Zugang über eine bestehende Aussentreppe. Unterbringung der Heizungs- und Warmwassertechnik. Nebenanlagen: Im Erdgeschoss Müllsammelplatz....Damit Entsteht Ein Modernes, Auf Zwei Ebenen Organisiertes Mehrfamilienhaus, das Sowohl funktionale Grundrisse als auch grosszügige Aussen- Und Gemeinschaftsflächen bietet.
Aussenwände: Ziegelmauerwerk (Zmw) Mit Vollwärmeschutz; Innenwände: Ziegelmauerwerk (Zmw); Dachkonstruktion: Flachdach; Aussenfassade: Putzfassade;
Sanitäre Einrichtung: Hänge-Wc Mit Unterputz-Spülkasten, Schwitzwasserisoliert, Stahlblechwanne Bzw. - Dusche, Waschmaschinenanschluss;
Heizung U. Warm- Wasserzubereitung:Mittels Zwei Luft-Wasser-Wärmepumpen, Kombiniert Mit Fussbodenheizung; Fenster: Terrassentüren: Kunststoff-Fenster; Alu, K-Wert 0,85 W/M²k; Verglasung: Fenster Und Aussentüren 3 Scheiben - Wärmedämmverglasung; Dusche – Esg, Hauseingangstür: Aluminium; Innentüren: Holzzargen, Türblatt Holz; Verkleidungen: Sohlbankabdeckungen Alu Pulverbeschichtet, Farbe Anthrazit; Beschattung: Rollläden; Fenster- Und Türbeschläge: Alu Natur; Vertikale Erschliessung: Betontreppe Zwischen Erd- Und Obergeschoss; Bestehende Treppe In Den Keller; Absturzsicherung Und Geländer: Balkongeländer, Höhe = 100 Cm; Blitzschutz- Anlage: Neu, (Fangeinrichtungen, Ableitungen, Erdung) Standard; Elektroinstallation: Nach Dem Heutigen Stand Der Technik Ausgeführt, Abnahme Durch Ein Konzessioniertes Elektrounternehmen;
Aussenanlagen: Fahr- Und Gehwege Pflastersteine;+ Im Ort finden Sie: zwei Kindergärten, eine Volksschule, Tennisplätze, ein Beachvolleyballplatz, einen öffentlichen Sportplatz, eine Skateranlage, eine Bäckerei & Konditorei, Gasthäuser und Buschenschenken, eine Bank, Tankstelle, Nahversorger, diverse Fachgeschäfte, eine Gemeindeärztin, ein reges Vereinsleben, u.v.m.+ Mit der Bahn oder dem Auto ist das Haus nur ca. eine Stunde von Wien entfernt+ Insgesamt gibt es 8 Wohnungen, Details zu den anderen Wohnungen sende ich gerne auf Anfrage (Pläne,Preise etc.)Zur Beantwortung etwaiger Fragen nutzen Sie bitte die schriftliche Anfragefunktion oder geben Sie bitte Name und Telefonnummer bei Ihrer Anfrage für einen Rückruf bekannt.Walter Pap, Immobilientreuhänder e.a. Immobilienmakler Der Vermittler ist als Doppelmakler tätig.
Infrastruktur / EntfernungenGesundheit
Arzt <2.000m
Apotheke <8.000m
Kinder & Schulen
Schule <1.500m
Kindergarten <1.000m
Nahversorgung
Supermarkt <1.500m
Bäckerei <1.000m
Sonstige
Geldautomat <1.000m
Bank <1.000m
Polizei <1.500m
Post <1.500m
Verkehr
Bus <500m
Autobahnanschluss <2.000m
Bahnhof <500m
Angaben Entfernung Luftlinie / Quelle: OpenStreetMap
Aussenwände: Ziegelmauerwerk (Zmw) Mit Vollwärmeschutz; Innenwände: Ziegelmauerwerk (Zmw); Dachkonstruktion: Flachdach; Aussenfassade: Putzfassade;
Sanitäre Einrichtung: Hänge-Wc Mit Unterputz-Spülkasten, Schwitzwasserisoliert, Stahlblechwanne Bzw. - Dusche, Waschmaschinenanschluss;
Heizung U. Warm- Wasserzubereitung:Mittels Zwei Luft-Wasser-Wärmepumpen, Kombiniert Mit Fussbodenheizung; Fenster: Terrassentüren: Kunststoff-Fenster; Alu, K-Wert 0,85 W/M²k; Verglasung: Fenster Und Aussentüren 3 Scheiben - Wärmedämmverglasung; Dusche – Esg, Hauseingangstür: Aluminium; Innentüren: Holzzargen, Türblatt Holz; Verkleidungen: Sohlbankabdeckungen Alu Pulverbeschichtet, Farbe Anthrazit; Beschattung: Rollläden; Fenster- Und Türbeschläge: Alu Natur; Vertikale Erschliessung: Betontreppe Zwischen Erd- Und Obergeschoss; Bestehende Treppe In Den Keller; Absturzsicherung Und Geländer: Balkongeländer, Höhe = 100 Cm; Blitzschutz- Anlage: Neu, (Fangeinrichtungen, Ableitungen, Erdung) Standard; Elektroinstallation: Nach Dem Heutigen Stand Der Technik Ausgeführt, Abnahme Durch Ein Konzessioniertes Elektrounternehmen;
Aussenanlagen: Fahr- Und Gehwege Pflastersteine;+ Im Ort finden Sie: zwei Kindergärten, eine Volksschule, Tennisplätze, ein Beachvolleyballplatz, einen öffentlichen Sportplatz, eine Skateranlage, eine Bäckerei & Konditorei, Gasthäuser und Buschenschenken, eine Bank, Tankstelle, Nahversorger, diverse Fachgeschäfte, eine Gemeindeärztin, ein reges Vereinsleben, u.v.m.+ Mit der Bahn oder dem Auto ist das Haus nur ca. eine Stunde von Wien entfernt+ Insgesamt gibt es 8 Wohnungen, Details zu den anderen Wohnungen sende ich gerne auf Anfrage (Pläne,Preise etc.)Zur Beantwortung etwaiger Fragen nutzen Sie bitte die schriftliche Anfragefunktion oder geben Sie bitte Name und Telefonnummer bei Ihrer Anfrage für einen Rückruf bekannt.Walter Pap, Immobilientreuhänder e.a. Immobilienmakler Der Vermittler ist als Doppelmakler tätig.
Infrastruktur / EntfernungenGesundheit
Arzt <2.000m
Apotheke <8.000m
Kinder & Schulen
Schule <1.500m
Kindergarten <1.000m
Nahversorgung
Supermarkt <1.500m
Bäckerei <1.000m
Sonstige
Geldautomat <1.000m
Bank <1.000m
Polizei <1.500m
Post <1.500m
Verkehr
Bus <500m
Autobahnanschluss <2.000m
Bahnhof <500m
Angaben Entfernung Luftlinie / Quelle: OpenStreetMap
Vorstellungsmappe
Jetzt Vorstellungsmappe erstellen
Was kostet dein Umzug?
Du planst einen Umzug? Finde jetzt die günstigste Umzugsfirma in deiner Region!
Umzugskosten berechnen Schütze dich vor Betrug!
Leiste keinerlei Zahlung im Vorraus!
Beachte unsere Sicherheitshinweise zum Thema Immobilienbetrug und lies, woran du solche Anzeigen erkennen kannst und wie du dich vor Betrügern schützt.
Anzeige melden Beachte unsere Sicherheitshinweise zum Thema Immobilienbetrug und lies, woran du solche Anzeigen erkennen kannst und wie du dich vor Betrügern schützt.
*Anzeige
Ähnliche Immobilien bei ImmoScout24
Nickelsdorf
- Kaufpreis
- 150.000 €
- Zimmer
- 4 Zi.
- Fläche
- 75 Zi.
Anbieter
Weitere Ergebnisse für:
Wohnungen
Nickelsdorf;
Immobilien
Nickelsdorf;
Haus mieten
Nickelsdorf;
Wohnung
Nickelsdorf kaufen;
Haus kaufen
Nickelsdorf;
Immobilienpreise
Nickelsdorf Mietspiegel
Nickelsdorf wohnungsboerse.net übernimmt keine Gewähr für von Dritten gemachte Angaben