
Immobilie in Ramsau im Zillertal
Neubauprojekt ,,VISAVIS'' Ramsau im Zillertal
auf der Karte ansehenUmzugskosten berechnen
- Kaufpreis
- Preis auf Anfrage
- Zimmer
- 3
- Fläche
- 69.67 m²
11 Aufrufe
Objekt-ID: 38591485
| Objekttyp: | Wohnung |
| Zimmer: | 3 |
| Größe: | 69.67 m² |
| Verfügbar ab: | keine Angabe |
Preise & Kosten
| Kaufpreis: |
k.A. |
Immobilie
Balkon
Keller
Neubau
Objektbeschreibung
VISAVIS Ramsau steht für modernes Bauen mit klarer Struktur und flexibler Nutzung. Das Projekt gliedert sich in zwei Baukörper – Haus 1 und Haus 2 – und bietet Raum für unterschiedlichste Anforderungen: von großzügigen Gewerbeflächen bis hin zu durchdachten, kompakt geschnittenen Wohneinheiten.Folgende Nutzungseinheiten sind vorgesehen:Gewerbeflächen:
Flexible Einheiten in unterschiedlichen Größen – geeignet für Handel, Dienstleistungen oder Büronutzung. Die Flächen lassen sich individuell anpassen.Dienstwohnungen:
Kompakte Einheiten mit einer Fläche von rund 30 m², ideal als Mitarbeiterwohnungen oder für betriebsnahe Nutzung.Wohnungen zur dauerhaften Nutzung:
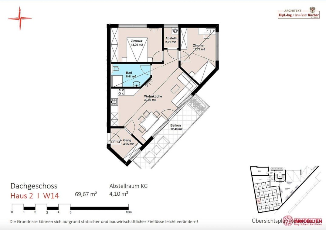
Wohnflächen zwischen ca. 40 und 70 m².Top 14 – 3-Zimmer-Wohnung mit BalkonDie Wohnung verfügt über eine Wohnfläche von 69,67 m² sowie einen Balkon mit 12,48 m².Wohnraum: 30,08 m²Schlafzimmer 1: 13,20 m²Schlafzimmer 2: 12,72 m²Bad: 6,41 m²Abstellraum: 2,31 m²Balkon: 12,48 m²Die Grundrisse können flexibel angepasst werden – Wohnungen können vergrößert oder verkleinert werden.
Übergabe schlüsselfertig laut Bau- und Ausstattungsbeschreibung (ohne Küche und Beleuchtung).
Tiefgaragenstellplätze können zusätzlich gekauft werden.
Infrastruktur / EntfernungenGesundheit
Arzt <500m
Apotheke <1.000m
Klinik <6.500m
Kinder & Schulen
Schule <1.000m
Kindergarten <1.000m
Nahversorgung
Supermarkt <500m
Bäckerei <500m
Sonstige
Bank <1.000m
Geldautomat <1.500m
Post <1.000m
Polizei <3.000m
Verkehr
Bus <500m
Bahnhof <1.000m
Angaben Entfernung Luftlinie / Quelle: OpenStreetMap
Flexible Einheiten in unterschiedlichen Größen – geeignet für Handel, Dienstleistungen oder Büronutzung. Die Flächen lassen sich individuell anpassen.Dienstwohnungen:
Kompakte Einheiten mit einer Fläche von rund 30 m², ideal als Mitarbeiterwohnungen oder für betriebsnahe Nutzung.Wohnungen zur dauerhaften Nutzung:
Wohnflächen zwischen ca. 40 und 70 m².Top 14 – 3-Zimmer-Wohnung mit BalkonDie Wohnung verfügt über eine Wohnfläche von 69,67 m² sowie einen Balkon mit 12,48 m².Wohnraum: 30,08 m²Schlafzimmer 1: 13,20 m²Schlafzimmer 2: 12,72 m²Bad: 6,41 m²Abstellraum: 2,31 m²Balkon: 12,48 m²Die Grundrisse können flexibel angepasst werden – Wohnungen können vergrößert oder verkleinert werden.
Übergabe schlüsselfertig laut Bau- und Ausstattungsbeschreibung (ohne Küche und Beleuchtung).
Tiefgaragenstellplätze können zusätzlich gekauft werden.
Infrastruktur / EntfernungenGesundheit
Arzt <500m
Apotheke <1.000m
Klinik <6.500m
Kinder & Schulen
Schule <1.000m
Kindergarten <1.000m
Nahversorgung
Supermarkt <500m
Bäckerei <500m
Sonstige
Bank <1.000m
Geldautomat <1.500m
Post <1.000m
Polizei <3.000m
Verkehr
Bus <500m
Bahnhof <1.000m
Angaben Entfernung Luftlinie / Quelle: OpenStreetMap
Vorstellungsmappe
Jetzt Vorstellungsmappe erstellen
Was kostet dein Umzug?
Du planst einen Umzug? Finde jetzt die günstigste Umzugsfirma in deiner Region!
Umzugskosten berechnen Schütze dich vor Betrug!
Leiste keinerlei Zahlung im Vorraus!
Beachte unsere Sicherheitshinweise zum Thema Immobilienbetrug und lies, woran du solche Anzeigen erkennen kannst und wie du dich vor Betrügern schützt.
Anzeige melden Beachte unsere Sicherheitshinweise zum Thema Immobilienbetrug und lies, woran du solche Anzeigen erkennen kannst und wie du dich vor Betrügern schützt.
Anbieter
Weitere Ergebnisse für:
Wohnungen
Ramsau im Zillertal;
Immobilien
Ramsau im Zillertal;
Haus mieten
Ramsau im Zillertal;
Wohnung
Ramsau im Zillertal kaufen;
Haus kaufen
Ramsau im Zillertal;
wohnungsboerse.net übernimmt keine Gewähr für von Dritten gemachte Angaben