
Immobilie in Althofen
NEUBAU Eigentumswohnungen mitten im Zentrum von Althofen
auf der Karte ansehenUmzugskosten berechnen
- Kaufpreis
- 339.990 €
- Zimmer
- 3
- Fläche
- 83.73 m²
72 Aufrufe
Objekt-ID: 37412756
Objekttyp: | Keine Angabe |
Zimmer: | 3 |
Größe: | 83.73 m² |
Etage: | 3 |
Verfügbar ab: | keine Angabe |
Preise & Kosten
Kaufpreis: | 339.990 € |
Preis/m²: | 4.060,55 € |
Mit Immobilienpreisen Althofen vergleichen |
Immobilie
Balkon
Aufzug
Keller
Neubau
Behindertengerecht
Objektbeschreibung
Wohnen im Zentrum von Althofen:
Es entstehen zwei Wohngebäuden (Haus A und B), welche L-förmig miteinander verbunden
In Summe stehen 34 Eigentumswohnungen zur Verfügung, wobei der Wohnungsmix 2, 3 und 4-Zimmerwohnungen sowie ein Penthaus umfasst.
Alle Wohnungen sind südlich bzw. westlich ausgerichtet und verfügen im Erdgeschoss über Terrassen mit Eigengärten und in den Obergeschossen über großzügige Balkone
Die Erschließung erfolgt jeweils über ein zentrales Stiegenhaus
Je Stiegenhaus ein Personenaufzug mit Zutrittsmöglichkeiten in jedem Stockwerk, barrierefrei
Es stehen insgesamt 60 PKW-Abstellplätze zur Verfügung, wobei 34 davon in der Tiefgarage untergebracht sind, und die restlichen sich in 9 Carports sowie 17 PKW-Abstellplätze im Freien aufteilen
Es sind Kellerabteile, Abstellräume für Kinderwägen, Fahrräder sowie Trocken- und Technikraum vorgesehen
Die Wohnanlage verfügt über großzügige, allgemein zugängliche Grünanlagen inklusive einer Kinderspielfläche.
Alle Wohnungen in bewährter Baumeisterqualität laut Bau- und Ausstattungsbeschreibung
Provisionsfreier Direktverkauf durch den Bauträger
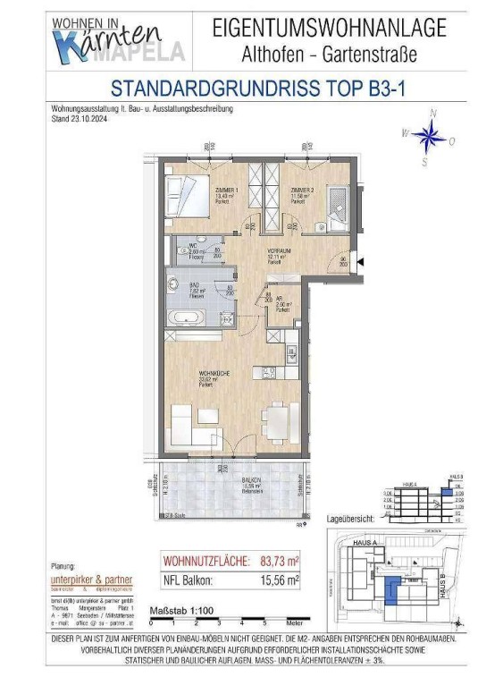
Die Wohnung im Detail:
3-Zimmer-Wohnung laut Grundrissplan
Nutzfläche Wohnung: 83,73 m²
Balkon: 15,90 m²
1 Vorraum
1 Badezimmer
1 WC
2 Schlafzimmer
1 Wohnküche
1 Abstellraum
€ 339.990,--
Wir sind Ihnen gerne in allen Belangen rund um die Finanzierung kostenlos und unverbindlich behilflich.
Es entstehen zwei Wohngebäuden (Haus A und B), welche L-förmig miteinander verbunden
In Summe stehen 34 Eigentumswohnungen zur Verfügung, wobei der Wohnungsmix 2, 3 und 4-Zimmerwohnungen sowie ein Penthaus umfasst.
Alle Wohnungen sind südlich bzw. westlich ausgerichtet und verfügen im Erdgeschoss über Terrassen mit Eigengärten und in den Obergeschossen über großzügige Balkone
Die Erschließung erfolgt jeweils über ein zentrales Stiegenhaus
Je Stiegenhaus ein Personenaufzug mit Zutrittsmöglichkeiten in jedem Stockwerk, barrierefrei
Es stehen insgesamt 60 PKW-Abstellplätze zur Verfügung, wobei 34 davon in der Tiefgarage untergebracht sind, und die restlichen sich in 9 Carports sowie 17 PKW-Abstellplätze im Freien aufteilen
Es sind Kellerabteile, Abstellräume für Kinderwägen, Fahrräder sowie Trocken- und Technikraum vorgesehen
Die Wohnanlage verfügt über großzügige, allgemein zugängliche Grünanlagen inklusive einer Kinderspielfläche.
Alle Wohnungen in bewährter Baumeisterqualität laut Bau- und Ausstattungsbeschreibung
Provisionsfreier Direktverkauf durch den Bauträger
Die Wohnung im Detail:
3-Zimmer-Wohnung laut Grundrissplan
Nutzfläche Wohnung: 83,73 m²
Balkon: 15,90 m²
1 Vorraum
1 Badezimmer
1 WC
2 Schlafzimmer
1 Wohnküche
1 Abstellraum
€ 339.990,--
Wir sind Ihnen gerne in allen Belangen rund um die Finanzierung kostenlos und unverbindlich behilflich.
Vorstellungsmappe
Jetzt Vorstellungsmappe erstellen
Lage
Gartenstraße9330 Althofen
Althofen
Der aktuelle durchschnittliche Quadratmeterpreis beträgt 1.867,20 €/m² in Althofen.
Mit Immobilienpreisen
Althofen vergleichen
Was kostet dein Umzug?
Du planst einen Umzug? Finde jetzt die günstigste Umzugsfirma in deiner Region!
Umzugskosten berechnen Schütze dich vor Betrug!
Leiste keinerlei Zahlung im Vorraus!
Beachte unsere Sicherheitshinweise zum Thema Immobilienbetrug und lies, woran du solche Anzeigen erkennen kannst und wie du dich vor Betrügern schützt.
Anzeige melden Beachte unsere Sicherheitshinweise zum Thema Immobilienbetrug und lies, woran du solche Anzeigen erkennen kannst und wie du dich vor Betrügern schützt.
*Anzeige

Ähnliche Immobilien bei ImmoScout24
Althofen
- Kaufpreis
- 290.000 €
- Zimmer
- 3 Zi.
- Fläche
- 75 Zi.
Anbieter
Weitere Ergebnisse für:
Wohnungen
Althofen;
Immobilien
Althofen;
Haus mieten
Althofen;
Wohnung
Althofen kaufen;
Haus kaufen
Althofen;
Immobilienpreise
Althofen wohnungsboerse.net übernimmt keine Gewähr für von Dritten gemachte Angaben