
Hochparterre-Wohnung in Birgitz
Wohnanlage Magdalena: Wohngenuss am Sonnenplateau westliches Mittelgebirge Top 2
auf der Karte ansehenUmzugskosten berechnen
- Kaufpreis
- 443.000 €
- Zimmer
- 3
- Fläche
- 58.29 m²
81 Aufrufe
Objekt-ID: 36863674
Objekttyp: | Hochparterre-Wohnung |
Zimmer: | 3 |
Größe: | 58.29 m² |
Verfügbar ab: | nach Vereinbarung |
Preise & Kosten
Kaufpreis: | 443.000 € |
Preis/m²: | 7.599,93 € |
Immobilie
Balkon
Garten
Einbauküche
Aufzug
Keller
Objektbeschreibung
Im westlichen Mittelgebirge am Ortsende von Birgitz errichtet die Fa. TIMBER & STONE HOMES Wohnbau GmbH, in sonnenverwöhnter Lage eine elegante Kleinwohnanlage mit lediglich 6 Einheiten.
Ganz nach dem Motto „Erste Reihe fußfrei!!!“, wird die Wohnanlage quasi an die westliche Baulandgrenze der Gemeinde Birgitz, in unverbaubarer Lage errichtet.
Die Erschließung (Zufahrt, Strom, Kanal, Wasser etc. erfolgt über den nördlichen Zufahrtsweg.
Das Fundament dieser exklusiven Anlage bildet die Tiefgarage mit insgesamt 8 KFZ-Abstellplätzen, Abstell- sowie Allgemeinräumen.
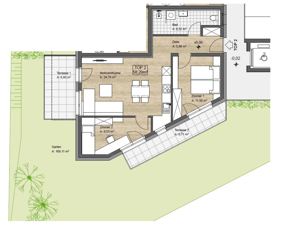
Im darüberliegenden Erdgeschoss befinden sich zwei ca. 60m2 große 3-Zimmer Wohneinheiten mit großzügigen Terrassen- und umlaufenden Gartenflächen.
Im 1. Obergeschoss werden je zwei 2-Zimmerwohungen mit ca. 50m2 eingeplant. Diese verfügen ebenfalls über westseitig ausgerichtete Balkone.
Eine weitere Maisonette-Einheit verbindet das 1.Obergeschoss mit dem Erdgeschoss und erstreckt sich über ca. 65m2. Dieser Wohnung werden insgesamt 2 Balkone sowie ein kleiner aber feiner Gartenanteil zugeteilt.
Das Sahnestück der Anlage bildet ein „echtes“ Penthouse im Dach- bzw. 2. Obergeschoss. Die rund 82m2 Wohnfläche erstrecken sich über das komplette oberste Geschoss, ein mittig integrierter Gangbereich verbindet und trennt zugleich die Schlafräume von Wohn- und Essbereich. Abgerundet wird dies Paket durch die großflächig dimensionierte und sonnenverwöhnte Dachterrasse.
Alles Wohneinheiten werden über das zentral situierte Stiegenhaus samt angrenzender Laubengänge erschlossen.
Zusätzlich zum Stiegenhaus gewährleistet der installierte Personenaufzug ein barrierefreies Erreichen aller Gebäudeebenen.
Architektonisch ansprechend und qualitativ hochwertig gebaut werden hier aber auch in Sachen Energieeffizienz keine Kosten gescheut. Ein besonderes technisches Highlight bildet die zeitgemäße Kombination einer Luftwärmepumpe mit einer Photovoltaik-Anlage. Weiters wird jede Wohnung mittels einer Wohnungsstation samt eigenem Flachwasserspeicher ausgestattet. In Verbindung mit dem zeitgemäßen Heizsystem sorgt dies für eine maximale Kostenersparnis bzw. eine optimale und effiziente Energiebilanz.
Baustart: Anfang 2025, Fertigstellung Mitte 2026
Hinweis gemäß Energieausweisvorlagegesetz:
Ein Energieausweis wurde vom Eigentümer bzw. Verkäufer, nach Aufklärung über die ab 1.12.2012 geltende generelle Vorlagepflicht, noch nicht vorgelegt. Daher gilt zumindest eine dem Alter und der Art des Gebäudes entsprechende Gesamtenergieeffizienz als vereinbart. Wir übernehmen keinerlei Gewähr oder Haftung für die tatsächliche Energieeffizienz der angebotenen Immobilie.
Nebenkosten:
• Grunderwerbssteuer: 3,5 %
• Grundbuchseintragung: 1,1%
• Vertragserrichtungskosten
• Vermittlungshonorar: 3% vom Verkaufspreis zzgl. 20% Ust.
Die Angaben erfolgen auf Grund der Informationen und Unterlagen die uns vom Eigentümer zur Verfügung gestellt wurden, und sind ohne Gewähr.
Damit wir Ihre Anfrage zügig bearbeiten können, bitten wir Sie um Ihre vollständigen Adressdaten sowie E-Mail-Adresse und wenn möglich um Angabe Ihrer Telefonnummer.
Ganz nach dem Motto „Erste Reihe fußfrei!!!“, wird die Wohnanlage quasi an die westliche Baulandgrenze der Gemeinde Birgitz, in unverbaubarer Lage errichtet.
Die Erschließung (Zufahrt, Strom, Kanal, Wasser etc. erfolgt über den nördlichen Zufahrtsweg.
Das Fundament dieser exklusiven Anlage bildet die Tiefgarage mit insgesamt 8 KFZ-Abstellplätzen, Abstell- sowie Allgemeinräumen.
Im darüberliegenden Erdgeschoss befinden sich zwei ca. 60m2 große 3-Zimmer Wohneinheiten mit großzügigen Terrassen- und umlaufenden Gartenflächen.
Im 1. Obergeschoss werden je zwei 2-Zimmerwohungen mit ca. 50m2 eingeplant. Diese verfügen ebenfalls über westseitig ausgerichtete Balkone.
Eine weitere Maisonette-Einheit verbindet das 1.Obergeschoss mit dem Erdgeschoss und erstreckt sich über ca. 65m2. Dieser Wohnung werden insgesamt 2 Balkone sowie ein kleiner aber feiner Gartenanteil zugeteilt.
Das Sahnestück der Anlage bildet ein „echtes“ Penthouse im Dach- bzw. 2. Obergeschoss. Die rund 82m2 Wohnfläche erstrecken sich über das komplette oberste Geschoss, ein mittig integrierter Gangbereich verbindet und trennt zugleich die Schlafräume von Wohn- und Essbereich. Abgerundet wird dies Paket durch die großflächig dimensionierte und sonnenverwöhnte Dachterrasse.
Alles Wohneinheiten werden über das zentral situierte Stiegenhaus samt angrenzender Laubengänge erschlossen.
Zusätzlich zum Stiegenhaus gewährleistet der installierte Personenaufzug ein barrierefreies Erreichen aller Gebäudeebenen.
Architektonisch ansprechend und qualitativ hochwertig gebaut werden hier aber auch in Sachen Energieeffizienz keine Kosten gescheut. Ein besonderes technisches Highlight bildet die zeitgemäße Kombination einer Luftwärmepumpe mit einer Photovoltaik-Anlage. Weiters wird jede Wohnung mittels einer Wohnungsstation samt eigenem Flachwasserspeicher ausgestattet. In Verbindung mit dem zeitgemäßen Heizsystem sorgt dies für eine maximale Kostenersparnis bzw. eine optimale und effiziente Energiebilanz.
Baustart: Anfang 2025, Fertigstellung Mitte 2026
Hinweis gemäß Energieausweisvorlagegesetz:
Ein Energieausweis wurde vom Eigentümer bzw. Verkäufer, nach Aufklärung über die ab 1.12.2012 geltende generelle Vorlagepflicht, noch nicht vorgelegt. Daher gilt zumindest eine dem Alter und der Art des Gebäudes entsprechende Gesamtenergieeffizienz als vereinbart. Wir übernehmen keinerlei Gewähr oder Haftung für die tatsächliche Energieeffizienz der angebotenen Immobilie.
Nebenkosten:
• Grunderwerbssteuer: 3,5 %
• Grundbuchseintragung: 1,1%
• Vertragserrichtungskosten
• Vermittlungshonorar: 3% vom Verkaufspreis zzgl. 20% Ust.
Die Angaben erfolgen auf Grund der Informationen und Unterlagen die uns vom Eigentümer zur Verfügung gestellt wurden, und sind ohne Gewähr.
Damit wir Ihre Anfrage zügig bearbeiten können, bitten wir Sie um Ihre vollständigen Adressdaten sowie E-Mail-Adresse und wenn möglich um Angabe Ihrer Telefonnummer.
Vorstellungsmappe
Jetzt Vorstellungsmappe erstellen
Was kostet dein Umzug?
Du planst einen Umzug? Finde jetzt die günstigste Umzugsfirma in deiner Region!
Umzugskosten berechnen Schütze dich vor Betrug!
Leiste keinerlei Zahlung im Vorraus!
Beachte unsere Sicherheitshinweise zum Thema Immobilienbetrug und lies, woran du solche Anzeigen erkennen kannst und wie du dich vor Betrügern schützt.
Anzeige melden Beachte unsere Sicherheitshinweise zum Thema Immobilienbetrug und lies, woran du solche Anzeigen erkennen kannst und wie du dich vor Betrügern schützt.
*Anzeige

Ähnliche Immobilien bei ImmoScout24
Birgitz
- Kaufpreis
- 395.000 €
- Zimmer
- 3 Zi.
- Fläche
- 50 Zi.
Anbieter
Weitere Ergebnisse für:
Wohnungen
Birgitz;
Immobilien
Birgitz;
Haus mieten
Birgitz;
Wohnung
Birgitz kaufen;
Haus kaufen
Birgitz;
wohnungsboerse.net übernimmt keine Gewähr für von Dritten gemachte Angaben