
Wohnung in Mistelbach
Rollstuhlgerechte 3-Zimmer Neubauwohnung mit Balkon
auf der Karte ansehenUmzugskosten berechnen
- Gesamtmiete
- 965 €
- Zimmer
- 3
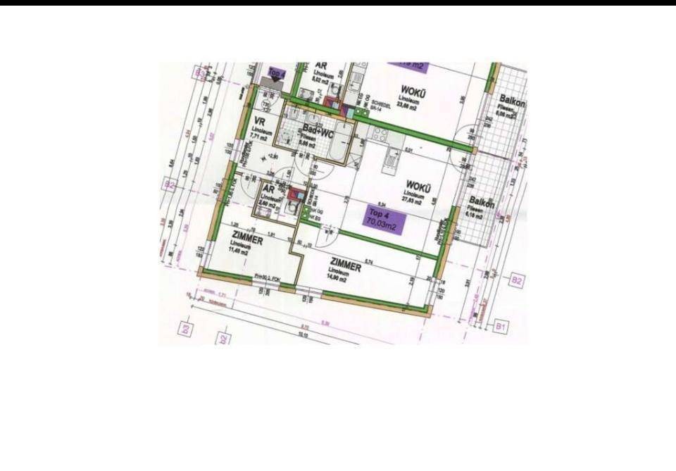
- Fläche
- 70 m²
36 Aufrufe
Objekt-ID: 38464054
| Objekttyp: | Wohnung |
| Zimmer: | 3 |
| Größe: | 70.00 m² |
| Frei ab: | keine Angabe |
Immobilie
Balkon
Aufzug
Keller
Neubau
Objektbeschreibung
Moderne 3-Zimmer-Neubauwohnung mit Balkon in Mistelbach (2130) zu vermieten. Die 70 m² große Wohnung befindet sich im ersten Stock eines Gebäudes mit Aufzug und ist rollstuhlgerecht gestaltet. Die monatlichen Kosten betragen 965 €, darin beinhaltet ist die Miete inkl. Betriebskosten. Heizkosten und die kosten fürs Wasser sind über die Firma Dechem selbst zu bezahlen, die belaufen sich derzeit auf 123€ ist aber abweichend. Über Heimat Österreich wird die Wohnung vermietet und es bestehe die möglichkeit auf eine Förderung. Einen Finanzierungbeitrag von 9567,37€ ist zu bezahlen.
Die Wohnung ist ab dem 01.01.2026 für eine Mietdauer von 15 Monaten verfügbar davon sind 12 Monate Befristung und 3 Monate Kündigungsfrist. Derzeit ist die Wohnung noch vermietet und es wird ein Nachmieter gesucht.
Die Wohnung verfügt über ein Badezimmer mit Badewanne, von mir neu verlegten Böden (daher eine Ablöse) und einen 6 m² großen Balkon. Zur Ausstattung gehören Fernwärme mit Zentralheizung, ein Kellerabteil sowie ein Parkplatz. Der barrierefreie Zugang und der Aufzug sorgen für optimale Zugänglichkeit für alle Bewohner:innen.
Die Ablöse von 4000€ ist verhandelbar und betrifft rein nur die Küche und die neuen Böden in allen Räumen, sowie das Wandpanell hinter dem Fernseher im Wohnzimmer. Ansonsten wird die Wohnung unmöbliert übergeben.
Die Wohnung ist ab dem 01.01.2026 für eine Mietdauer von 15 Monaten verfügbar davon sind 12 Monate Befristung und 3 Monate Kündigungsfrist. Derzeit ist die Wohnung noch vermietet und es wird ein Nachmieter gesucht.
Die Wohnung verfügt über ein Badezimmer mit Badewanne, von mir neu verlegten Böden (daher eine Ablöse) und einen 6 m² großen Balkon. Zur Ausstattung gehören Fernwärme mit Zentralheizung, ein Kellerabteil sowie ein Parkplatz. Der barrierefreie Zugang und der Aufzug sorgen für optimale Zugänglichkeit für alle Bewohner:innen.
Die Ablöse von 4000€ ist verhandelbar und betrifft rein nur die Küche und die neuen Böden in allen Räumen, sowie das Wandpanell hinter dem Fernseher im Wohnzimmer. Ansonsten wird die Wohnung unmöbliert übergeben.
Bewerbermappe
Jetzt Bewerbermappe erstellen
Lage
2130 MistelbachMistelbach
Der aktuelle durchschnittliche Quadratmeterpreis beträgt 12,11 €/m² in Mistelbach.
Mit Mietspiegel
Mistelbach vergleichen
Was kostet dein Umzug?
Du planst einen Umzug? Finde jetzt die günstigste Umzugsfirma in deiner Region!
Umzugskosten berechnen Schütze dich vor Betrug!
Leiste keinerlei Zahlung im Vorraus!
Beachte unsere Sicherheitshinweise zum Thema Immobilienbetrug und lies, woran du solche Anzeigen erkennen kannst und wie du dich vor Betrügern schützt.
Anzeige melden Beachte unsere Sicherheitshinweise zum Thema Immobilienbetrug und lies, woran du solche Anzeigen erkennen kannst und wie du dich vor Betrügern schützt.
Anbieter
Weitere Ergebnisse für:
Wohnungen
Mistelbach;
Immobilien
Mistelbach;
Haus mieten
Mistelbach;
Wohnung
Mistelbach kaufen;
Haus kaufen
Mistelbach;
Immobilienpreise
Mistelbach Mietspiegel
Mistelbach wohnungsboerse.net übernimmt keine Gewähr für von Dritten gemachte Angaben