
Hochparterre-Wohnung in Zeillern
Nachmieter:in gesucht: Moderne 2-Zimmer Neubau Wohnung mit Balkon und Carport
auf der Karte ansehenUmzugskosten berechnen
- Gesamtmiete
- 635 €
- Zimmer
- 2
- Fläche
- 54 m²
41 Aufrufe
Objekt-ID: 37949883
Objekttyp: | Hochparterre-Wohnung |
Zimmer: | 2 |
Größe: | 54.00 m² |
Etage: | 1 von 2 |
Frei ab: | nach Absprache |
Preise & Kosten
Summe Ust.: | 0 € |
Gesamtmiete: |
635 € |
Kaution: | k.A. |
Immobilie
Balkon
Einbauküche
Aufzug
Neubau
Objektbeschreibung
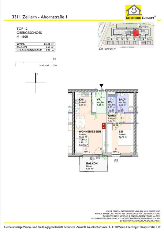
Die moderne Neubau-Wohnung im ersten Stock eines zweistöckigen Gebäudes mit 54 m² Wohnfläche verfügt über einen 6,5 m² großen Balkon. Die monatlichen Kosten betragen 635 € (exkl. Energiekosten).
Die Wohnung wird durch die Gemeinnützige Wohn- und Siedlungsgesellschaft Schönere Zukunft Ges.m.b.H. vermietet: https://www.sz.at/immobilie/gefoerderte-wohnungen-in-zeillern-mit-kaufoption-55139/
Die Wohnung bietet ein Badezimmer mit Badewanne, Parkettböden und eine eingebaute Küche, welche nach Absprache abgelöst werden kann. Weitere Möbel können nach Absprache ebenfalls abgelöst werden.
Zur Ausstattung gehören außerdem eine Fußbodenheizung und ein Aufzug für einen bequemen Zugang.
Ein Carport-Stellplatz ist ebenfalls vorhanden.
Mit einem Heizwärmebedarf von 33 und einem Gesamtenergieeffizienzfaktor von 0,73 ist die Wohnung energieeffizient gestaltet.
Sie befindet sich in einer ruhigen Straße und sehr guter Anbindung zur Autobahn (5 min) sowie zum Bahnhof (10 min) in Amstetten, weiters befindet sich ein Lebensmittelgeschäft (SPAR) in der Nähe (2 min).
Die Wohnung wird durch die Gemeinnützige Wohn- und Siedlungsgesellschaft Schönere Zukunft Ges.m.b.H. vermietet: https://www.sz.at/immobilie/gefoerderte-wohnungen-in-zeillern-mit-kaufoption-55139/
Die Wohnung bietet ein Badezimmer mit Badewanne, Parkettböden und eine eingebaute Küche, welche nach Absprache abgelöst werden kann. Weitere Möbel können nach Absprache ebenfalls abgelöst werden.
Zur Ausstattung gehören außerdem eine Fußbodenheizung und ein Aufzug für einen bequemen Zugang.
Ein Carport-Stellplatz ist ebenfalls vorhanden.
Mit einem Heizwärmebedarf von 33 und einem Gesamtenergieeffizienzfaktor von 0,73 ist die Wohnung energieeffizient gestaltet.
Sie befindet sich in einer ruhigen Straße und sehr guter Anbindung zur Autobahn (5 min) sowie zum Bahnhof (10 min) in Amstetten, weiters befindet sich ein Lebensmittelgeschäft (SPAR) in der Nähe (2 min).
Bewerbermappe
Jetzt Bewerbermappe erstellen
Was kostet dein Umzug?
Du planst einen Umzug? Finde jetzt die günstigste Umzugsfirma in deiner Region!
Umzugskosten berechnen Schütze dich vor Betrug!
Leiste keinerlei Zahlung im Vorraus!
Beachte unsere Sicherheitshinweise zum Thema Immobilienbetrug und lies, woran du solche Anzeigen erkennen kannst und wie du dich vor Betrügern schützt.
Anzeige melden Beachte unsere Sicherheitshinweise zum Thema Immobilienbetrug und lies, woran du solche Anzeigen erkennen kannst und wie du dich vor Betrügern schützt.
Anbieter
Weitere Ergebnisse für:
Wohnungen
Zeillern;
Immobilien
Zeillern;
Haus mieten
Zeillern;
Wohnung
Zeillern kaufen;
Haus kaufen
Zeillern;
wohnungsboerse.net übernimmt keine Gewähr für von Dritten gemachte Angaben