
Wohnung in Wildschönau
Objekt nicht gefunden
auf der Karte ansehenUmzugskosten berechnen
- Gesamtmiete
- 700 €
- Zimmer
- 2
- Fläche
- 44 m²
30 Aufrufe
Objekt-ID: 37488125
| Objekttyp: | Wohnung |
| Zimmer: | 2 |
| Größe: | 44.00 m² |
| Frei ab: | keine Angabe |
Immobilie
Balkon
Einbauküche
Objektbeschreibung
Zur Vermietung steht hier ein gewidmeter Freizeitwohnsitz in der Wildschönau in Zentraler Lage. (ca 1,5h von München)
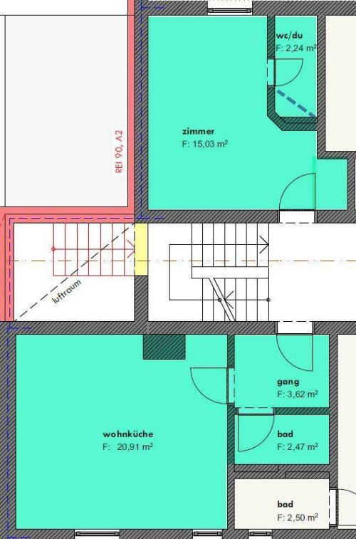
Die Wohnung ist im technisch einwandfreien Zustand. Diese wurde 1992 eingerichtet. In den Bildern ist ein Grundriss der Wohnung angehängt. Die Wohnung ist in zwei Bereiche aufgeteilt. Wohnbereich und Zimmer sind durch den Hausgang getrennt.
Die Wohnung eignet sich perfekt für Erholungsausflüge in den Bergen. Durch die zentrale Lage und der guten Anbindung durch öffentliche Verkehrsmittel (Bushaltestelle ca 300m) ist diese Wohnung die perfekte Wahl für Ski oder Wanderurlaube in den Kitzbüheler Alpen.
Sollte die Anreise mit dem PKW erfolgen, sind hier ausreichend Stellplätze verfügbar.
Das Schlafzimmer ist zusätzlich mit einer Nasszelle und einer Toilette ausgestattet.
Die Vermietung ist zu Beginn auf 6 Monate befirstet.
Die Wohnung ist im technisch einwandfreien Zustand. Diese wurde 1992 eingerichtet. In den Bildern ist ein Grundriss der Wohnung angehängt. Die Wohnung ist in zwei Bereiche aufgeteilt. Wohnbereich und Zimmer sind durch den Hausgang getrennt.
Die Wohnung eignet sich perfekt für Erholungsausflüge in den Bergen. Durch die zentrale Lage und der guten Anbindung durch öffentliche Verkehrsmittel (Bushaltestelle ca 300m) ist diese Wohnung die perfekte Wahl für Ski oder Wanderurlaube in den Kitzbüheler Alpen.
Sollte die Anreise mit dem PKW erfolgen, sind hier ausreichend Stellplätze verfügbar.
Das Schlafzimmer ist zusätzlich mit einer Nasszelle und einer Toilette ausgestattet.
Die Vermietung ist zu Beginn auf 6 Monate befirstet.
Bewerbermappe
Jetzt Bewerbermappe erstellen
Was kostet dein Umzug?
Du planst einen Umzug? Finde jetzt die günstigste Umzugsfirma in deiner Region!
Umzugskosten berechnen Schütze dich vor Betrug!
Leiste keinerlei Zahlung im Vorraus!
Beachte unsere Sicherheitshinweise zum Thema Immobilienbetrug und lies, woran du solche Anzeigen erkennen kannst und wie du dich vor Betrügern schützt.
Anzeige melden Beachte unsere Sicherheitshinweise zum Thema Immobilienbetrug und lies, woran du solche Anzeigen erkennen kannst und wie du dich vor Betrügern schützt.
Anbieter
Diese Anzeige ist momentan deaktiviert. Daher ist eine Kontaktaufnahme nicht möglich.
Weitere Ergebnisse für:
Wohnungen
Wildschönau;
Immobilien
Wildschönau;
Haus mieten
Wildschönau;
Wohnung
Wildschönau kaufen;
Haus kaufen
Wildschönau;
Immobilienpreise
Wildschönau Mietspiegel
Wildschönau wohnungsboerse.net übernimmt keine Gewähr für von Dritten gemachte Angaben