Dachgeschosswohnung in Wien
Luxuriöse 3-Zimmer-Dachgeschosswohnung mit Terrasse in Wien
auf der Karte ansehenUmzugskosten berechnen
- Kaltmiete
- 1.471,16 €
- Zimmer
- 3
- Fläche
- 100 m²
2577 Aufrufe
Objekt-ID: 33687779
| Objekttyp: | Dachgeschosswohnung |
| Zimmer: | 3 |
| Größe: | 100.00 m² |
| Frei ab: | 01.01.2024 - Objekt ist vermietet |
Preise & Kosten
| Miete (netto): | 1.471,16 € |
| Gesamtmiete: |
1.895 € |
| Preis/m²: | 14,71 € |
| Mit Mietspiegel Wien vergleichen | |
| Kaution: | 3bmm |
Immobilie
Terrasse
Dachterrasse
Einbauküche
Aufzug
Keller
Neubau
WG geeignet
| Baujahr: | 2015 |
| Objektzustand: | gepflegt |
| Befeuerungsart: | Gas |
| Energieausweis: | Energieausweis in Vorbereitung |
Objektbeschreibung
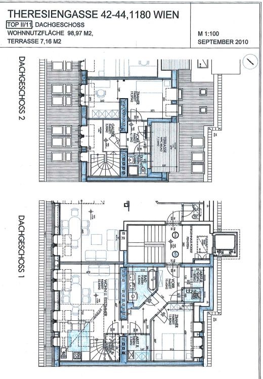
Einer Nutzfläche von ca. 98,97 m² und Terrasse 7,16 m².
Die Wohnung besteht aus: 2 Vorräume, 2 Zimmern, Wohn- und Esszimmer samt Küche, 2 Bäder, WC, 2 Abstellräume, Kellerabteil.
Das Mietobjekt verfügt über eine Gas-Etagenheizung. Der Mieter ist berechtigt, den im Haus befindlichen Lift zu benutzen.
Der Mietgegenstand darf überwiegend nur zu Wohnzwecken verwendet werden.
Die Infrastruktur kann als sehr gut beschrieben werden.
Die U6 Station "Michelbeuern - AKH" befindet sich in unmittelbarer Nähe.
• U-Bahn-Linie: U6 "Michelbeuern, AKH"
• Straßenbahnlinien: 42
Billa: 2 Gehminuten
Hofer: 3 Gehminuten
Dm: 3 Gehminuten
U Bahn: 4 Gehminuten
Straßenbahn: 1 Gehminute
RAUMAUFTEILUNG - 1. DACHGESCHOSS
• Vorraum
• Abstellraum
• weiterer Abstellraum unter der Treppe
• Garderobe
• Zimmer
• großzügiges Wohn-Ess-Zimmer mit offener Küche
• Badezimmer mit Doppelwaschbecken und Badewanne
• WC mit Waschbecken
RAUMAUFTEILUNG - 2. DACHGESCHOSS
• Vorraum
• Galerie
• Zimmer
• Badezimmer mit Dusche, Waschbecken und WC
• Terrasse
Die Wohnung besteht aus: 2 Vorräume, 2 Zimmern, Wohn- und Esszimmer samt Küche, 2 Bäder, WC, 2 Abstellräume, Kellerabteil.
Das Mietobjekt verfügt über eine Gas-Etagenheizung. Der Mieter ist berechtigt, den im Haus befindlichen Lift zu benutzen.
Der Mietgegenstand darf überwiegend nur zu Wohnzwecken verwendet werden.
Die Infrastruktur kann als sehr gut beschrieben werden.
Die U6 Station "Michelbeuern - AKH" befindet sich in unmittelbarer Nähe.
• U-Bahn-Linie: U6 "Michelbeuern, AKH"
• Straßenbahnlinien: 42
Billa: 2 Gehminuten
Hofer: 3 Gehminuten
Dm: 3 Gehminuten
U Bahn: 4 Gehminuten
Straßenbahn: 1 Gehminute
RAUMAUFTEILUNG - 1. DACHGESCHOSS
• Vorraum
• Abstellraum
• weiterer Abstellraum unter der Treppe
• Garderobe
• Zimmer
• großzügiges Wohn-Ess-Zimmer mit offener Küche
• Badezimmer mit Doppelwaschbecken und Badewanne
• WC mit Waschbecken
RAUMAUFTEILUNG - 2. DACHGESCHOSS
• Vorraum
• Galerie
• Zimmer
• Badezimmer mit Dusche, Waschbecken und WC
• Terrasse
Bewerbermappe
Jetzt Bewerbermappe erstellen
Lage
Thersiengasse1180 Wien
Wien
Der aktuelle durchschnittliche Quadratmeterpreis beträgt 18,65 €/m² in Wien.
Mit Mietspiegel
Wien vergleichen
Was kostet dein Umzug?
Du planst einen Umzug? Finde jetzt die günstigste Umzugsfirma in deiner Region!
Umzugskosten berechnen Schütze dich vor Betrug!
Leiste keinerlei Zahlung im Vorraus!
Beachte unsere Sicherheitshinweise zum Thema Immobilienbetrug und lies, woran du solche Anzeigen erkennen kannst und wie du dich vor Betrügern schützt.
Anzeige melden Beachte unsere Sicherheitshinweise zum Thema Immobilienbetrug und lies, woran du solche Anzeigen erkennen kannst und wie du dich vor Betrügern schützt.
*Anzeige
Ähnliche Wohnungen bei ImmoScout24
Wien
- Miete
- 1.350 €
- Zimmer
- 3 Zi.
- Fläche
- 90 Zi.
Anbieter
privater AnbieterWeitere Ergebnisse für:
Wohnungen
Wien;
Immobilien
Wien;
Haus mieten
Wien;
Wohnung
Wien kaufen;
Haus kaufen
Wien;
Immobilienpreise
Wien Mietspiegel
Wien wohnungsboerse.net übernimmt keine Gewähr für von Dritten gemachte Angaben













